Bénéficiez des services de nos partenaires locaux soigneusement sélectionnés
pour vous accompagner dans votre parcours d'achat immobilier

Maison 175m² à poitiers

— Poitiers 86000 —
397 000 €
175 m² / 426 m²
6 pièces
parkingjardin

Nos partenaires locaux
86000 POITIERS – HYPER-CENTRE DE POITIERS – SECTEUR CATHÉDRALE – PROXIMITÉ DE TOUTES LES COMMODITÉS – DEMEURE DE 4 CHAMBRES AVEC VUE SUR LA CATHÉDRALE – SURFACE HABITABLE DE 175,5 M² – CHEMINÉE – CAVE – JARDIN DE 426 M² – STUDIO AMÉNAGÉ SUR LE TERRAIN AVEC TERRASSE.

Efficity, l'agence qui estime votre bien en ligne, vous propose dans l'hyper-centre de Poitiers, dans le secteur proche de la Cathédrale, une demeure avec une vue sur la Cathédrale comprenant quatre chambres, un salon et un séjour/cuisine. Vous trouverez également une cave sous le salon. Concernant l'extérieur, le jardin fait 426 m² et vous y trouverez une dépendance où se trouvent une pièce aménagée, une salle d'eau et une terrasse.

La maison se compose de la manière suivante :
Au rez-de-chaussée :
- Une entrée (12 m²) où se trouve l'escalier permettant l'accès à l'étage et à la cave.
- Un salon (27 m²) avec sa cheminée.
- Une salle à manger (17,5 m²).
- Une cuisine (13,5 m²) avec un accès sur l'extérieur.

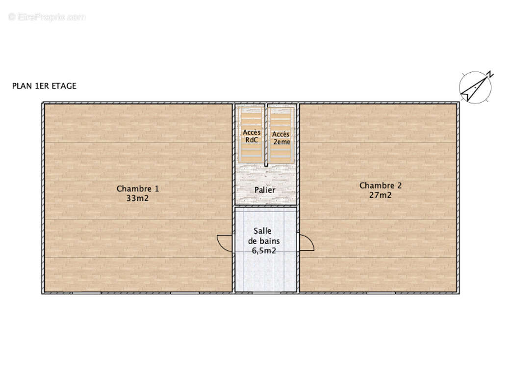
Au 1er étage :
- Un palier avec l'escalier central.
- Une première chambre (33 m²).
- Une salle de bains (6,5 m²) comprenant un WC, un meuble double vasque, une douche et une baignoire.
- Une seconde chambre (27 m²).

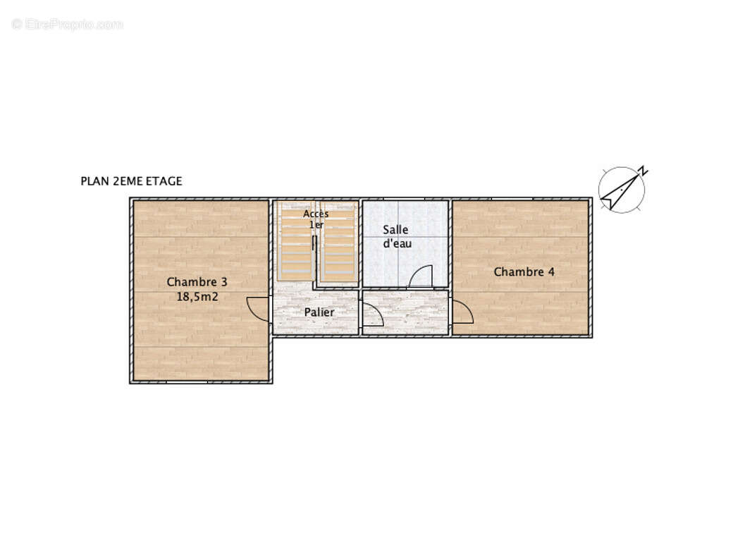
Au 2ème étage :
- Un palier avec l'escalier central.
- Une quatrième chambre (18,5 m²).
- Une cinquième chambre mansardée.
- Une salle d'eau comprenant une douche, un toilette et un meuble double vasque.

Informations complémentaires :
- La production de chauffage et d'eau chaude est assurée par une chaudière à gaz de ville.
- Les fenêtres sont équipées de simple vitrage.
- Le bien est raccordé au réseau collectif des eaux usées.

Idéalement situé dans le quartier de la Cathédrale à Poitiers. À visiter rapidement.
Contactez LOUIS-EUGÈNE Morgan.
Les informations sur les risques auxquels ce bien est exposé sont disponibles sur le site Georisque : georisques. gouv. fr
Morgan Louis-Eugene - EI - est Agent Commercial mandataire en immobilier, immatriculé au Registre Spécial des Agents Commerciaux du Tribunal de Commerce de Poitiers sous le n°910697812.
Siège social du mandant : effiCity, 48 avenue de Villiers - 75017 PARIS - Société par Actions Simplifiée, société au capital de 132 373,05 euros, immatriculée au RCS Paris 497 617 746 et titulaire de la Carte professionnelle CPI 75[Coordonnées masquées]02 025 - CCI Paris IDF - Caisse de Garantie : GALIAN Assurances 89 rue de la Boétie 75008 Paris
Voir plus

Référence: 190870
Honoraires à la charge du vendeur.
Barème des honoraires
DPE
A
B
C
D
E
F
G
GES
A
B
C
D
E
F
G

Prêt immobilier

Vous souhaitez connaître votre capacité d’emprunt et trouver le meilleur crédit immobilier ?
Réaliser une simulation gratuite

Maison à POITIERS
Maison à POITIERS
Maison à POITIERS
Maison à POITIERS
Maison à POITIERS
Maison à POITIERS
Maison à POITIERS
Maison à POITIERS
Maison à POITIERS
Maison à POITIERS
Maison à POITIERS
Maison à POITIERS
Maison à POITIERS
Maison à POITIERS
Maison à POITIERS
Maison à POITIERS
Maison à POITIERS
Maison à POITIERS
Maison à POITIERS
Maison à POITIERS
Ce site est protégé par reCAPTCHA la Politique de confidentialité et les Conditions d’utilisation de Google s’appliquent.
Obtenir un prêt immobilier au meilleur taux ?

En poursuivant votre navigation sans modifier vos paramètres, vous acceptez l'utilisation de cookies susceptibles de réaliser des statistiques de visite. Cliquez ici pour plus d'informations