F4 en duplex tout neuf !

— Jouy-Le-Moutier 95280 —
299 900 €
85 m²
4 pièces
parkingbalcon/terrasseascenseur

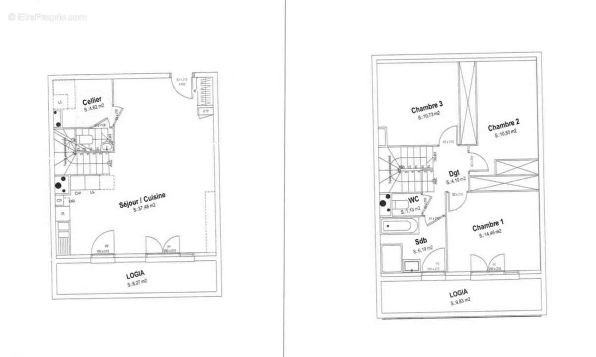
Idéalement situé en plein coeur du centre-ville de Jouy-le-Moutier, cet appartement F4 en duplex, entièrement neuf, n'attend plus que vous. Vous serez les premiers à profiter de ce bien moderne et lumineux ! Au 1er étage de la résidence, l'appartement offre au premier niveau une grande pièce à vivre ouverte sur une loggia, idéale pour vos moments de détente. Vous y trouverez également un cellier pratique et des WC indépendants. À l'étage, un palier dessert trois chambres, dont une avec loggia, offrant ainsi un bel espace pour toute la famille. Une salle de bains moderne et des WC indépendants viennent compléter ce niveau. En prime, l'appartement dispose de deux places de parking en sous-sol, assurant un stationnement sécurisé et pratique. Un bien à découvrir sans tarder, alliant confort, luminosité et emplacement idéal en centre-ville ! Copropriété de 202 lots (dont 88 appartements. Classe énergie : C, Classe climat : C. Montant estimé des dépenses annuelles d'énergie pour un usage standard : entre 590 EUR et 798 EUR par an (prix moyens des énergies indexés au 1er janvier 2021). Les informations sur les risques auxquels ce bien est exposé sont disponibles sur le site Géorisques : www.georisques.gouv.fr Les informations sur les risques auxquels ce bien est exposé sont disponibles sur le site Géorisques : www.georisques.gouv.fr. Réf : 9145.
Voir plus

Référence: 9145
Barème des honoraires
DPE
A
B
C
D
E
F
G
GES
A
B
C
D
E
F
G

Prêt immobilier

Vous souhaitez connaître votre capacité d’emprunt et trouver le meilleur crédit immobilier ?
Réaliser une simulation gratuite

Appartement à JOUY-LE-MOUTIER
Appartement à JOUY-LE-MOUTIER
Appartement à JOUY-LE-MOUTIER
Appartement à JOUY-LE-MOUTIER
Appartement à JOUY-LE-MOUTIER
Appartement à JOUY-LE-MOUTIER
Appartement à JOUY-LE-MOUTIER
Appartement à JOUY-LE-MOUTIER
Appartement à JOUY-LE-MOUTIER
Appartement à JOUY-LE-MOUTIER
Appartement à JOUY-LE-MOUTIER
Appartement à JOUY-LE-MOUTIER
Appartement à JOUY-LE-MOUTIER
Appartement à JOUY-LE-MOUTIER
Ce site est protégé par reCAPTCHA la Politique de confidentialité et les Conditions d’utilisation de Google s’appliquent.
Obtenir un prêt immobilier au meilleur taux ?

En poursuivant votre navigation sans modifier vos paramètres, vous acceptez l'utilisation de cookies susceptibles de réaliser des statistiques de visite. Cliquez ici pour plus d'informations