Bénéficiez des services de nos partenaires locaux soigneusement sélectionnés
pour vous accompagner dans votre parcours d'achat immobilier

Maison 180m² à le pavillon-sainte-julie

— Le Pavillon-Sainte-Julie 10350 —
360 000 €
180 m² / 731 m²
7 pièces
parkingbalcon/terrassejardinpiscine

Nos partenaires locaux
Iad France - Audrey Lefebvre vous propose : Nouvelle construction au Pavillon Sainte Julie dans l'Aube (10) Achat sur plan, sublime maison de 180 m² sur un terrain de 731 m² avec piscine couverte et toit terrasse.

Bienvenue dans cette magnifique maison contemporaine située dans un quartier paisible à Pavillon Sainte Julie.
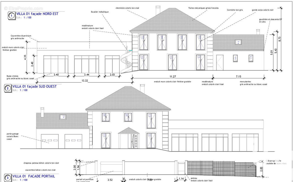
Composée d'un ensemble de 4 Villas, la villa 1 sera construite avec des matériaux de qualité supérieure, cette propriété offre un confort absolu à ses occupants.
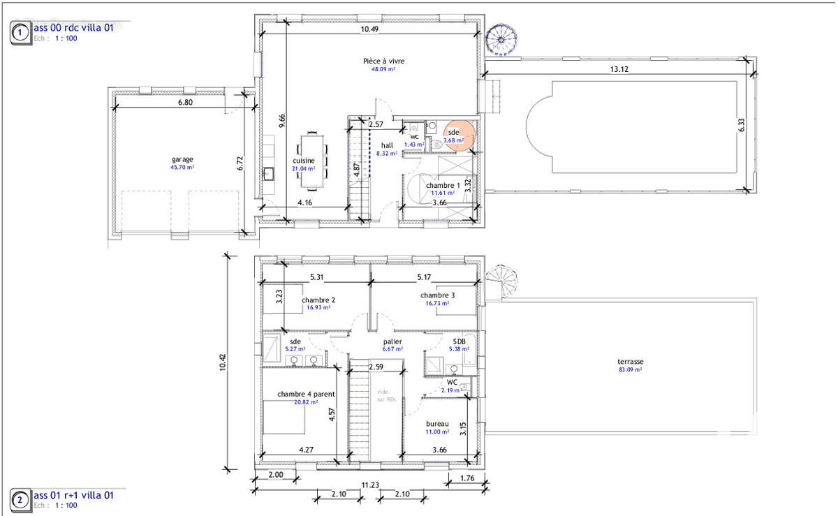
Dès l'entrée, vous serez séduit par le hall spacieux qui desservira une lumineuse pièce à vivre.
Le rez-de-chaussée se composera d'une chambre, d'une première salle d'eau, d'un WC indépendant, d'un espace cuisine et d'une vaste pièce à vivre donnant sur la piscine. Par un escalier en colimaçon, vous aurez accès au toit terrasse.

À l'étage, un palier desservira trois chambres supplémentaires dont une chambre parentale avec sa propre salle d'eau.
Une salle de bain avec baignoire et douche, un wc indépendant et un bureau avec accès au toit terrasse
La terrasse de 83 m² offre un espace extérieur parfait pour se détendre en famille ou entre amis, et la piscine intérieure vous permettra de profiter des journées ensoleillées.
Le garage double vous offre un espace de stationnement sécurisé pour 2 véhicules.
Cette maison bénéficie d'une ventilation mécanique et d'une fosse septique, offrant un environnement sain et écologique.

Le Pavillon Sainte Julie se trouve à un emplacement stratégique :

À 18 kms de Troyes
A 110 kms de Reims
A 136 kms de Paris

Ne manquez pas l'opportunité d'acquérir cette propriété exceptionnelle alliant confort, design et tranquillité.
Informations LOI ALUR :
Honoraires charge vendeur. (gedeon_6727_31592051)
Voir plus

Référence: 1809450
Honoraires à la charge du vendeur.

Prêt immobilier

Vous souhaitez connaître votre capacité d’emprunt et trouver le meilleur crédit immobilier ?
Réaliser une simulation gratuite

Photo 1 - Maison à LE PAVILLON-SAINTE-JULIE
Photo 1
Photo 2 - Maison à LE PAVILLON-SAINTE-JULIE
Photo 2
Photo 3 - Maison à LE PAVILLON-SAINTE-JULIE
Photo 3
Photo 4 - Maison à LE PAVILLON-SAINTE-JULIE
Photo 4
Photo 5 - Maison à LE PAVILLON-SAINTE-JULIE
Photo 5
Photo 6 - Maison à LE PAVILLON-SAINTE-JULIE
Photo 6
Photo 7 - Maison à LE PAVILLON-SAINTE-JULIE
Photo 7
Ce site est protégé par reCAPTCHA la Politique de confidentialité et les Conditions d’utilisation de Google s’appliquent.
Obtenir un prêt immobilier au meilleur taux ?

En poursuivant votre navigation sans modifier vos paramètres, vous acceptez l'utilisation de cookies susceptibles de réaliser des statistiques de visite. Cliquez ici pour plus d'informations