Bénéficiez des services de nos partenaires locaux soigneusement sélectionnés
pour vous accompagner dans votre parcours d'achat immobilier

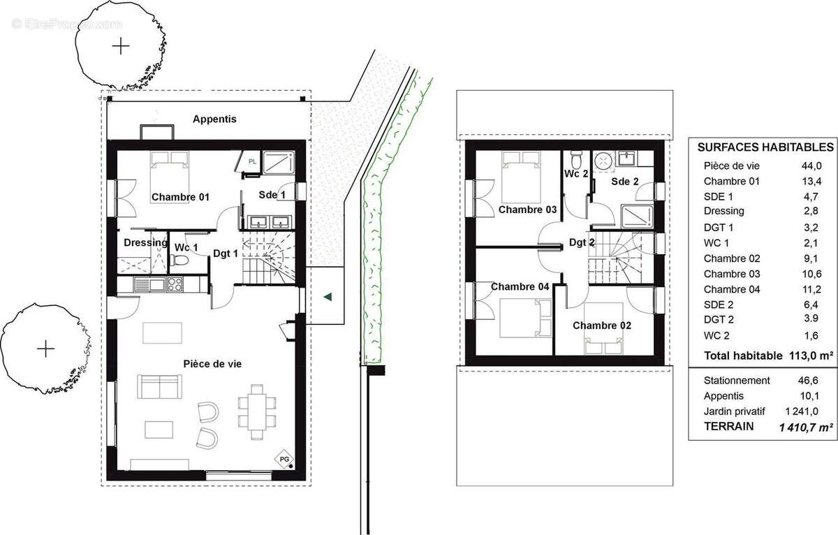
Maison 113m² à le taillan-medoc

— Le Taillan-Medoc 33320 —
475 000 €
113 m² / 1 411 m²
5 pièces
parkingjardinaccès handicapé

Nos partenaires locaux
Jolie maison neuve, T5, de 113 m² habitables, sur un terrain de 1412 m², à 500 m d'un centre commercial et du collège du Taillan. Elle se compose, au rez-de-chaussée d'une pièce de vie de 44 m², d'une suite parentale avec salle d'eau et dressing et d'un wc. À l'étage, de trois chambres, d'une salle d'eau et d'un wc. Conforme à la règlementation RE2020, le chauffage est assuré par une pompe à chaleur triple service et la production d'eau chaude par un ballon thermodynamique connecté à la pompe à chaleur. Un poêle à granulés apporte un confort supplémentaire. Un appentis de 10 m² sur le côté de la maison permet d'abriter des deux roues ou des matériels divers. La maison se situe, en bout de rue, dans une copropriété horizontale, de huit maisons et n'est pas mitoyenne. Elle jouit d'un environnement calme. Le parking relais du tram D, vers Bordeaux-centre est à 5 minutes en voiture. La taxe foncière sera de 2100 euros et les charges de 20 euros par mois. Les honoraires sont à la charge du vendeur. Elle sera disponible en mars 2027. Les informations sur les risques auxquels de bien est exposé sont disponibles sur le site Géorisques: www.georisque.gouv.fr
Voir plus

Référence: 93
Bien en copropriété. Nombre de lots : 8. Charges de copropriété : 240 €.
Honoraires à la charge du vendeur.
Barème des honoraires

Prêt immobilier

Vous souhaitez connaître votre capacité d’emprunt et trouver le meilleur crédit immobilier ?
Réaliser une simulation gratuite

Maison à LE TAILLAN-MEDOC
Maison à LE TAILLAN-MEDOC
Maison à LE TAILLAN-MEDOC
Maison à LE TAILLAN-MEDOC
Ce site est protégé par reCAPTCHA la Politique de confidentialité et les Conditions d’utilisation de Google s’appliquent.
Obtenir un prêt immobilier au meilleur taux ?

En poursuivant votre navigation sans modifier vos paramètres, vous acceptez l'utilisation de cookies susceptibles de réaliser des statistiques de visite. Cliquez ici pour plus d'informations