Maison avec piscine à vendre : profitez de l'évasion en ville !

— Aureilhan 65800 —
253 000 €
140 m²
5 pièces
parkingbalcon/terrassepiscine

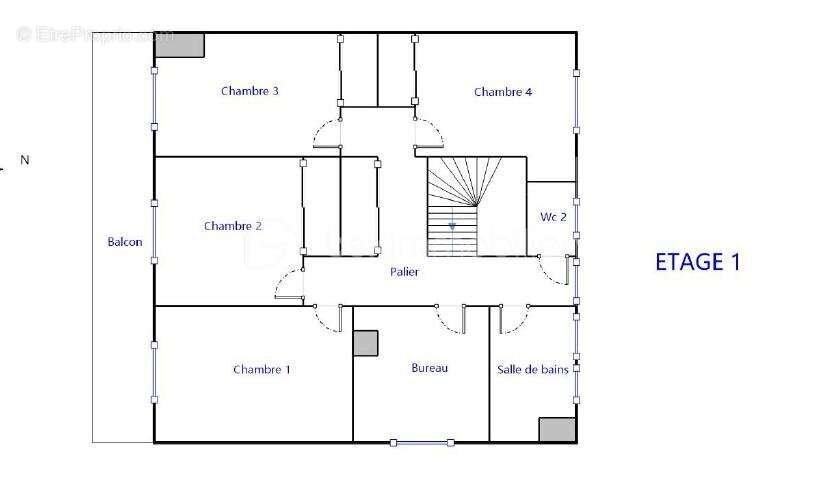
Découvrez cette charmante maison individuelle à étage construite en 1970, offrant un véritable havre de paix au cœur de la ville. Parfaitement agencée sur 140 m², elle révèle une convivialité rare avec ses 5 pièces lumineuses. Petit plus : la maison dispose de deux entrées selon le souhait d'habitation ou projets personnels( location ou autres...). Au rez de chaussée : un salon séjour avec une cheminée donnant accès à une véranda vue sur la piscine. Egalement, une cuisine moderne et aménagée avec possibilité de fermeture par des portes à galandage ainsi qu'un toilette, un cellier et une buanderie idéale pour du rangement et stockage. Vous accèderez à l'étage par un bel escalier en bois. Un vaste pallier distribue 4 chambres et un bureau , une salle de bain, un toilette. Vous noterez qu'une des chambres est aménagée avec un lavabo.

Cette demeure intègre un balcon et une terrasse exposée plein sud, idéals pour profiter pleinement des journées ensoleillées. Un parking privatif allège le quotidien, et cerise sur le gâteau, une piscine vous promet des moments de détente et de rafraîchissement. Implantée sur un terrain de 490m2 entièrement clôturé, ce bien dispose d'un garage indépendant fermé de 30m2 environ et d'un abris bois.
Menuiseries pvc double vitrage et volets roumants alu.
Système de chauffage : chaudière individuelle gaz installée entretnue, un foyer fermé à bois, production d'eau chaude par accumulateur gaz classique contenance ballon 160l.
VMC SF auto réglable .
Récemment rénovée , la maison ne nécessite d'aucun travaux. Entourée des commodités nécessaires : commerces, écoles et transports, elle présente une opportunité unique pour les familles à la recherche de confort et de simplification urbaine.

Contactez VALERIE ROUCAU pour plus de détails sur cette perle rare !

Cette annonce référence 298803 vous est présentée par votre agent commercial BSK Immobilier VALERIE ROUCAU (EI) immatriculé au RSAC de AUCH (32000) sous le numéro 83[Coordonnées masquées]10.

Prix du bien : 253 000,00 €
Les honoraires d'agence sont à la charge du vendeur.

A propos des performances énergétiques :
Date de réalisation du diagnostic énergétique : 29/07/2025
Score DPE : 245 kWhEP/m²/an
Score GES : 40 kgepCO2/m²/an
Montant estimé des dépenses annuelles d'énergie pour un usage standard : entre 2590.00 € et 3540.00 € par an. Prix moyens des énergies indexés sur l'année 2023 (abonnements compris).

Les informations sur les risques auxquels ce bien est exposé sont disponibles sur le site Géorisques : www.georisques.gouv.fr
Voir plus

Référence: 298803
Honoraires à la charge du vendeur.
DPE
A
B
C
D
E
F
G
GES
A
B
C
D
E
F
G

Prêt immobilier

Vous souhaitez connaître votre capacité d’emprunt et trouver le meilleur crédit immobilier ?
Réaliser une simulation gratuite

Maison à AUREILHAN
Maison à AUREILHAN
Maison à AUREILHAN
Maison à AUREILHAN
Maison à AUREILHAN
Maison à AUREILHAN
Maison à AUREILHAN
Maison à AUREILHAN
Maison à AUREILHAN
Maison à AUREILHAN
Maison à AUREILHAN
Maison à AUREILHAN
Maison à AUREILHAN
Maison à AUREILHAN
Maison à AUREILHAN
Maison à AUREILHAN
Maison à AUREILHAN
Maison à AUREILHAN
Maison à AUREILHAN
Maison à AUREILHAN
Maison à AUREILHAN
Maison à AUREILHAN
Maison à AUREILHAN
Maison à AUREILHAN
Maison à AUREILHAN
Ce site est protégé par reCAPTCHA la Politique de confidentialité et les Conditions d’utilisation de Google s’appliquent.
Obtenir un prêt immobilier au meilleur taux ?

En poursuivant votre navigation sans modifier vos paramètres, vous acceptez l'utilisation de cookies susceptibles de réaliser des statistiques de visite. Cliquez ici pour plus d'informations