Bénéficiez des services de nos partenaires locaux soigneusement sélectionnés
pour vous accompagner dans votre parcours d'achat immobilier

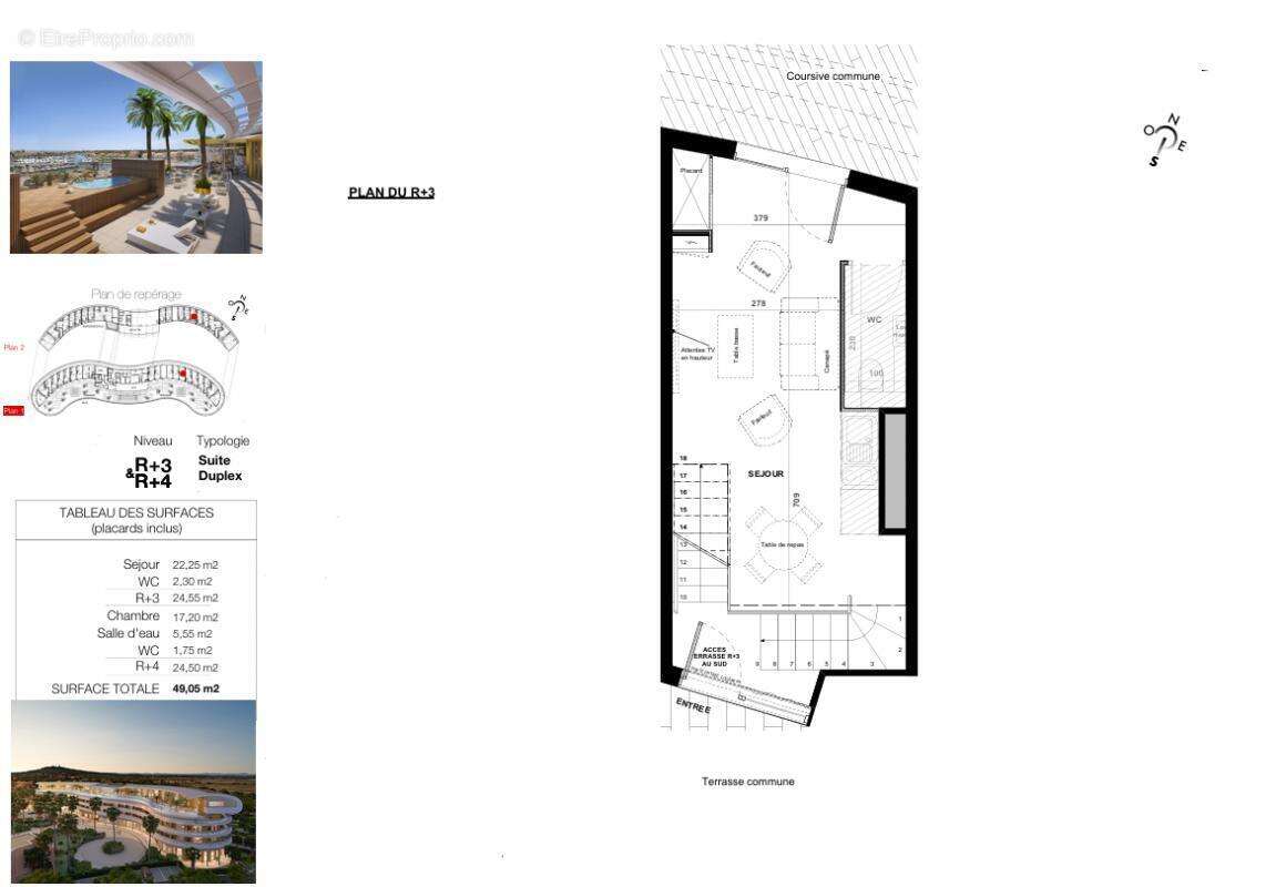
Village naturiste du cap d'agde, suite duplex t2 sud, dernier étage

— Agde 34300 —
739 200 €
49 m²
2 pièces
parkingascenseurpiscine

Nos partenaires locaux
Village Naturiste du Cap d'Agde, première destination naturiste en Méditerranée. Un lieu d'exception, où liberté, bien-être et raffinement se rencontrent. Cela répond-il à vos attentes ?
Au coeur d'un cadre privilégié, découvrez ce duplex T2 lumineux de plus de 49 m², pensé pour allier fonctionnalité et élégance.
Vous bénéficierez d'un accès direct au rooftop, offrant une vue panoramique exceptionnelle sur le village naturiste, un véritable atout pour savourer l'environnement unique et le climat méditerranéen en toute sérénité. Ce bien recherché conjugue confort quotidien et art de vivre en bord de mer. Au rez-de-chaussée, une belle pièce de vie baignée de lumière naturelle accueille une cuisine ouverte, à la fois moderne et conviviale. A l'étage, une chambre confortable et une salle d'eau entièrement équipée s'inscrivent dans une atmosphère sobre et raffinée, propice à la détente. L'agencement soigné de ce bien offre un espace de vie fluide, où chaque mètre carré est optimisé pour votre confort. Un atout supplémentaire : une place de parking en sous-sol est incluse, un vrai plus dans ce secteur recherché.
Ce bien vous séduit par sa superficie, son agencement ou son style ? Je suis à votre écoute pour vous accompagner et organiser une visite à votre convenance. Prix de vente : 739 200 euros (honoraires à la charge du vendeur).
Plans, notice descriptive et informations complémentaires disponibles sur demande. Photos non contractuelles, DPE non requis. Selon l'article L.561.5 du Code Monétaire et Financier, pour l'organisation de la visite, la présentation d'une pièce d'identité vous sera demandée. Pour visiter et vous accompagner dans votre projet, contactez Michel HORNECKER, au [Coordonnées masquées] ou par courriel à [Coordonnées masquées] Cette présente annonce a été rédigée sous la responsabilité éditoriale de Michel HORNECKER agissant sous le statut d'agent commercial immatriculé au RSAC BEZIERS 824 253 710 spécialisé en vente du neuf , auprès de la SAS PROPRIETES PRIVEES, Réseau national immobilier, au capital de 40000 euros, 44 ALLÉE DES CINQ CONTINENTS - ZAC LE CHÊNE FERRÉ, 44120 VERTOU, RCS Nantes n° 487 624 777 00040, Carte professionnelle T et G n° CPI 44[Coordonnées masquées]10 388 CCI Nantes-Saint Nazaire. Garantie GALIAN - 89 rue de la Boétie, 75008 Paris Mandat réf : 409205 - Le professionnel garantit et sécurise votre projet immobilier. Michel HORNECKER (EI) Agent Commercial - Numéro RSAC : BEZIERS 824 253 710 Les informations sur les risques auxquels ce bien est exposé sont disponibles sur le site Géorisques : www.georisques.gouv.fr
Copropriété de 125 lots - dont 122 lots habitation.().
Michel HORNECKER (EI) Agent Commercial - Numéro RSAC : BEZIERS 493044283 - .
Voir plus

Référence: 409205BHKM
Bien en copropriété. Nombre de lots : 125.
Honoraires à la charge du vendeur.

Prêt immobilier

Vous souhaitez connaître votre capacité d’emprunt et trouver le meilleur crédit immobilier ?
Réaliser une simulation gratuite

Appartement à AGDE
Appartement à AGDE
Appartement à AGDE
Appartement à AGDE
Appartement à AGDE
Appartement à AGDE
Appartement à AGDE
Appartement à AGDE
Appartement à AGDE
Appartement à AGDE
Ce site est protégé par reCAPTCHA la Politique de confidentialité et les Conditions d’utilisation de Google s’appliquent.
Obtenir un prêt immobilier au meilleur taux ?

En poursuivant votre navigation sans modifier vos paramètres, vous acceptez l'utilisation de cookies susceptibles de réaliser des statistiques de visite. Cliquez ici pour plus d'informations