Appartement

— Bonneville 74130 —
261 610 €
47 m²
2 pièces
parkingbalcon/terrasseascenseur

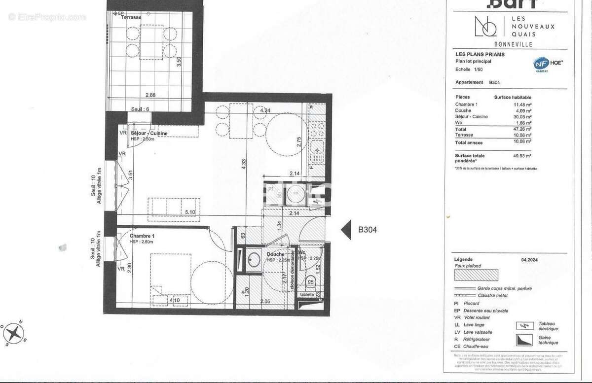
74130-BONNEVILLE-T2-47,26M2-TERRASSE-PLEIN CENTRE VILLE-CAVE-PARKING PRIVATIF EN SOUS SOL

Efficity, l'agence qui estime votre lien en ligne, et Pablo CARABALLO MACHADO vous proposent cet appartement de Type 2 situé en plein centre ville.

L'appartement d'une surface habitable de 47,26 m2 se distingue par son emplacement, il offre une belle terrasse de 10m2 avec vue sur les quais de l'Arve, et l'utilisation d'Energies Renouvenables, très rare en collectif.

L'intérieur comprend:

Séjour/Salon/kitchenette: 30 m2
CH: 11,50 m2
Salle d'Eau : 4 m2
WC: 1,70m2

COTE TECHNIQUE

Chauffage au sol (confort, pas de radiateurs) collectif Pompe A Chaleur Air Eau
Eau Chaude Sanitaire individuelle Ballon Aérothermique
Sèche Serviette dans la Salle d'Eau
Cabine de douche
Meuble vasque
Menuiseries double vitrage
Porte palière blindée
Fibre Optique
Volets électriques......................

COTE PRATIQUE :
1 Parking privé au Sous Sol PREVU DANS LE PRIX
1 Cave
1 Local Vélos
Appartement neuf

En plein centre ville proche de toutes les commodités.
Aux portes du marché tous les mardis et vendredi matin
Proche groupe scolaire et lycées.
Le Léman Express permet d'accéder à Genève/Gare de Cornavin en 1H
Accès rapide à l'A40 donnant la possibilité de rejoindre rapidement Chamonix, Genève et Annecy

COTE FINANCE :

Charges de copropriété 100 €/mois
Taxe Foncière à définir
Frais de Notaire réduits ( environ 3% : 7800 € ENVIRON
Les informations sur les risques auxquels ce bien est exposé sont disponibles sur le site Georisque : georisques. gouv. fr
Pablo Caraballo Machado - EI - est Agent Commercial mandataire en immobilier, immatriculé au Registre Spécial des Agents Commerciaux du Tribunal de Commerce de Annecy sous le n°901810127.
Siège social du mandant : effiCity, 48 avenue de Villiers - 75017 PARIS - Société par Actions Simplifiée, société au capital de 132 373,05 euros, immatriculée au RCS Paris 497 617 746 et titulaire de la Carte professionnelle CPI 75[Coordonnées masquées]02 025 - CCI Paris IDF - Caisse de Garantie : GALIAN Assurances 89 rue de la Boétie 75008 Paris
Voir plus

Référence: 190973
Bien en copropriété. Nombre de lots : 24. Charges de copropriété : 100 €.
Honoraires à la charge du vendeur.
Barème des honoraires
DPE
A
B
C
D
E
F
G
GES
A
B
C
D
E
F
G

Prêt immobilier

Vous souhaitez connaître votre capacité d’emprunt et trouver le meilleur crédit immobilier ?
Réaliser une simulation gratuite

Appartement à BONNEVILLE
Appartement à BONNEVILLE
Appartement à BONNEVILLE
Ce site est protégé par reCAPTCHA la Politique de confidentialité et les Conditions d’utilisation de Google s’appliquent.
Obtenir un prêt immobilier au meilleur taux ?

En poursuivant votre navigation sans modifier vos paramètres, vous acceptez l'utilisation de cookies susceptibles de réaliser des statistiques de visite. Cliquez ici pour plus d'informations