Bénéficiez des services de nos partenaires locaux soigneusement sélectionnés
pour vous accompagner dans votre parcours d'achat immobilier

Maison 260m² à jons

— Jons 69330 —
752 000 €
260 m² / 855 m²
8 pièces
parkingbalcon/terrassepiscine

Nos partenaires locaux
69280 – JONS – MAISON BOURGEOISE DE 260m2 – 7 CHAMBRES – COUP DE COEUR – TERRASSE – JARDIN – VERANDA – PISCINE – CAVE - RENOVEE

Loïc FERNANDEZ et Efficity sont heureux de vous faire découvrir au cœur de la commune de Jons, cette somptueuse maison bourgeoise datant du XIXᵉ siècle, alliant avec élégance cachet de l'ancien et prestations modernes. Offrant 260 m² habitables, elle a été entièrement rénovée, tout en préservant ses éléments les plus nobles.
Dès l'entrée, une cour pavée et arborée vous accueille dans un cadre paisible et verdoyant. Passée la porte, vous serez séduit par un hall d'entrée doté d'un bel escalier en bois et d'un salon chaleureux doté d'une
La cuisine ouverte s'intègre parfaitement à une véranda haut de gamme de plus de 25 m², entièrement vitrée, baignée de lumière, véritable prolongement naturel de la maison vers l'extérieur.

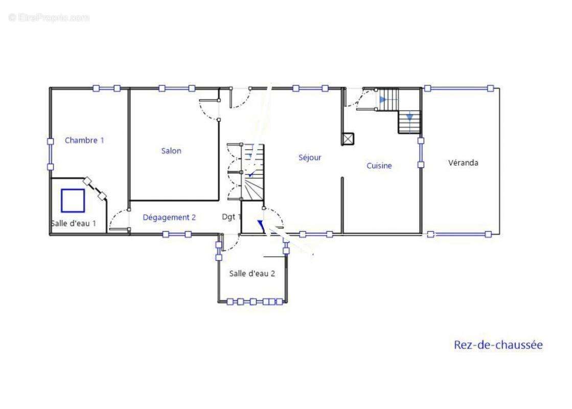
Rez-de-chaussée :
-Un bureau, un séjour, une cuisine, une véranda, une chambre parentale de 18m2 et 2 salles d'eau
1er étage :
-3 chambres (12, 13 et 14m2) et deux salles d'eau
2ème étage :
-3 chambres (16,17 et 18m2)

Ce bien rare et chargé d'histoire constitue une véritable pépite pour les amateurs d'authenticité, recherchant du volume, du caractère, et une rénovation de qualité.

COTE EXTERIEUR :
-Parcelle de 860m2
-Piscine
-Deux places de stationnement
-Abris de jardin
-Arrosage automatique
-Terrasse…

CÔTÉ TECHNIQUE :
-Maison bourgeoise de 1890
-Véranda climatisée de 24m2
-Pompe à chaleur réversible installée en 2019
-Toiture refaite en 2019
-Poêle à bois
-Façade refaite en 2019

CÔTÉ TECHNIQUE :
-Taxe foncière : 1383€
-DPE en D, garantissant confort thermique et économies d'énergie.

Pour plus d'informations et pour organiser une visite, veuillez me contacter du LUNDI AU DIMANCHE par téléphone au [Coordonnées masquées] ou par mail [Coordonnées masquées].
Partagez cette annonce avec vos proches et soyez parmi les premiers à découvrir cette perle rare sur le marché immobilier.
Les informations sur les risques auxquels ce bien est exposé sont disponibles sur le site Georisque : georisques. gouv. fr
Loic Fernandez - EI - est Agent Commercial mandataire en immobilier, immatriculé au Registre Spécial des Agents Commerciaux du Tribunal de Commerce de Bourg-en-Bresse sous le n°898127121.
Siège social du mandant : effiCity, 48 avenue de Villiers - 75017 PARIS - Société par Actions Simplifiée, société au capital de 132 373,05 euros, immatriculée au RCS Paris 497 617 746 et titulaire de la Carte professionnelle CPI 75[Coordonnées masquées]02 025 - CCI Paris IDF - Caisse de Garantie : GALIAN Assurances 89 rue de la Boétie 75008 Paris
Voir plus

Référence: 190887
Honoraires à la charge du vendeur.
Barème des honoraires
DPE
A
B
C
D
E
F
G
GES
A
B
C
D
E
F
G

Prêt immobilier

Vous souhaitez connaître votre capacité d’emprunt et trouver le meilleur crédit immobilier ?
Réaliser une simulation gratuite

Maison à JONS
Maison à JONS
Maison à JONS
Maison à JONS
Maison à JONS
Maison à JONS
Maison à JONS
Maison à JONS
Maison à JONS
Maison à JONS
Maison à JONS
Maison à JONS
Maison à JONS
Maison à JONS
Ce site est protégé par reCAPTCHA la Politique de confidentialité et les Conditions d’utilisation de Google s’appliquent.
Obtenir un prêt immobilier au meilleur taux ?

En poursuivant votre navigation sans modifier vos paramètres, vous acceptez l'utilisation de cookies susceptibles de réaliser des statistiques de visite. Cliquez ici pour plus d'informations