Bénéficiez des services de nos partenaires locaux soigneusement sélectionnés
pour vous accompagner dans votre parcours d'achat immobilier

Local et fonds de commerce

— Nevers 58000 —
122 000 €
217 m²

Nos partenaires locaux
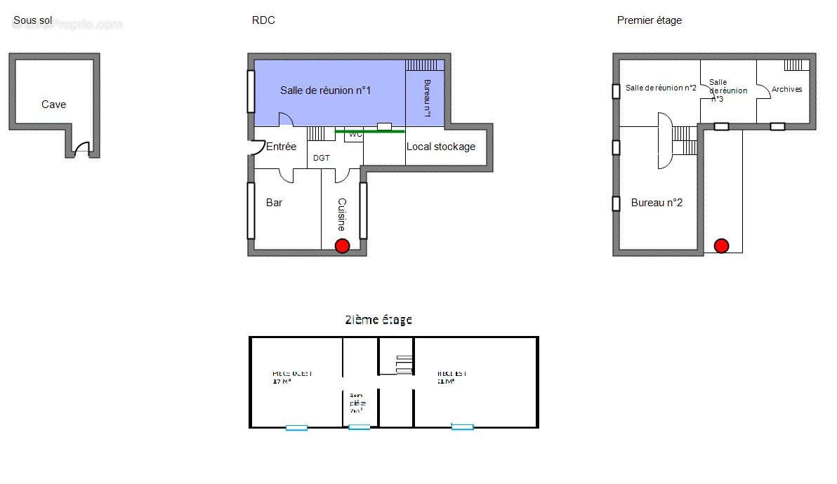
CENTRE VILLE EN BORDURE D'UN AXE PASSANT INSTALLEZ VOUS POUR LE PRIX DE L'IMMEUBLE qui est quasiment prêt à fonctionner en bar restaurant... Les locaux comprennent: Au rez de chaussée, - une salle de bar de 21m2 avec comptoir opérationnel, - une grande salle à manger de 39m2 ouverte sur large trottoir, plus arrière salle de 9m2, - une cuisine toute équipée de 9m2 - un jardin terrasse aménagé de 96m2 bordant la rivière Nièvre, avec barbecue et préau bar - Sanitaire , locaux de rangement et vaste cave de 25m2 en dessous . Au premier étage: - pouvant constituer des compléments de locaux , ou pouvant servir de logement - 3 pièces de 23m2, 20m2 et 12m2, - une kitchenette de 4m2, - une salle de bains de 15m2 Au second étage: - 2 mansardes aménageables de 25m2 et de 21m2 L'ensemble est en bon état sauf les combles. Le Chauffage central au gaz est opérationnel. Plusieurs parkings publics gratuits à proximité. De nombreux commerces à proximité. A 5 minutes des promenades de bords de Loire de la maison des sports de la maison de la culture et des zones piétonnes
Voir plus

Référence: 159
Barème des honoraires

Prêt immobilier

Vous souhaitez connaître votre capacité d’emprunt et trouver le meilleur crédit immobilier ?
Réaliser une simulation gratuite

Commerce à NEVERS
Commerce à NEVERS
Commerce à NEVERS
Commerce à NEVERS
Commerce à NEVERS
Commerce à NEVERS
Commerce à NEVERS
Commerce à NEVERS
Commerce à NEVERS
Commerce à NEVERS
Commerce à NEVERS
Commerce à NEVERS
Commerce à NEVERS
Commerce à NEVERS
Commerce à NEVERS
Ce site est protégé par reCAPTCHA la Politique de confidentialité et les Conditions d’utilisation de Google s’appliquent.
Obtenir un prêt immobilier au meilleur taux ?

En poursuivant votre navigation sans modifier vos paramètres, vous acceptez l'utilisation de cookies susceptibles de réaliser des statistiques de visite. Cliquez ici pour plus d'informations