Appartement 49m² à zuydcoote

— Zuydcoote 59123 —
290 000 €
49 m²
2 pièces
balcon/terrasseascenseuraccès handicapé

Appartement T2 à Zuydcoote plage

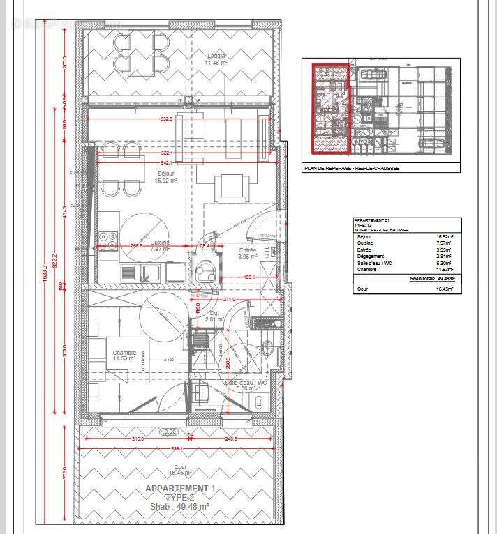
Découvrez ce magnifique appartement T2 d'environ 49,48 m², situé au rez-de-chaussée d'une résidence de standing de 3 étages avec ascenseur et à quelques mètres de la plage de Zuydcoote et de ses dunes protégées.

L'appartement se compose, d'une entrée, d'un WC, d'une salle d'eau, d'une chambre spacieuse, d'une vaste pièce à vivre avec sa cuisine et son salon-séjour d'environ 24 m2 donnant accès à une cour de 16,45 m2 exposée sud pour profiter pleinement des journées ensoleillées.

Conforme aux normes RE2020, les ouvertures seront en aluminium double vitrage, la production d'eau chaude se fera grâce à un ballon d'eau chaude thermodynamique et le chauffage grâce à des convecteurs électriques connectés vous garantissant un confort thermique optimal.

Imaginez-vous poser vos valises dans ce cadre idyllique, en bord de mer, à proximité d'une zone naturelle protégée, à moins de dix minutes des commerces, des restaurants... A proximité de Zuydcoote, vous pourrez également profiter des communes balnéaires de Malo les Bains, Leffrinckoucke et Bray-Dunes toutes desservies par des transports en commun.

Ne manquez pas cette opportunité unique de vivre, à partir de 2027, dans cette résidence de standing, alliant modernité et confort à un emplacement privilégier. A environ 45 minutes de Lille et 1h45 de Bruxelles.

Contactez-moi dès maintenant pour plus d'informations au [Coordonnées masquées].

Honoraires à la charge du vendeur. Non soumis au DPE. Les informations sur les risques auxquels ce bien est exposé sont disponibles sur le site Géorisques : georisques.gouv.fr.

Votre conseiller We Invest France : Benjamin Barbier
Agent commercial (Entreprise individuelle)
RSAC 817938822
Voir plus

Référence: VA14314
Honoraires à la charge du vendeur.
Barème des honoraires

Prêt immobilier

Vous souhaitez connaître votre capacité d’emprunt et trouver le meilleur crédit immobilier ?
Réaliser une simulation gratuite

Appartement à ZUYDCOOTE
Appartement à ZUYDCOOTE
Appartement à ZUYDCOOTE
Appartement à ZUYDCOOTE
Appartement à ZUYDCOOTE
Ce site est protégé par reCAPTCHA la Politique de confidentialité et les Conditions d’utilisation de Google s’appliquent.
Obtenir un prêt immobilier au meilleur taux ?

En poursuivant votre navigation sans modifier vos paramètres, vous acceptez l'utilisation de cookies susceptibles de réaliser des statistiques de visite. Cliquez ici pour plus d'informations