Bénéficiez des services de nos partenaires locaux soigneusement sélectionnés
pour vous accompagner dans votre parcours d'achat immobilier

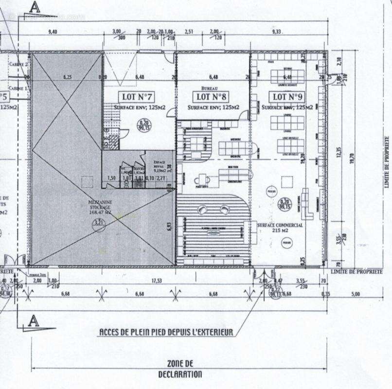
Local commercial a vendre

— La Cote-Saint-Andre 38260 —
633 000 €
668 m²

Nos partenaires locaux
Locaux commerciaux (deux lots dont 1 loué) de 668 m² dont une mezzanine de 168 m², 2 vitrines en angle protégées par des rideaux métalliques, grand showroom avec sol carrelé, chauffage par pompe à chaleur avec climatisation réversible, bâtiment entièrement isolé, faux plafonds avec luminaires, sanitaires privés, réserve de 35 m² accessible par porte sectionnelle donnant dans terrain de 400 m² clos avec portail, éclairage extérieur, lot 2 loué en restauration d'une surface de 125 m², site accessible aux poids lourds situé proche des axes, implanté en zone commerciale avec de nombreux stationnements
Voir plus

Référence: 38_0331
Honoraires d'agence de 5.5% à la charge de l'acquéreur

Prêt immobilier

Vous souhaitez connaître votre capacité d’emprunt et trouver le meilleur crédit immobilier ?
Réaliser une simulation gratuite

Commerce à LA COTE-SAINT-ANDRE
Commerce à LA COTE-SAINT-ANDRE
Commerce à LA COTE-SAINT-ANDRE
Ce site est protégé par reCAPTCHA la Politique de confidentialité et les Conditions d’utilisation de Google s’appliquent.
Obtenir un prêt immobilier au meilleur taux ?

En poursuivant votre navigation sans modifier vos paramètres, vous acceptez l'utilisation de cookies susceptibles de réaliser des statistiques de visite. Cliquez ici pour plus d'informations