Bénéficiez des services de nos partenaires locaux soigneusement sélectionnés
pour vous accompagner dans votre parcours d'achat immobilier

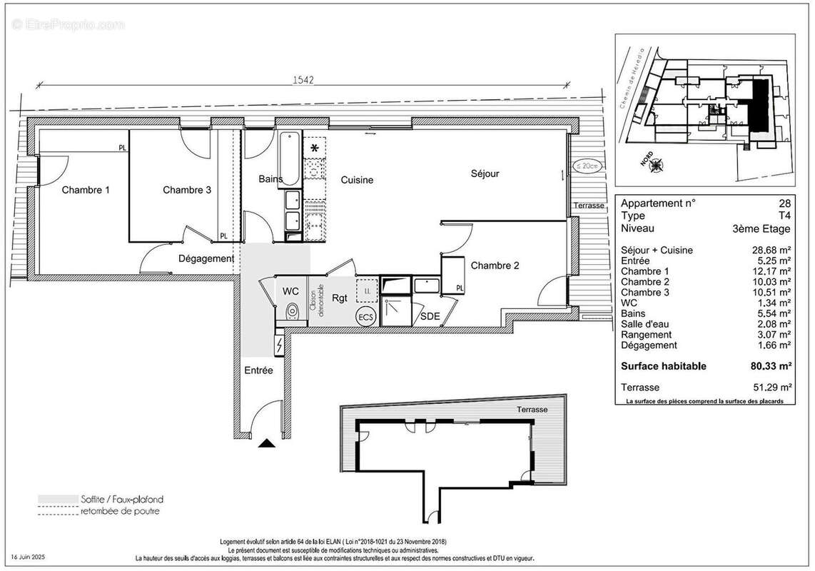
Appartement t4 - 80m2 - jolimont

— Toulouse 31500 —
339 900 €
80 m²
4 pièces
parkingbalcon/terrasseascenseur

Nos partenaires locaux
Magnifique Appartement T4 de 80m2 situé dans le quartier de Jolimont. Accession sous conditions de revenus. L'appartement dispose d'une terrasse de 52m2 avec une exposition plein Sud-Est. Un grand séjour/cuisine de 29m2. L'appartement vous offre trois belles chambres, une salle de bain et une salle d'eau, wc ainsi qu'une place de parking en sous-sol. Belles Prestations : Carrelage 45x45cm, peinture lisse, parquet stratifié, chauffage individuel par panneaux rayonnants électriques, volets roulants électriques. N'hésitez pas à me contacter, d'autres appartements sont disponibles. [Coordonnées masquées] [Coordonnées masquées]
Voir plus

Barème des honoraires
DPE
A
B
C
D
E
F
G

Prêt immobilier

Vous souhaitez connaître votre capacité d’emprunt et trouver le meilleur crédit immobilier ?
Réaliser une simulation gratuite

Appartement à TOULOUSE
Appartement à TOULOUSE
Appartement à TOULOUSE
Appartement à TOULOUSE
Ce site est protégé par reCAPTCHA la Politique de confidentialité et les Conditions d’utilisation de Google s’appliquent.
Obtenir un prêt immobilier au meilleur taux ?

En poursuivant votre navigation sans modifier vos paramètres, vous acceptez l'utilisation de cookies susceptibles de réaliser des statistiques de visite. Cliquez ici pour plus d'informations