Pas de terrain à Feuquieres pour le moment. Découvrez dès maintenant les terrains dans le département Oise.

Maison 235m² à usson-en-forez

— Usson-En-Forez 42550 —
420 000 €
235 m² / 13 000 m²
11 pièces
jardin

Votre agence GTI Immobilier de Saint Bonnet vous propose cette belle bâtisse en pierre à rénover.
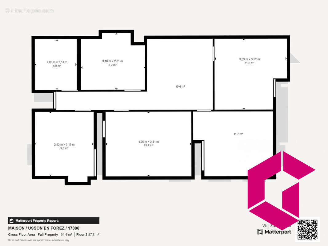
Cette bâtisse familiale pleine de charme vous offre 3 niveaux de 90m2 environ chacun.
Au rez de chaussé, la partie pièce de vie avec salon salle à manger de 70m2 et une cuisine fermée.
Au 1er étage on retrouve 3 chambres, un bureau, une salle d'eau et un wc séparé.
Au 2ème étage, 3 chambres, un bureau et un salle d'eau avec wc.
Menuiserie bois double vitrage récente, assainissement tout à l'égout, Chaudière fioul par air pulsé.
Travaux à prévoir, isolation, un peu d'électricité, et remise au gout du jour de toutes les pièces.

Niveau extérieur, on retrouve un magnifique parc arboré et en parti clos.
Un ancien terrain de tennis, une partie arboré, un coin pour les enfants.
La totalité du parc, soit 1 hectares et 5000m2, est constructible.

Possibilité d'acquérir jusqu'à 1 hectare 4000m2 supplémentaire constructible également.

Visite virtuelle disponible
Contacter Lionel FLANDIN [Coordonnées masquées]

Honoraires à la charge du vendeur. Classe énergie F, Classe climat F Logement à consommation énergétique excessive. Montant estimé des dépenses annuelles d'énergie pour un usage standard : entre 9250.00 € et 12560.00 € sur les années 2021, 2022 et 2023 (abonnements compris). Les informations sur les risques auxquels ce bien est exposé sont disponibles sur le site Géorisques : georisques.gouv.fr.
Voir plus

Référence: 17886-GTI63
Honoraires à la charge du vendeur.
Barème des honoraires
DPE
A
B
C
D
E
F
G
GES
A
B
C
D
E
F
G

Prêt immobilier

Vous souhaitez connaître votre capacité d’emprunt et trouver le meilleur crédit immobilier ?
Réaliser une simulation gratuite

Maison à USSON-EN-FOREZ
Maison à USSON-EN-FOREZ
Maison à USSON-EN-FOREZ
Maison à USSON-EN-FOREZ
Maison à USSON-EN-FOREZ
Maison à USSON-EN-FOREZ
Maison à USSON-EN-FOREZ
Maison à USSON-EN-FOREZ
Maison à USSON-EN-FOREZ
Ce site est protégé par reCAPTCHA la Politique de confidentialité et les Conditions d’utilisation de Google s’appliquent.
Obtenir un prêt immobilier au meilleur taux ?

En poursuivant votre navigation sans modifier vos paramètres, vous acceptez l'utilisation de cookies susceptibles de réaliser des statistiques de visite. Cliquez ici pour plus d'informations