Bénéficiez des services de nos partenaires locaux soigneusement sélectionnés
pour vous accompagner dans votre parcours d'achat immobilier

Grand studio vendu loué cannes

— Cannes 06400 —
210 000 €
42 m²
1 pièce
balcon/terrasseascenseur

Nos partenaires locaux
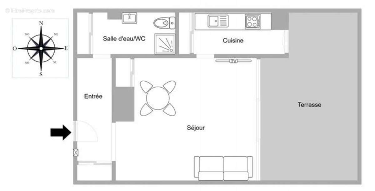
ELITE GROUP by KW vous propose ce grand studio à Cannes, vendu loué 880 € CC / mois (rentabilité brute 5%), situé à 10 min à pieds de la Rue d'Antibes.

IDEAL INVESTISSEUR

Il est composé d'une entrée avec placard ainsi qu'une salle d'eau puis le séjour avec cuisine indépendante donnant sur une terrasse de 35m2 au calme.

L'appartement présente également un très beau potentiel de rénovation puisqu'il est transformable en 2 pièces.

Les charges sont de 174 € / mois en tout collectif.
Voir plus

Référence: 11424
Honoraires d'agence de 6% à la charge de l'acquéreur
DPE
A
B
C
D
E
F
G
GES
A
B
C
D
E
F
G

Prêt immobilier

Vous souhaitez connaître votre capacité d’emprunt et trouver le meilleur crédit immobilier ?
Réaliser une simulation gratuite

Appartement à CANNES
Appartement à CANNES
Appartement à CANNES
Appartement à CANNES
Appartement à CANNES
Appartement à CANNES
Appartement à CANNES
Appartement à CANNES
Ce site est protégé par reCAPTCHA la Politique de confidentialité et les Conditions d’utilisation de Google s’appliquent.
Obtenir un prêt immobilier au meilleur taux ?

En poursuivant votre navigation sans modifier vos paramètres, vous acceptez l'utilisation de cookies susceptibles de réaliser des statistiques de visite. Cliquez ici pour plus d'informations