Maison 488m² à doeuil-sur-le-mignon

— Doeuil-Sur-Le-Mignon 17330 —
599 000 €
488 m² / 4 000 m²
15 pièces
piscine

Efficity l'agence qui estime votre bien en ligne et Edwige Mercier vous invite à découvrir ce véritable joyau en Charente-Maritime : une propriété d'exception avec une activité de gîtes florissante !
Opportunité unique à seulement 1h de La Rochelle et 20 minutes de Surgères.

Nichée dans un écrin de verdure, cette magnifique propriété charentaise allie le charme de l'ancien au confort moderne, offrant un cadre de vie exceptionnel et un potentiel économique immédiat. Idéalement située à 20 minutes d'une gare TGV, 25 km de Niort, et entre Saintes et La Rochelle, elle bénéficie d'une localisation stratégique pour votre projet de vie ou d'investissement.

Un domaine polyvalent aux multiples atouts :
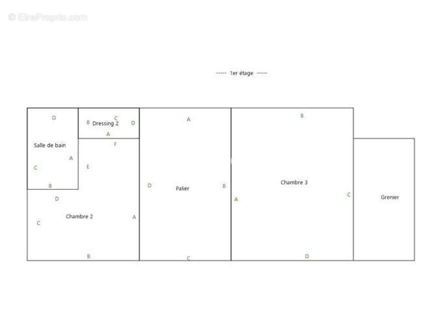
• Ensemble immobilier de 487 m² sur un terrain paysagé de 4000 m²
• 15 pièces dont 9 chambres, réparties en 3 logements distincts
• Maison principale de 211 m² avec 3 chambres, bureau et vastes espaces de vie
• Deux gîtes entièrement équipés, meublés et prêts à l'exploitation, totalisant 276 m²
• Piscine 10x5m et jardin aménagé avec soin

Le potentiel qui vous attend :
Idéale pour une grande famille ou pour des entrepreneurs souhaitant développer l'hébergement touristique. L'activité de gîtes en place permet de générer des revenus dès l'acquisition, avec la possibilité d'étendre l'offre à des chambres d'hôtes.
Rentabilité avérée : 67 000 € de CA en 2024 avec exploitation partielle, fort potentiel de croissance.

Les petits plus :
• Terrain clos, arboré, sans vis-à-vis
• Gîtes vendus entièrement meublés
• Dossier complet disponible (CA, consommations, diagnostics, plans..)
• Quelques travaux d'embellissement à prévoir, notamment le remplacement de fenêtres dans la maison d'habitation (certaines ont déjà été changées, un passage au PVC pourrait être envisagé).
• Assainissement à prévoir (étude réalisée pour vous aider à vous projeter)
• Dpe D pour les gîtes et E pour la maison

Prix de vente : 599 000 €
Ce prix inclut l'ensemble des équipements et meubles des gîtes, permettant une exploitation immédiate.

Note importante :
Un rendez-vous téléphonique pour discuter de votre projet et valider l'adéquation du bien à vos besoins est indispensable avant envoi du dossier.

N'attendez plus pour saisir cette opportunité rare de posséder un coin de paradis alliant patrimoine, confort moderne et rentabilité. Contactez Edwige Mercier dès aujourd'hui pour obtenir le dossier complet, davantage d'informations, ou organiser une visite.
[Coordonnées masquées]

Votre nouvelle vie commence !

#Immobilier #Gîte #CharenteMaritime #Vente #residencesecondaire #InvestissementTouristique
#locationsaisonniere #locationvacances #gitedecharme #tourismefrance #gitedegroupe
Les informations sur les risques auxquels ce bien est exposé sont disponibles sur le site Georisque : georisques. gouv. fr
Edwige Mercier - EI - est Agent Commercial mandataire en immobilier, immatriculé au Registre Spécial des Agents Commerciaux du Tribunal de Commerce de Niort sous le n°903838548.
Siège social du mandant : effiCity, 48 avenue de Villiers - 75017 PARIS - Société par Actions Simplifiée, société au capital de 132 373,05 euros, immatriculée au RCS Paris 497 617 746 et titulaire de la Carte professionnelle CPI 75[Coordonnées masquées]02 025 - CCI Paris IDF - Caisse de Garantie : GALIAN Assurances 89 rue de la Boétie 75008 Paris
Voir plus

Référence: 191147
Honoraires d'agence de 3.45% à la charge de l'acquéreur
Barème des honoraires
DPE
A
B
C
D
E
F
G
GES
A
B
C
D
E
F
G

Prêt immobilier

Vous souhaitez connaître votre capacité d’emprunt et trouver le meilleur crédit immobilier ?
Réaliser une simulation gratuite

Maison à DOEUIL-SUR-LE-MIGNON
Maison à DOEUIL-SUR-LE-MIGNON
Maison à DOEUIL-SUR-LE-MIGNON
Maison à DOEUIL-SUR-LE-MIGNON
Maison à DOEUIL-SUR-LE-MIGNON
Maison à DOEUIL-SUR-LE-MIGNON
Maison à DOEUIL-SUR-LE-MIGNON
Maison à DOEUIL-SUR-LE-MIGNON
Maison à DOEUIL-SUR-LE-MIGNON
Maison à DOEUIL-SUR-LE-MIGNON
Maison à DOEUIL-SUR-LE-MIGNON
Maison à DOEUIL-SUR-LE-MIGNON
Maison à DOEUIL-SUR-LE-MIGNON
Maison à DOEUIL-SUR-LE-MIGNON
Maison à DOEUIL-SUR-LE-MIGNON
Maison à DOEUIL-SUR-LE-MIGNON
Maison à DOEUIL-SUR-LE-MIGNON
Maison à DOEUIL-SUR-LE-MIGNON
Maison à DOEUIL-SUR-LE-MIGNON
Ce site est protégé par reCAPTCHA la Politique de confidentialité et les Conditions d’utilisation de Google s’appliquent.
Obtenir un prêt immobilier au meilleur taux ?

En poursuivant votre navigation sans modifier vos paramètres, vous acceptez l'utilisation de cookies susceptibles de réaliser des statistiques de visite. Cliquez ici pour plus d'informations