Local commercial neuf fouilloy (80800)

— Corbie 80800 —
304 500 €
140 m²

L’agence APM Immobilier vous propose à la vente une cellule commerciale en VEFA, idéalement située à Fouilloy, commune d’environ 2 500 habitants située à 15 km à l’est d’Amiens.
Le local sera implanté en pied d’immeuble, directement sur l’axe principal de la commune, qui enregistre un trafic de plus de 10 000 véhicules par jour. Il bénéficie d’un emplacement stratégique avec une excellente visibilité, un accès facile et des stationnements inclus dans la vente.
Livraison juin 2026
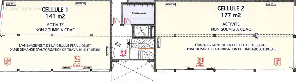
Caractéristiques du bien :


Surface : 141 m2
Livraison prévue : juin 2026
Local livré brut de béton, fluides en attente
Honoraires de négociation : 4 % HT à la charge de l’acquéreur



Points forts :


Axe passant
Emplacement en cœur de ville
Stationnements intégrés
Visibilité optimale
Proximité immédiate d’Amiens



Pour tout renseignement complémentaire, contactez Paul MOURIER au [Coordonnées masquées].
Voir plus

Honoraires d'agence de 5% à la charge de l'acquéreur
Barème des honoraires

Prêt immobilier

Vous souhaitez connaître votre capacité d’emprunt et trouver le meilleur crédit immobilier ?
Réaliser une simulation gratuite

Commerce à CORBIE
Commerce à CORBIE
Commerce à CORBIE
Ce site est protégé par reCAPTCHA la Politique de confidentialité et les Conditions d’utilisation de Google s’appliquent.
Obtenir un prêt immobilier au meilleur taux ?

En poursuivant votre navigation sans modifier vos paramètres, vous acceptez l'utilisation de cookies susceptibles de réaliser des statistiques de visite. Cliquez ici pour plus d'informations