Appartement lyon 4 pièce(s)

— Lyon-9e 69009 —
360 000 €
82 m²
4 pièces
parkingbalcon/terrasseascenseur

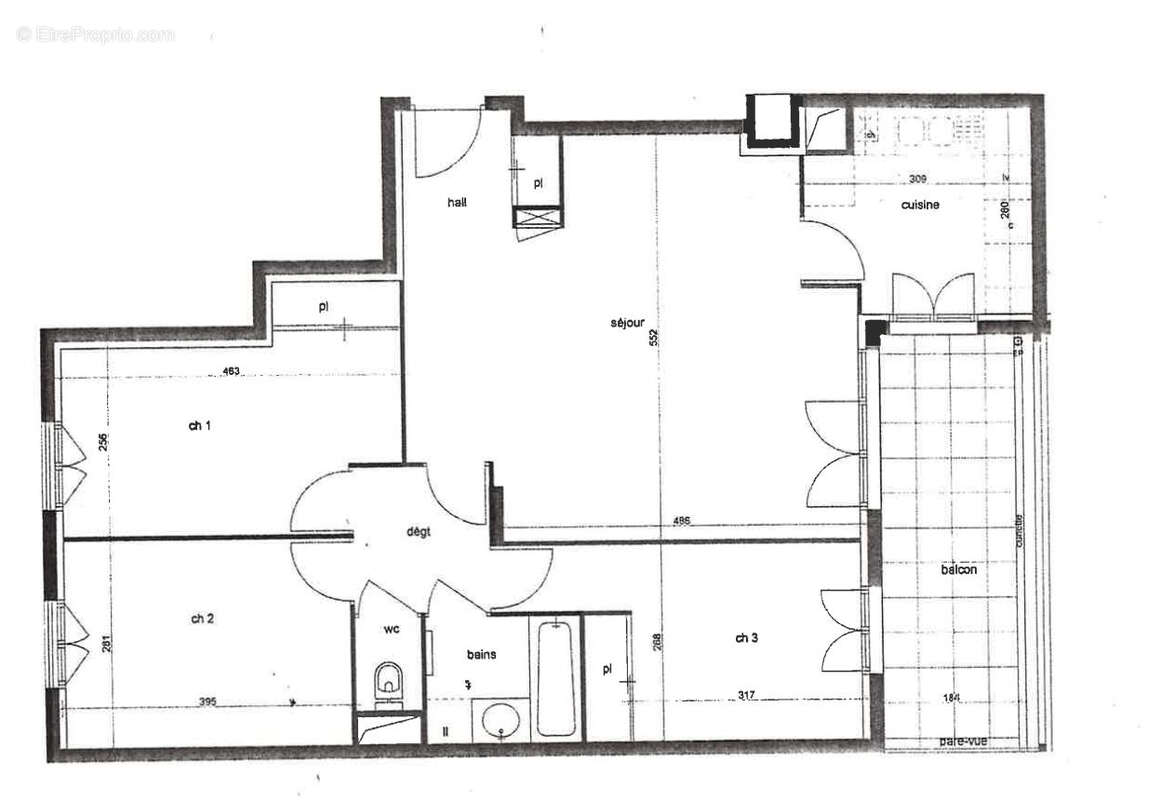
EXCLUSIF, RUE SERGENT MICHEL BERTHET, au NUMERO 42, " LES TERRASES DU 9éme", construction ICADE, à 300 m de Gorge de Loup et 500m de Valmy, dans une résidence de standing datant de 2007, appartement de type T4 traversant d'une surface de 82m2 au 4éme étage, 3 chambres, séjour de 26m2, cuisine séparée, salle de bain, wc et hall d'entrée. Garage fermé en sous-sol et cave. Balcon de 11m2. Prévoir un rafraîchissement général. Charges environ 132 euros/mois. Contact pour plus de renseignements : Guillaume CORDIER au [Coordonnées masquées], Régie Lescuyer et Associés, 11 Place Marechal Lyautey, 69006 LYON.
Voir plus

Référence: 6133
Barème des honoraires

Prêt immobilier

Vous souhaitez connaître votre capacité d’emprunt et trouver le meilleur crédit immobilier ?
Réaliser une simulation gratuite

Appartement à LYON-9E
Appartement à LYON-9E
Appartement à LYON-9E
Appartement à LYON-9E
Appartement à LYON-9E
Appartement à LYON-9E
Appartement à LYON-9E
Appartement à LYON-9E
Appartement à LYON-9E
Appartement à LYON-9E
Ce site est protégé par reCAPTCHA la Politique de confidentialité et les Conditions d’utilisation de Google s’appliquent.
Obtenir un prêt immobilier au meilleur taux ?

En poursuivant votre navigation sans modifier vos paramètres, vous acceptez l'utilisation de cookies susceptibles de réaliser des statistiques de visite. Cliquez ici pour plus d'informations