Bénéficiez des services de nos partenaires locaux soigneusement sélectionnés
pour vous accompagner dans votre parcours d'achat immobilier

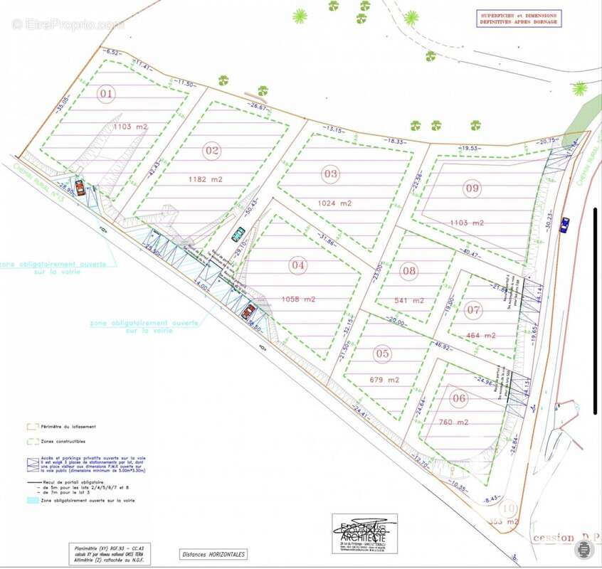
Terrain 679m² à beziers

— Beziers 34500 —
180 000 €
679 m²

Nos partenaires locaux
Iad France - Isaure Champeaux vous propose : BEZIERS, QUARTIER RÉSIDENTIEL, VUE DÉGAGÉE
TERRAIN À BÂTIR DE 679 m²
Permis de construire accepté pour une villa contemporaine
A conserver, modifier ou refaire


Honoraires d'agence à la charge du vendeur.
Bien non soumis au DPE. Les informations sur les risques auxquels ce bien est exposé, y compris l'obligation légale de débroussaillement, sont disponibles sur le site Géorisques : http://www.georisques.gouv.fr.
La présente annonce immobilière a été rédigée sous la responsabilité éditoriale de Mme Isaure Champeaux mandataire indépendant en immobilier (sans détention de fonds), agent commercial de la SAS I@D France immatriculé au RSAC de Béziers sous le numéro 529622789, titulaire de la carte de démarchage immobilier pour le compte de la société I@D France SAS.
Informations LOI ALUR :
Honoraires charge vendeur. (gedeon_6727_31666846)
Voir plus

Référence: 1818615
Honoraires à la charge du vendeur.

Prêt immobilier

Vous souhaitez connaître votre capacité d’emprunt et trouver le meilleur crédit immobilier ?
Réaliser une simulation gratuite

Photo 1 - Terrain à BEZIERS
Photo 1
Photo 2 - Terrain à BEZIERS
Photo 2
Photo 3 - Terrain à BEZIERS
Photo 3
Photo 4 - Terrain à BEZIERS
Photo 4
Ce site est protégé par reCAPTCHA la Politique de confidentialité et les Conditions d’utilisation de Google s’appliquent.
Obtenir un prêt immobilier au meilleur taux ?

En poursuivant votre navigation sans modifier vos paramètres, vous acceptez l'utilisation de cookies susceptibles de réaliser des statistiques de visite. Cliquez ici pour plus d'informations