Bénéficiez des services de nos partenaires locaux soigneusement sélectionnés
pour vous accompagner dans votre parcours d'achat immobilier

Maison 94m² à le taillan-medoc

— Le Taillan-Medoc 33320 —
413 000 €
94 m² / 288 m²
4 pièces
parkingbalcon/terrassejardin

Nos partenaires locaux
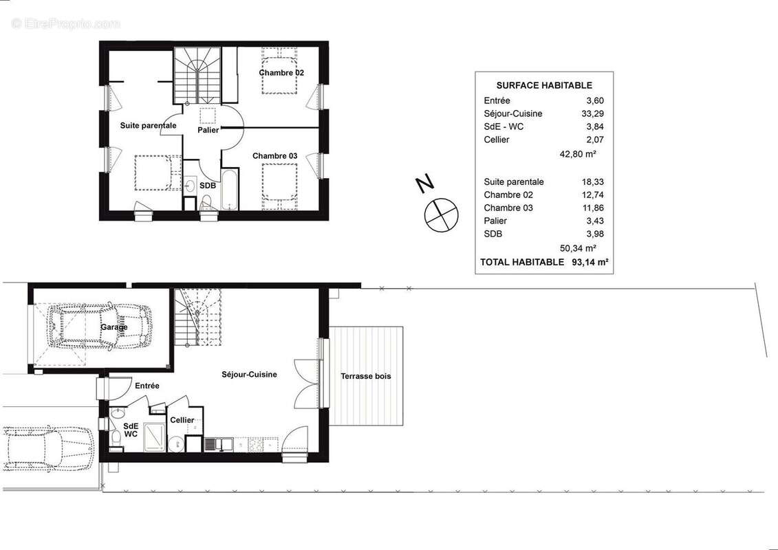
Maison T4, à étage, de 94 m² habitables, avec garage, dans un petit hameau, à 500 m du centre commercial et du collège du Taillan. Sur un terrain de 288 m², au calme en fond de programme, elle est accolée à une autre sur un côté. Elle se compose, au rez-de-chaussée, d'une entrée, d'un séjour-cuisine ouvrant sur le jardin par une large baie, d'un cellier, d'une salle d'eau et d'un garage. À l'étage, d'une chambre parentale avec dressing, de deux chambres et d'une salle de bains. Conforme à la règlementation thermique RE2020, le chauffage-rafraichissement sera assuré par une pompe à chaleur et la production d'eau chaude par un chauffe eau thermodynamique. Le hameau compte 46 logements, la taxe foncière sera de 1900 euros, les charges mensuelles de 30 euros et les honoraires sont à la charge du vendeur. La maison sera disponible début 2027. Les informations sur les risques auxquels de bien est exposé sont disponibles sur le site Géorisques: www.georisque.gouv.fr
Voir plus

Référence: 94
Bien en copropriété. Nombre de lots : 46. Charges de copropriété : 360 €.
Honoraires à la charge du vendeur.
Barème des honoraires

Prêt immobilier

Vous souhaitez connaître votre capacité d’emprunt et trouver le meilleur crédit immobilier ?
Réaliser une simulation gratuite

Maison à LE TAILLAN-MEDOC
Maison à LE TAILLAN-MEDOC
Maison à LE TAILLAN-MEDOC
Ce site est protégé par reCAPTCHA la Politique de confidentialité et les Conditions d’utilisation de Google s’appliquent.
Obtenir un prêt immobilier au meilleur taux ?

En poursuivant votre navigation sans modifier vos paramètres, vous acceptez l'utilisation de cookies susceptibles de réaliser des statistiques de visite. Cliquez ici pour plus d'informations