Appartement 2 pièces - 42,63m2 - 1er étage

— Tournefeuille 31170 —
232 000 €
43 m²
2 pièces
parkingbalcon/terrasse

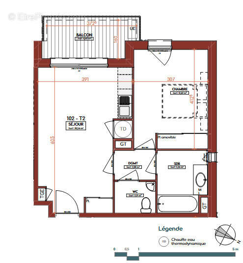
Contactez Magali, IMMOJOY Fonsorbes de 9h à 21h tous les jours pour visiter ce bel appartement de 42,5m2 composé d'une cuisine semi-équipée donnant sur un séjour de 20m2 ouvrant sur un balcon couvert de 6,5m2, d'un dégagement menant au coin nuit comprenant une chambre de 12,5m2 avec placard, une salle de bains et un toilette indépendant.

Ce bien se situe au sein d'une petite résidence fermée et sécurisée de 9 lots construite en 2025, en plein centre de Tournefeuille, proposant tous les avantages de la RE 2020 : climatisation réversible, ballon thermodynamique, menusieries automatisées alu, carrelage 60 x 60, parquet 12mm, ascenseur, pas de logements sociaux. Il bénéficie d'une exposition SO.

2 places de stationnement semi-aériennes complètent le tout.
Cette annonce vous est proposée par LAURENT Magali - EI - NoRSAC: 880 666 557, Enregistré à Chambre de commerce et de l'industrie de TOULOUSE
Voir plus

Référence: 4674
Bien en copropriété. Nombre de lots : 9.
Honoraires à la charge du vendeur.
Barème des honoraires

Prêt immobilier

Vous souhaitez connaître votre capacité d’emprunt et trouver le meilleur crédit immobilier ?
Réaliser une simulation gratuite

Appartement à TOURNEFEUILLE
Appartement à TOURNEFEUILLE
Ce site est protégé par reCAPTCHA la Politique de confidentialité et les Conditions d’utilisation de Google s’appliquent.
Obtenir un prêt immobilier au meilleur taux ?

En poursuivant votre navigation sans modifier vos paramètres, vous acceptez l'utilisation de cookies susceptibles de réaliser des statistiques de visite. Cliquez ici pour plus d'informations