Maison mitoyenne exposée plein sud de 123 m2 à rénover sur fougères

— Fougeres 35300 —
168 500 €
123 m² / 695 m²
7 pièces
parkingbalcon/terrasse

Maison à rénover de 123 m2 dans un quartier calme à l'abri des regards.
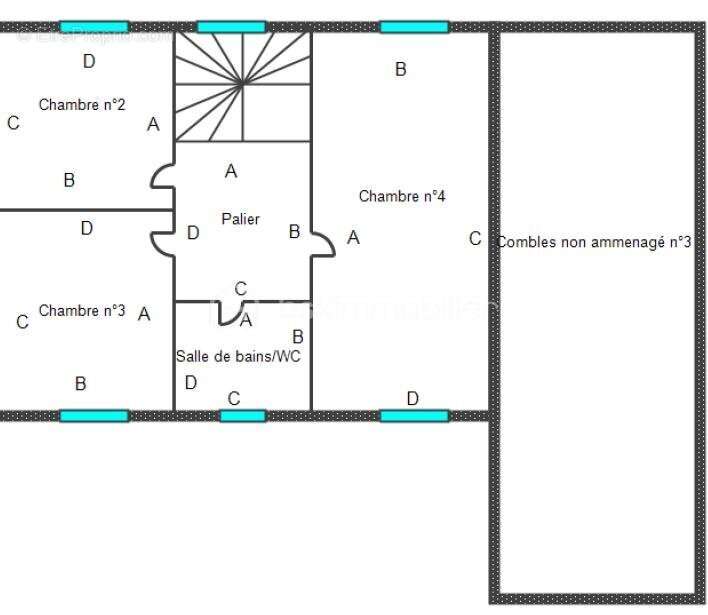
Elle se compose actuellement de 7 pièces dont 5 chambres, à savoir :

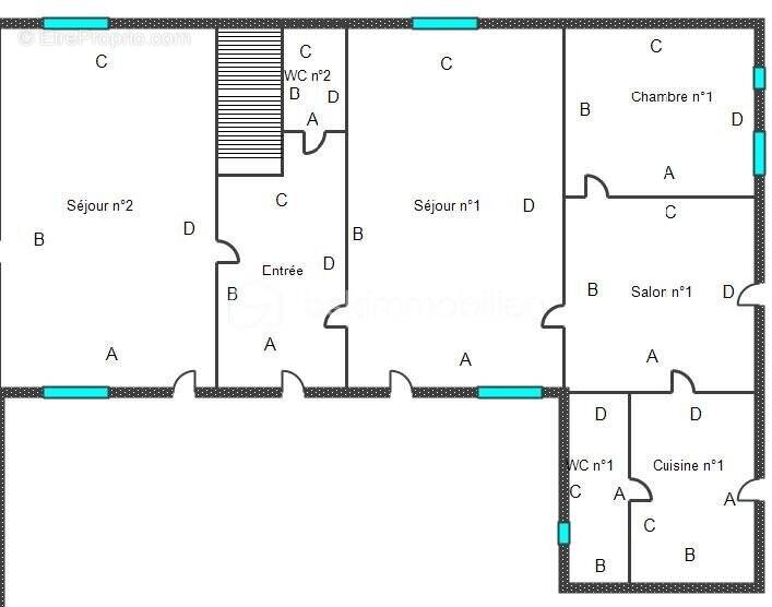
Au RDC : Entrée - Salon - Salle à manger, Cuisine isolé avec accès vers l'extérieur, chambre ou bureau, Grande Chambre, WC séparé
A l'Etage : 3 belles chambres, salle de bain avec WC
Parcelle de 695 m2

Les + : Beau potentiel, Doubles vitrage, Parquet bois,
Les ++ : Accès aux commodités de proximité (Ecoles, Bar -Tabac, Rocade, Salles de sport...)

Maison principale ! Avis aux investisseurs ! A voir immédiatement !

Les points à revoir : Electricité, Chauffage, Isolation, Cuisine, Extérieur
Audit énergétique réalisé

Cette annonce référence 299191 vous est présentée par votre agent commercial BSK Immobilier SYLVAIN TREHET (EI) immatriculé au RSAC de RENNES (35000) sous le numéro 93474777500013.

Prix du bien : 168 500,00 €
Les honoraires d'agence sont à la charge du vendeur.

A propos des performances énergétiques :
Date de réalisation du diagnostic énergétique : 28/08/2025
Score DPE : 249 kWhEP/m²/an
Score GES : 78 kgepCO2/m²/an
Montant estimé des dépenses annuelles d'énergie pour un usage standard : entre 3879.00 € et 5249.00 € par an. Prix moyens des énergies indexés sur l'année 2023 (abonnements compris).

Les informations sur les risques auxquels ce bien est exposé sont disponibles sur le site Géorisques : www.georisques.gouv.fr
Voir plus

Référence: 299191
Honoraires à la charge du vendeur.
DPE
A
B
C
D
E
F
G
GES
A
B
C
D
E
F
G

Prêt immobilier

Vous souhaitez connaître votre capacité d’emprunt et trouver le meilleur crédit immobilier ?
Réaliser une simulation gratuite

Maison à FOUGERES
Maison à FOUGERES
Maison à FOUGERES
Maison à FOUGERES
Maison à FOUGERES
Ce site est protégé par reCAPTCHA la Politique de confidentialité et les Conditions d’utilisation de Google s’appliquent.
Obtenir un prêt immobilier au meilleur taux ?

En poursuivant votre navigation sans modifier vos paramètres, vous acceptez l'utilisation de cookies susceptibles de réaliser des statistiques de visite. Cliquez ici pour plus d'informations