Bénéficiez des services de nos partenaires locaux soigneusement sélectionnés
pour vous accompagner dans votre parcours d'achat immobilier

Villa de prestige neuve de 124 m2

— Millau 12100 —
480 000 €
124 m² / 1 041 m²
4 pièces
parkingjardinpiscine

Nos partenaires locaux
Posez vos valises dans cette superbe villa contemporaine, située sur les hauteurs de Millau, offrant une vue exceptionnelle sur le Pouncho d’Agast et les causses environnants.
Achevée en 2025, cette propriété rare sur le secteur allie prestations haut de gamme et matériaux de qualité.

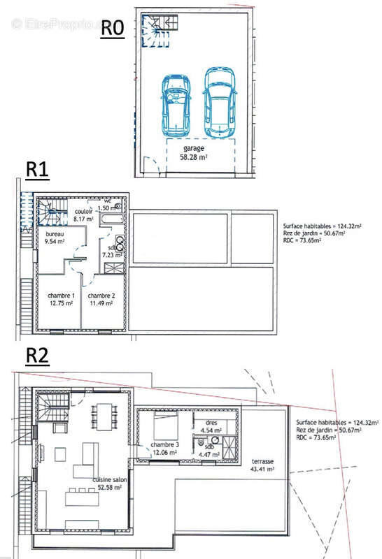
En rez-de-chaussée :


Garage spacieux de 58,28 m2.


 
À l'étage supérieur:


Coin nuit composé de deux chambres (11,49 m2 et 12,75 m2) et d’un bureau (9,50 m2).


Salle de bain avec douche et baignoire (7,23 m2).


WC séparé.


 
Au dernier niveau :


Pièce à vivre de 52,58 m2 baignée de lumière, avec vue panoramique sur les causses et accès direct à la piscine à débordement (7,50 m x 3,75 m).


Suite parentale de 21 m2 avec dressing et salle d’eau privative.


 
Confort et prestations :


Chauffage par pompe à chaleur air/air gainable en plafond.


Matériaux haut de gamme et finitions soignées.


Vue dominante et environnement privilégié.


 
Un bien d’exception sur Millau, idéal pour les amateurs de design, de confort et de panorama unique !!!
 
Cette annonce vous est proposée par GUIDICE Romain - EIRL - NoRSAC: 841730393, Enregistré à Greffe du tribunal de commerce de Rodez - Annonce rédigée et publiée par un Agent Mandataire -
Voir plus

Référence: 93245
Honoraires à la charge du vendeur.
Barème des honoraires
DPE
A
B
C
D
E
F
G
GES
A
B
C
D
E
F
G

Prêt immobilier

Vous souhaitez connaître votre capacité d’emprunt et trouver le meilleur crédit immobilier ?
Réaliser une simulation gratuite

Maison à MILLAU
Maison à MILLAU
Maison à MILLAU
Maison à MILLAU
Maison à MILLAU
Maison à MILLAU
Maison à MILLAU
Maison à MILLAU
Maison à MILLAU
Maison à MILLAU
Maison à MILLAU
Maison à MILLAU
Maison à MILLAU
Maison à MILLAU
Maison à MILLAU
Maison à MILLAU
Maison à MILLAU
Maison à MILLAU
Maison à MILLAU
Maison à MILLAU
Ce site est protégé par reCAPTCHA la Politique de confidentialité et les Conditions d’utilisation de Google s’appliquent.
Obtenir un prêt immobilier au meilleur taux ?

En poursuivant votre navigation sans modifier vos paramètres, vous acceptez l'utilisation de cookies susceptibles de réaliser des statistiques de visite. Cliquez ici pour plus d'informations