Bénéficiez des services de nos partenaires locaux soigneusement sélectionnés
pour vous accompagner dans votre parcours d'achat immobilier

Maison 144m² à marseille 6e arrondissement

— Marseille-6e 13006 —
1 100 000 €
144 m² / 41 m²
4 pièces
jardinaccès handicapé

Nos partenaires locaux
ERA immo du parc vous propose a la vente au 22 rue Montevideo, à deux pas de Notre-Dame de la Garde
Livraison fin 2025 , Maison neuve

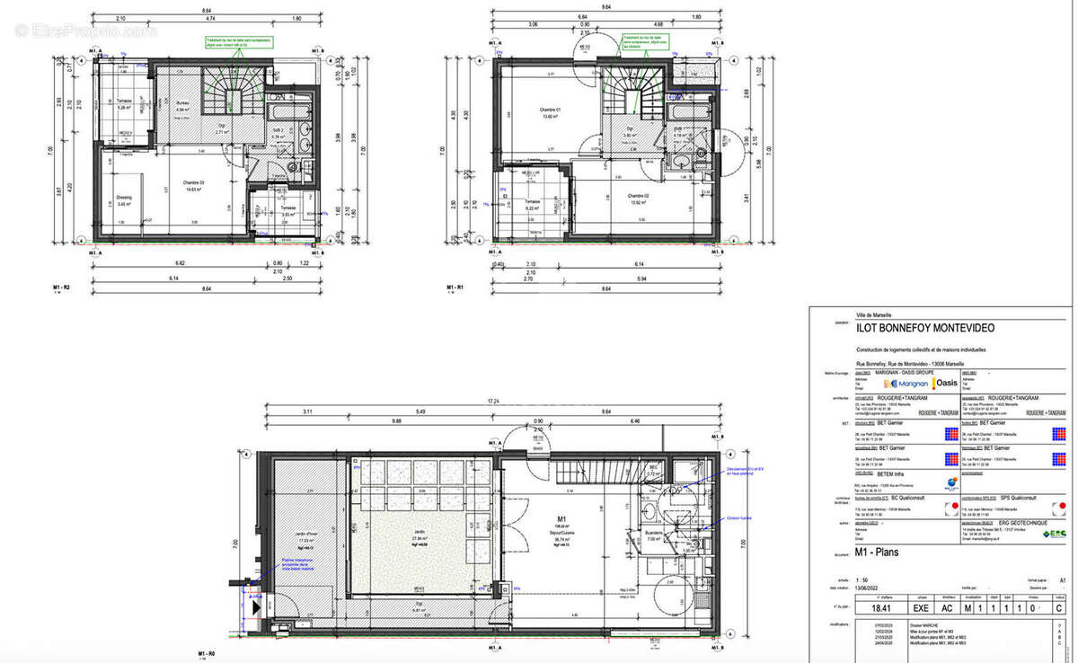
Située dans une résidence contemporaine en cours de construction, cette magnifique maison T4 de 144 m² avec 41m2 de jardin vous offre un cadre de vie exceptionnel au coeur du 6e arrondissement de Marseille, à proximité immédiate de Notre-Dame de la Garde.

La maison, sur 3 niveaux, est exposée Ouest et possède un garage fermé en sous-sol.

Composition :
Rez-de-chaussée :
- Grand séjour avec cuisine ouverte de 34m² donnant sur la terrasse et le jardin
- Une mezzanine
- Une buanderie
- Un WC
1er étage :
- Deux chambres
- Une salle de bain avec WC
- Une terrasse
2ème étage
- Une chambre
- Un bureau
- Une salle de bain avec WC
- Une terrasse

Atouts :
- Maison neuve aux normes actuelles (livraison prévue fin 2025)
- Luminosité optimale grâce à l'exposition ouest
- Jardin agréable pour profiter des beaux jours
- Garage inclus
- Emplacement recherché, proche des commerces, écoles, transports et lieux emblématiques de la ville

Pour plus d'informations ou pour recevoir le dossier complet, n'hésitez pas à nous contacter.
Voir plus

Référence: 662-CS

Prêt immobilier

Vous souhaitez connaître votre capacité d’emprunt et trouver le meilleur crédit immobilier ?
Réaliser une simulation gratuite

Maison à MARSEILLE-6E
Maison à MARSEILLE-6E
Maison à MARSEILLE-6E
Maison à MARSEILLE-6E
Ce site est protégé par reCAPTCHA la Politique de confidentialité et les Conditions d’utilisation de Google s’appliquent.
Obtenir un prêt immobilier au meilleur taux ?

En poursuivant votre navigation sans modifier vos paramètres, vous acceptez l'utilisation de cookies susceptibles de réaliser des statistiques de visite. Cliquez ici pour plus d'informations