Maison à vendre 8 pièces cayenne (973)

— Cayenne 97300 —
270 000 €
230 m² / 419 m²
8 pièces
parkingbalcon/terrassejardin

À VENDRE – propriété 2 lots – Idéale grande famille, investissement locatif ou profession libérale !
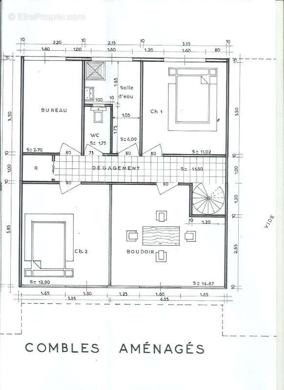
Découvrez cette propriété de 185 m² habitables, située sur un terrain de 419 m², offrant de nombreuses possibilités d'aménagement et d'usage !
Au Rez-de-chaussée – Appartement T5 de 120 m² décomposé en un grand séjour lumineux, une cuisine séparée, 4 chambres spacieuses, une chambre PMR (personne à mobilité réduite) de 25 m² comprenant chambre, salle d'eau et WC adaptés, une salle de bain et un WC séparé
Parfait pour une famille ou une profession libérale avec espace indépendant.

à l'étage – Appartement T3 indépendant de 65 m² composé d'une pièce de vie avec cuisine ouverte, 2 chambres, une Salle d'eau avec WC
Idéal pour du ocatif

L'Extérieurs :
Terrain de 419 m²
Stationnement possible
Petite cour

Les points forts :
Surface totale de 185 m² habitables sur un terrain de 419 m²
Au RDC : Appartement T5 de 120 m², dont une chambre de 25 m² avec salle d'eau et WC adaptés PMR
À l'étage : T3 de 65 m² avec entrée indépendante – parfait pour de la location ou un logement d'appoint
Pièces spacieuses et lumineuses
Proximité immédiate de toutes les commodités de Cayenne
Parcelle aménageable

À prévoir :
Gros ravaux de rénovation intérieure et extérieure
Mise aux normes des réseaux
Situé en bordure de rue, dans un quartier populaire mais en développement

Ce bien représente une opportunité idéale pour qui souhaite investir dans une propriété à fort potentiel locatif ou familial, avec une surface rare en cœur de ville
Les honoraires sont à la charge du vendeur.
Les informations sur les risques auxquels ce bien est exposé sont disponibles sur le site Géorisques : www. georisques. gouv. fr.

Réseau Immobilier CAPIFRANCE - Votre agent commercial (RSAC N°438 073 439 - Greffe de CAYENNE) Henri LOUPEC Entrepreneur Individuel +594694414345 - Réf.917488
Voir plus

Référence: 340937564856
Honoraires à la charge du vendeur.

Prêt immobilier

Vous souhaitez connaître votre capacité d’emprunt et trouver le meilleur crédit immobilier ?
Réaliser une simulation gratuite

Maison à CAYENNE
Maison à CAYENNE
Maison à CAYENNE
Maison à CAYENNE
Maison à CAYENNE
Maison à CAYENNE
Maison à CAYENNE
Maison à CAYENNE
Maison à CAYENNE
Maison à CAYENNE
Maison à CAYENNE
Maison à CAYENNE
Maison à CAYENNE
Maison à CAYENNE
Ce site est protégé par reCAPTCHA la Politique de confidentialité et les Conditions d’utilisation de Google s’appliquent.
Obtenir un prêt immobilier au meilleur taux ?

En poursuivant votre navigation sans modifier vos paramètres, vous acceptez l'utilisation de cookies susceptibles de réaliser des statistiques de visite. Cliquez ici pour plus d'informations