Bénéficiez des services de nos partenaires locaux soigneusement sélectionnés
pour vous accompagner dans votre parcours d'achat immobilier

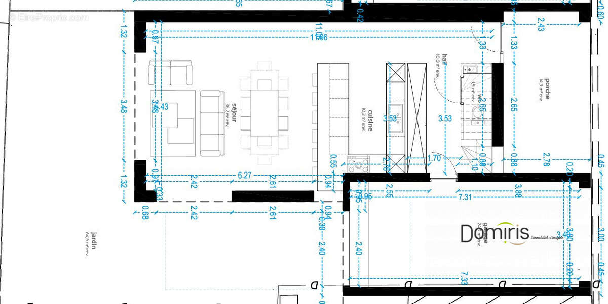
Maison 127m² à lys-lez-lannoy

— Lys-Lez-Lannoy 59390 —
244 000 €
127 m² / 180 m²
5 pièces
parkingbalcon/terrassejardin

Nos partenaires locaux
À saisir ! Projet de construction à personnaliser selon vos envies, situé dans un quartier calme et recherché de Lys-lez-Lannoy.
Cette maison neuve de 127 m² habitables, édifiée sur un terrain de 180 m², est vendue hors d'eau / hors d'air (clos couvert, toiture et menuiseries extérieures posées). L'intérieur reste à aménager selon vos goûts !
? Caractéristiques principales :
Surface habitable : 127 m²
Plan prévu :4 chambres (dont une suite parentale possible)
2 salles de bains
Grande pièce de vie ouverte
Garage intégré

Terrain : 180 m²
? Les + :
Construction neuve, conforme aux normes
Gros oeuvre terminé : gain de temps et de budget
Emplacement stratégique : proche de Lille, écoles, commerces et axes routiers
Une opportunité rare pour concrétiser un projet familial avec confort et modernité.
Contactez-nous dès maintenant pour plus d'informations, plans disponibles sur demande.

Honoraires inclus de 3.83% TTC à la charge de l'acquéreur. Prix hors honoraires 235 000 €. Non soumis au DPE. Les informations sur les risques auxquels ce bien est exposé sont disponibles sur le site Géorisques : georisques.gouv.fr.
Voir plus

Référence: 588-DOMIRIS
Honoraires d'agence de 3.83% à la charge de l'acquéreur

Prêt immobilier

Vous souhaitez connaître votre capacité d’emprunt et trouver le meilleur crédit immobilier ?
Réaliser une simulation gratuite

Maison à LYS-LEZ-LANNOY
Maison à LYS-LEZ-LANNOY
Maison à LYS-LEZ-LANNOY
Maison à LYS-LEZ-LANNOY
Maison à LYS-LEZ-LANNOY
Maison à LYS-LEZ-LANNOY
Maison à LYS-LEZ-LANNOY
Maison à LYS-LEZ-LANNOY
Maison à LYS-LEZ-LANNOY
Ce site est protégé par reCAPTCHA la Politique de confidentialité et les Conditions d’utilisation de Google s’appliquent.
Obtenir un prêt immobilier au meilleur taux ?

En poursuivant votre navigation sans modifier vos paramètres, vous acceptez l'utilisation de cookies susceptibles de réaliser des statistiques de visite. Cliquez ici pour plus d'informations