Appartement familial avec vue dégagée proche du futur métro

— Aulnay-Sous-Bois 93600 —
140 000 €
79 m²
4 pièces
balcon/terrasse

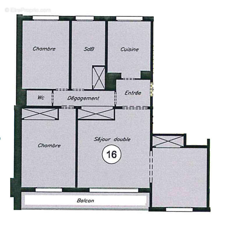
1001 VIES HABITAT VEND à AULNAY SOUS BOIS (93600). Un appartement T4 de 79,18 m² au 7e étage. Réf. 1137030034. Lot n°16.

Au sein d'une résidence calme avec gardien située à proximité du centre commercial des Etangs, de toutes commodités et à 600 mètres de la future ligne 16 du Grand Paris Express, venez découvrir ce lumineux appartement avec vue dégagée.

Ce bien comprend une entrée, une cuisine fermée, un double séjour-salle à manger (ou 3e chambre) donnant accès au balcon, un dégagement avec placards, deux chambres dont une avec placards, une grande salle de bains avec placards et un WC séparé.

Rafraîchissement à prévoir. Chauffage collectif.

Atouts supplémentaires :
- Proche des commerces et des commodités,
- Résidence calme avec gardien,
- Appartement lumineux avec vue dégagée.

DPE : D (222 kWh/m2.an) - GES : D (45 kg CO2/m2.an). Montant des dépenses énergétiques estimé entre 1 330 et 1830 €/an (prix moyen des énergies indexé au 01/01/2023, abonnement compris). Copropriété de 172 lots (dont 72 logements) sans procédure en cours. Charges estimées à 3 948 €/an.

Prix de vente : 140 000 €. Honoraires à la charge du vendeur. Aucun frais d'agence.

Les informations sur les risques auxquels ce bien est exposé sont disponibles sur le site Géorisques : www.georisques.gouv.fr
Voir plus

Référence: 93-21-005565
Bien en copropriété. Nombre de lots : 172.
DPE
A
B
C
D
E
F
G
GES
A
B
C
D
E
F
G

Prêt immobilier

Vous souhaitez connaître votre capacité d’emprunt et trouver le meilleur crédit immobilier ?
Réaliser une simulation gratuite

Appartement à AULNAY-SOUS-BOIS
Appartement à AULNAY-SOUS-BOIS
Appartement à AULNAY-SOUS-BOIS
Appartement à AULNAY-SOUS-BOIS
Appartement à AULNAY-SOUS-BOIS
Appartement à AULNAY-SOUS-BOIS
Ce site est protégé par reCAPTCHA la Politique de confidentialité et les Conditions d’utilisation de Google s’appliquent.
Obtenir un prêt immobilier au meilleur taux ?

En poursuivant votre navigation sans modifier vos paramètres, vous acceptez l'utilisation de cookies susceptibles de réaliser des statistiques de visite. Cliquez ici pour plus d'informations