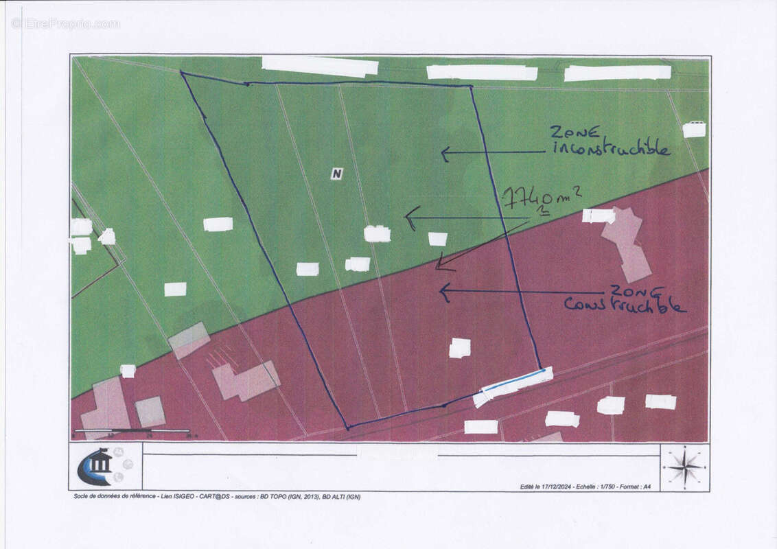
Terrain constructible 7740 m2 secteur résidentiel - vaunac

— Vaunac 24800 —
42 000 €
7 740 m²
jardin

Vaunac - 30 minutes de Périgueux Centre , 8 minutes du village de Sorges : Terrain constructible PLAT de 7740 m2 situé au coeur d'un secteur résidentiel . Le terrain est constructible sur 3500 m2, le restant sera de la zone verte. Possibilité de diviser, possibilité d'acheter la moitié sur demande. Non viabilisé, l'étude de sols G1 sera faite dès la première proposition d'achat sérieuse.
Prix pour la totalité soit 7740 m2 : 42000 euros TTC frais d'agence inclus commision charge vendeur
Prix pour la moitié soit 3870 m2 : 26000 euros TTC frais d'agence inclus commission charge vendeur
Cadre idyllique, calme , résidentiel et proche du Bourg ; COUP DE COEUR 2025 de l'agence . A visiter sans perdre une minute.
Voir plus

Référence: CARD 132
Honoraires à la charge du vendeur.
Barème des honoraires

Prêt immobilier

Vous souhaitez connaître votre capacité d’emprunt et trouver le meilleur crédit immobilier ?
Réaliser une simulation gratuite

Terrain à VAUNAC
Terrain à VAUNAC
Terrain à VAUNAC
Terrain à VAUNAC
Terrain à VAUNAC
Terrain à VAUNAC
Ce site est protégé par reCAPTCHA la Politique de confidentialité et les Conditions d’utilisation de Google s’appliquent.
Obtenir un prêt immobilier au meilleur taux ?

En poursuivant votre navigation sans modifier vos paramètres, vous acceptez l'utilisation de cookies susceptibles de réaliser des statistiques de visite. Cliquez ici pour plus d'informations