Bénéficiez des services de nos partenaires locaux soigneusement sélectionnés
pour vous accompagner dans votre parcours d'achat immobilier

Antibes – villa apercu mer, beaucoup charme avec potentiel,calme absolu, proche des commodités, jardin plat piscine.

— Antibes 06600 —
1 480 000 €
215 m² / 1 700 m²
7 pièces
balcon/terrassejardinpiscine

Nos partenaires locaux
Antibes – Villa apercu mer, beaucoup charme avec potentiel,calme absolu, proche des commodités, jardin plat piscine.

Située sur l’une des collines résidentielles d’Antibes, au calme absolu et à proximité immédiate des commerces, cette villa construite en 1982 offre environ 215 m² habitables, sur un terrain plat de 1.738 m² agrémenté d’une piscine de 12 m x 6 m et de nombreuses places de parking.

Bien entretenue au fil des années, la maison est habitable immediatement ou elle peut etre mis au gout du jour, offrant ainsi un très beau potentiel depersonnalisation.

Actuellement, elle est divisée en trois appartements indépendants — deux niveaux principaux et un studio — que l’on peut facilement réunir :

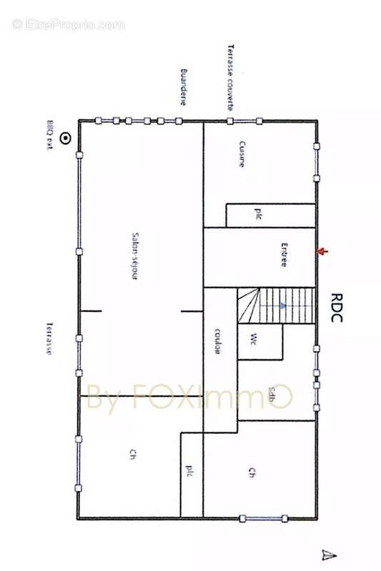
Rez-de-jardin (env. 110 m²) : séjour / salle à manger / bureau ouvrant sur terrasse, cuisine équipée donnant sur une véranda d’environ 20 m² et une grande terrasse, deux chambres, salle de bains/douche/WC, buanderie et WC invités.

Au 1er étage (env. 77 m²) : séjour, cuisine équipée ouvrant sur terrasse vue mer , deux chambres, salle d’eau, dressing et WC invités.

Rez-de-chaussé (env. 30 m²) : studio indépendant avec cuisine et salle d’eau à terminer. une grznde cave et une salle de jeux


Le jardin, plat et soigneusement complanté, prolonge agréablement les terrasses et entoure la piscine, créant un environnement verdoyant et paisible — un atout rare dans ce secteur.

À seulement 8 minutes du centre-ville et 3 minutes de l’autoroute, cette propriété combine tranquillité, emplacement recherché et nombreuses possibilités d’aménagement.

Prix frais agence inclus / Commission vendeur
Les informations sur les risques auxquels ce bien est exposé sont disponibles sur le site de Géorisques : georisques.gouv.fr
REF 3731FEN
Voir plus

Référence: 3731FEN
DPE
A
B
C
D
E
F
G

Prêt immobilier

Vous souhaitez connaître votre capacité d’emprunt et trouver le meilleur crédit immobilier ?
Réaliser une simulation gratuite

Maison à ANTIBES
Maison à ANTIBES
Maison à ANTIBES
Maison à ANTIBES
Maison à ANTIBES
Maison à ANTIBES
Maison à ANTIBES
Maison à ANTIBES
Maison à ANTIBES
Maison à ANTIBES
Maison à ANTIBES
Maison à ANTIBES
Maison à ANTIBES
Maison à ANTIBES
Maison à ANTIBES
Maison à ANTIBES
Maison à ANTIBES
Maison à ANTIBES
Maison à ANTIBES
Maison à ANTIBES
Maison à ANTIBES
Maison à ANTIBES
Ce site est protégé par reCAPTCHA la Politique de confidentialité et les Conditions d’utilisation de Google s’appliquent.
Obtenir un prêt immobilier au meilleur taux ?

En poursuivant votre navigation sans modifier vos paramètres, vous acceptez l'utilisation de cookies susceptibles de réaliser des statistiques de visite. Cliquez ici pour plus d'informations