Bénéficiez des services de nos partenaires locaux soigneusement sélectionnés
pour vous accompagner dans votre parcours d'achat immobilier

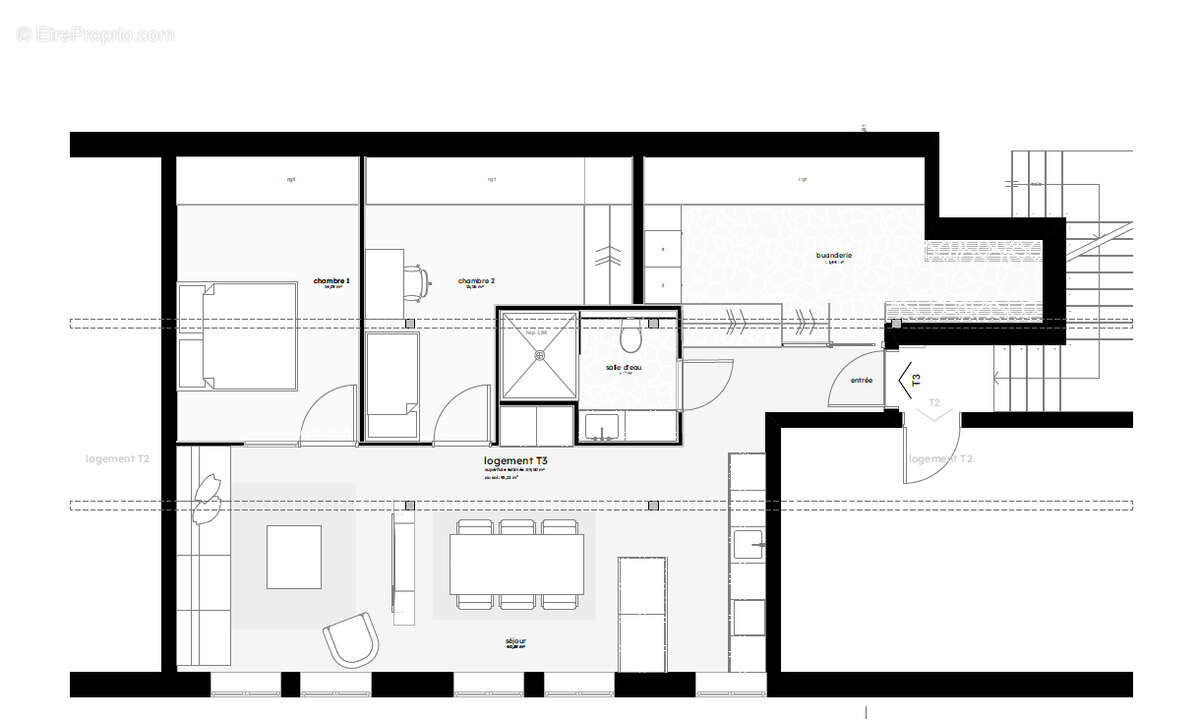
Appartement les fins 3pièce(s) 67 m2

— Les Fins 25500 —
133 000 €
67 m²
3 pièces
parking

Nos partenaires locaux
Plateau brut à aménager - LES FINS * Idéal investisseur ou premier achat * Au premier étage d'une petite copropriété de 5 logements, découvrez ce plateau brut de 67 m² Carrez (95 m² au sol) - idéal T3 - à agencer entièrement pour créer votre appartement sur mesure. Un programme de réhabilitation aux atouts indéniables : - Appartements du T2 au T4 - Facilités de stationnement - Proche commerces - Places de stationnement disponibles en sus Ne laissez pas passer cette opportunité ! Plus d'infos et visites en agence ! ** Visuels 3D non contractuels
Voir plus

Bien en copropriété. Procédure en cours.
Barème des honoraires

Prêt immobilier

Vous souhaitez connaître votre capacité d’emprunt et trouver le meilleur crédit immobilier ?
Réaliser une simulation gratuite

Appartement à LES FINS
Appartement à LES FINS
Appartement à LES FINS
Appartement à LES FINS
Appartement à LES FINS
Appartement à LES FINS
Appartement à LES FINS
Appartement à LES FINS
Appartement à LES FINS
Appartement à LES FINS
Appartement à LES FINS
Appartement à LES FINS
Ce site est protégé par reCAPTCHA la Politique de confidentialité et les Conditions d’utilisation de Google s’appliquent.
Obtenir un prêt immobilier au meilleur taux ?

En poursuivant votre navigation sans modifier vos paramètres, vous acceptez l'utilisation de cookies susceptibles de réaliser des statistiques de visite. Cliquez ici pour plus d'informations