Bénéficiez des services de nos partenaires locaux soigneusement sélectionnés
pour vous accompagner dans votre parcours d'achat immobilier

Bruz - proche gare - appartement t3 refait à neuf

— Bruz 35170 —
215 000 €
61 m²
3 pièces
parkingbalcon/terrasse

Nos partenaires locaux
En Exclusivité !
Smart Proprio Bretagne vous présente à la vente ce beau T3 de 61m2 refait à neuf.
Idéal pour un premier achat immobilier ou pour un investissement locatif, vous êtes à 5 min de Kerlann.
Sa situation vous offre un environnement calme, amplifié par le double vitrage équipant l'ensemble de l'appartement.
Situé au Rez-de-chaussée (Surélevé) vous bénéficierez d'un belle luminosité et d'un balcon exposé au SUD.
 Le Bien est composé de 3 lots:
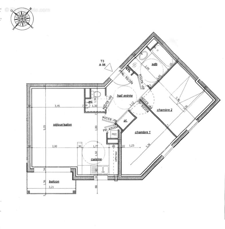
1. AU REZ DE CHAUSSEE DU BATIMENT A : Un appartement de type 3 comprenant un séjour / cuisine ouverte (26m2), deux chambres (11m2 et 10m2) , salle de bains, WC, hall, balcon. 
2. AU SOUS SOL DES BATIMENTS A ET B : Un garage de 16.54 m2
3. EN EXTERIEUR : Un parking de 12.50m2
L'immeuble est raccordé à la Fibre Optique.
Vous serez proche de toutes les commodités et transports à pieds.
Taxe Foncière 2024 : 1 119, 00 €
Charges de copro / trimestre : 226 €

Prix de vente : 215 000 € FAI frais de négociation à la charge du vendeur inclus

Diagnostic énergétique : Classe C pour la performance énergétique et C pour l’impact environnemental. (établis en Juillet 2025)
Estimation des coûts annuels : entre 850 € et 1 190 € par an, Prix moyens des énergies indexés sur les années 2021, 2022, 2023
Appartement libre et disponible immédiatement.
Copropriété de 37 lots d'habitation répartis en 2 bâtiments. Pas de procédure en cours.
Informations sur les risques naturels, miniers, ou technologiques disponibles sur le site : www.georisques.gouv.fr.
Pour plus de renseignements contactez nous au [Coordonnées masquées] ou par mail : [Coordonnées masquées]
Expert Immobilier Certifié CFEI No2020/920, Agent commercial immatriculé sous le numéro 537898025 RSAC de RENNES. Rattaché à la carte T NoCPI75[Coordonnées masquées]00031
Annonce proposée par un agent commercial.
Cette annonce vous est proposée par Smart Proprio Rennes - SAS - NoRSAC: RENNES 537 898 025, Enregistré à Greffe du tribunal de grande instance de RENNES - Annonce rédigée et publiée par un Agent Mandataire -
Voir plus

Référence: 850
Bien en copropriété. Nombre de lots : 101. Charges de copropriété : 1350 €.
Honoraires à la charge du vendeur.
Barème des honoraires
DPE
A
B
C
D
E
F
G
GES
A
B
C
D
E
F
G

Prêt immobilier

Vous souhaitez connaître votre capacité d’emprunt et trouver le meilleur crédit immobilier ?
Réaliser une simulation gratuite

Appartement à BRUZ
Appartement à BRUZ
Appartement à BRUZ
Appartement à BRUZ
Appartement à BRUZ
Appartement à BRUZ
Appartement à BRUZ
Appartement à BRUZ
Appartement à BRUZ
Appartement à BRUZ
Appartement à BRUZ
Appartement à BRUZ
Ce site est protégé par reCAPTCHA la Politique de confidentialité et les Conditions d’utilisation de Google s’appliquent.
Obtenir un prêt immobilier au meilleur taux ?

En poursuivant votre navigation sans modifier vos paramètres, vous acceptez l'utilisation de cookies susceptibles de réaliser des statistiques de visite. Cliquez ici pour plus d'informations