Demeure en pierres centre ville

— Lectoure 32700 —
1 250 000 €
360 m²
13 pièces
parkingbalcon/terrasse

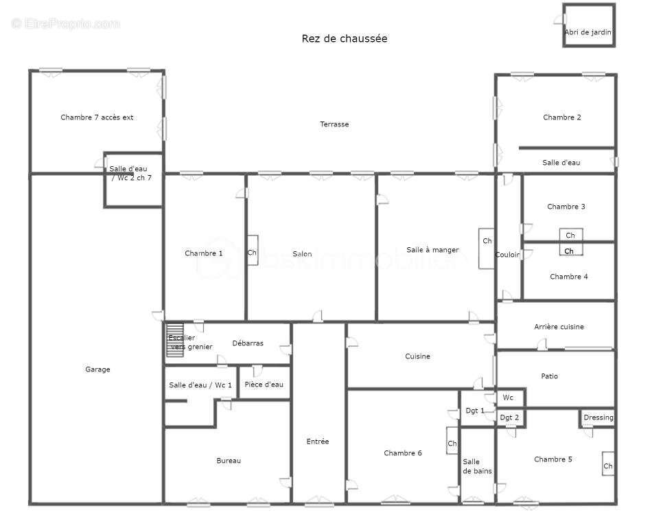
*** RARE *** Posée sur les remparts Sud de Lectoure 32700, petite ville touristique de Gascogne, halte sur le chemin de St Jacques de Compostelle, ville thermale au patrimoine architectural remarquable, découvrons ensemble cette maison bourgeoise de type chartreuse du XVIIIe (période faste de notre ville) de plain-pied en U de 370m² habitables avec terrasse, patio et jardin suspendu. La vue est époustouflante sur la plaine du Gers, les coteaux de Lomagne et à l'horizon la chaine des Pyrénées.
Une belle porte en bois ouvre sur un hall d'entrée avec son sol carrelé bicolore qui mène au salon de 40m2 avec son parquet remarquable. De part et d'autre, sont distribuées 8 chambres de 13 à 31m² et leurs salles de bains privatives. La cuisine de 27m2 est lumineuse car elle donne sur un patio exposé Ouest.
Dès l'entrée, le charme des demeures cossues d'antan opère : plafonds culminant à 3.80m, tissu tendu en lin rubis habillant les murs en pierres pour une atmosphère feutrée, pierres apparentes, sols parquetés, portes en bois moulurées, portes vitrées donnant sur le jardin.
Les pièces de vie et les chambres ont toutes des cheminées et plusieurs fenêtres de grande dimension. La salle à manger de 36m2 ouvrent sur la terrasse exposée au Sud et le jardin. Traversez le jardin joliment planté pour découvrir le pigeonnier et son belvédère qui surplombent le rempart de la ville. Relaxez-vous en famille et entre amis sous les muriers-platanes de la terrasse, profitez de la vue exceptionnelle, c'est un havre de paix en cœur de ville.
La maison est équipée d'un chauffage central au fioul, de volets en bois, de survitrage, de cheminées d'époque. Les dépendances sont composées d'un garage de 65m2 avec entrée par la place et de 5 caves.
45 mn de la gare d'Agen, 1h20 de l'aéroport de Toulouse-Blagnac, 2h des pistes de ski de La Mongie, Cauterets ou St Lary.
Cette superbe 'chartreuse', exceptionnelle sur le marché lectourois, pourrait devenir votre résidence dans le Sud-Ouest.
Contactez-moi au [Coordonnées masquées], ne laissez pas passer une telle opportunité !

Cette annonce référence 299452 vous est présentée par votre agent commercial BSK Immobilier ODILE SCHAAP (EI) immatriculé au RSAC de AUCH (32000) sous le numéro 47847843100024.

Prix du bien : 1 250 000,00 €
Les honoraires d'agence sont à la charge du vendeur.

A propos des performances énergétiques :
Date de réalisation du diagnostic énergétique : 05/12/2024
Score DPE : 209 kWhEP/m²/an
Score GES : 65 kgepCO2/m²/an
Montant estimé des dépenses annuelles d'énergie pour un usage standard : entre 9650.00 € et 13110.00 € par an. Prix moyens des énergies indexés sur l'année 2023 (abonnements compris).

Les informations sur les risques auxquels ce bien est exposé sont disponibles sur le site Géorisques : www.georisques.gouv.fr
Voir plus

Référence: 299452
Honoraires à la charge du vendeur.
DPE
A
B
C
D
E
F
G
GES
A
B
C
D
E
F
G

Prêt immobilier

Vous souhaitez connaître votre capacité d’emprunt et trouver le meilleur crédit immobilier ?
Réaliser une simulation gratuite

Maison à LECTOURE
Maison à LECTOURE
Maison à LECTOURE
Maison à LECTOURE
Maison à LECTOURE
Maison à LECTOURE
Maison à LECTOURE
Maison à LECTOURE
Maison à LECTOURE
Maison à LECTOURE
Maison à LECTOURE
Maison à LECTOURE
Maison à LECTOURE
Maison à LECTOURE
Maison à LECTOURE
Maison à LECTOURE
Maison à LECTOURE
Maison à LECTOURE
Maison à LECTOURE
Maison à LECTOURE
Ce site est protégé par reCAPTCHA la Politique de confidentialité et les Conditions d’utilisation de Google s’appliquent.
Obtenir un prêt immobilier au meilleur taux ?

En poursuivant votre navigation sans modifier vos paramètres, vous acceptez l'utilisation de cookies susceptibles de réaliser des statistiques de visite. Cliquez ici pour plus d'informations