Bénéficiez des services de nos partenaires locaux soigneusement sélectionnés
pour vous accompagner dans votre parcours d'achat immobilier

Cannes villa vue mer avec permis depose

— Cannes 06400 —
2 900 000 €
370 m² / 2 500 m²
jardinpiscine

Nos partenaires locaux
Exclusivité
Vente d'une villa existante avec permis demandé pour un agrandissement et un changement d'architecture d'une villa plus contemporaine en gardant le coté provençale Dans un emplacement exceptionnel à Cannes a seulement 1.9 km du centre vile (marché Forville, du vieux Port de la rue piétonne Felix Faure)
au cœur d'un secteur verdoyant et résidentiel très calme, et pour qu'il ne manque rien bénéficiant d'une belle vue mer
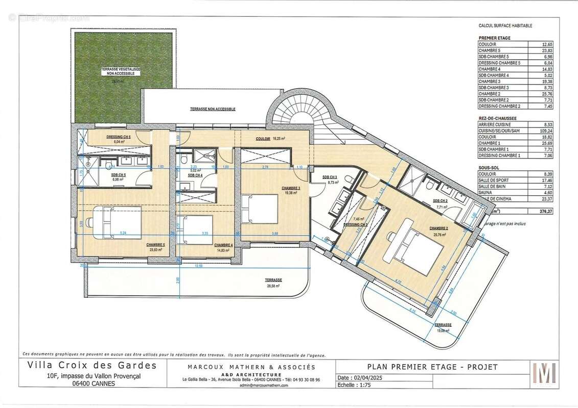
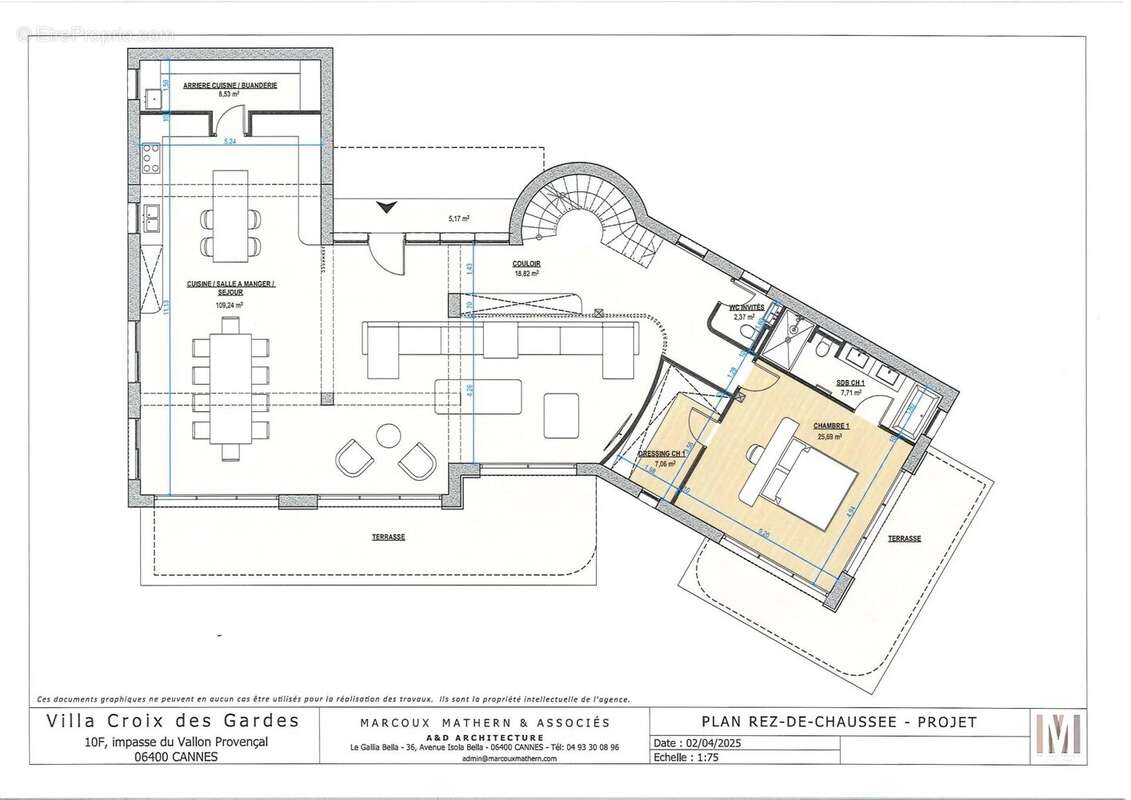
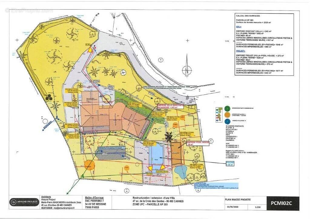
Un permis demandé sur la base de cette villa permettra d'obtenir une surface habitable de 370 m² sur un terrain de 2500 m²très joliment arboré avec piscine et Pool house au permis, elle sera constituée au rez de d'un beau salon salle a manger cuisine ouverte pour bénéficier de la vue ,une confortable master avec salle de bain et douche toilette ,un grand dressing ,et un toilette invité .
A l'étage une deuxième Master avec terrasse donnant toujours sur cette belle vue avec salle de bain et douche plus dressing ,et 3 autres chambres avec leurs salles de douches et toilettes ,elles donnent toutes sur terrasse vue mer ,et il est prévu dans le permis un Pool House avec cuisine d'été salon douche et toilette
,et pour parfaire ce bien un grand parking en sous sol pour 4 véhicules plus locaux technique et un espace salle de cinéma salle de fitness et sauna salle de douche toilette .
Voir plus

Référence: 82915735

Prêt immobilier

Vous souhaitez connaître votre capacité d’emprunt et trouver le meilleur crédit immobilier ?
Réaliser une simulation gratuite

Maison à CANNES
Maison à CANNES
Maison à CANNES
Maison à CANNES
Maison à CANNES
Maison à CANNES
Maison à CANNES
Maison à CANNES
Maison à CANNES
Maison à CANNES
Maison à CANNES
Maison à CANNES
Maison à CANNES
Maison à CANNES
Maison à CANNES
Maison à CANNES
Maison à CANNES
Maison à CANNES
Maison à CANNES
Maison à CANNES
Maison à CANNES
Maison à CANNES
Maison à CANNES
Ce site est protégé par reCAPTCHA la Politique de confidentialité et les Conditions d’utilisation de Google s’appliquent.
Obtenir un prêt immobilier au meilleur taux ?

En poursuivant votre navigation sans modifier vos paramètres, vous acceptez l'utilisation de cookies susceptibles de réaliser des statistiques de visite. Cliquez ici pour plus d'informations