Bénéficiez des services de nos partenaires locaux soigneusement sélectionnés
pour vous accompagner dans votre parcours d'achat immobilier

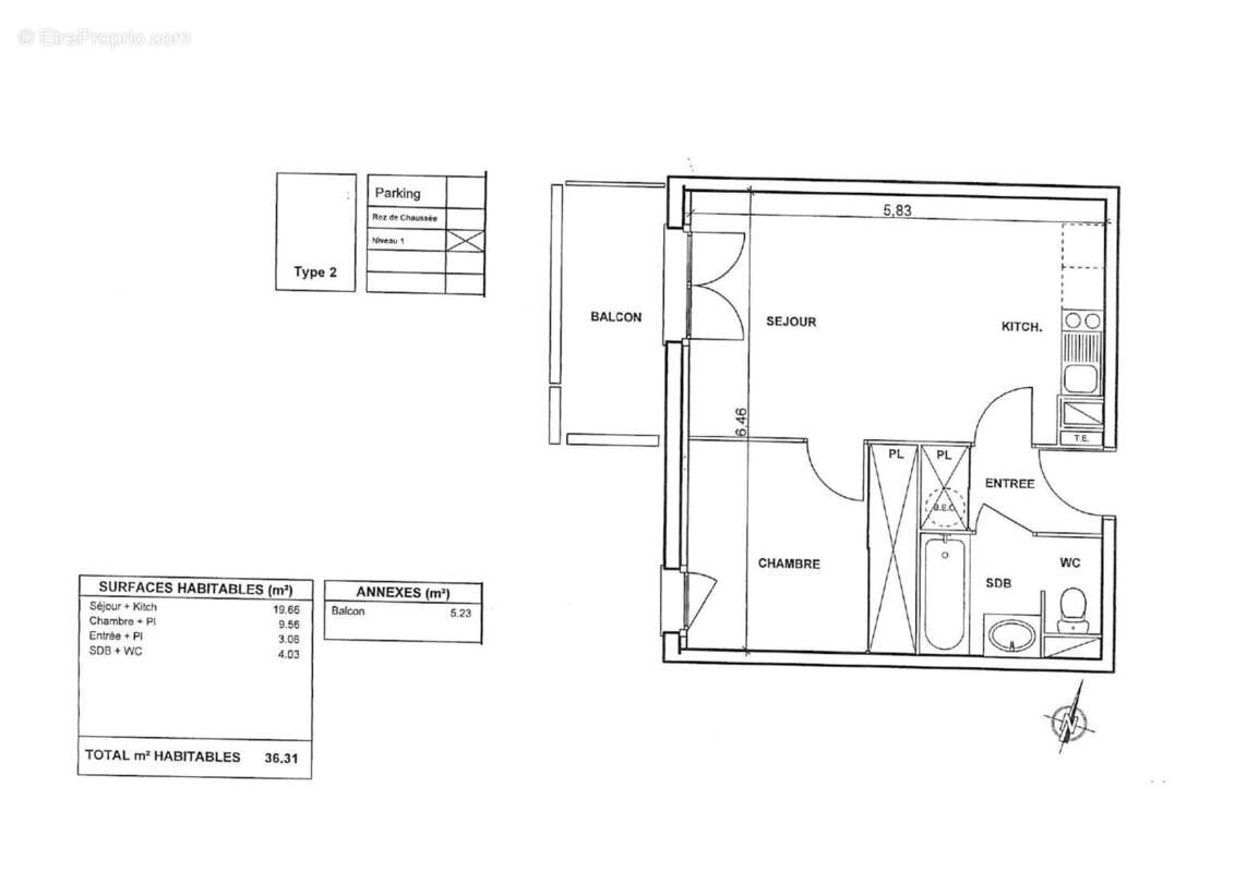
Appartement 36m² à gaillac

— Gaillac 81600 —
74 500 €
36 m²
2 pièces
parkingbalcon/terrasse

Nos partenaires locaux
Idéal investisseur – Forom® Immobilier

Forom Immobilier vous propose cet appartement T2 d'une surface d'environ 36,31 m² au 1er étage situé dans une résidence sécurisée sur la commune de Gaillac.

Le logement dispose d'un séjour, une kitchenette, une chambre, une salle de bains, un WC et une place de parking.

• Loyer mensuel : 443,03€ / mois soit 413,03€ HC + 30€ CL
• Rentabilité : 7,13% brute
• Charges : 52,63€ / mois
• Taxe foncière : 860€ / an
• Date de fin de bail : 29/09/2026
• DPE : C
• Nombre de lots : 55
• Honoraires charge vendeur

La résidence
Cette résidence calme et sécurisée se trouve à seulement quelques minutes de la gare de Gaillac et du centre-ville. Vous bénéficiez d'un cadre paisible, proche des commerces, écoles et services, avec un accès facile aux transports vers Toulouse et Albi.

Honoraires à la charge du vendeur. Dans une copropriété de 55 lots. Aucune procédure n'est en cours. Classe énergie C, Classe climat A Montant estimé des dépenses annuelles d'énergie pour un usage standard : entre 510.00 € et 750.00 € sur les années 2021, 2022 et 2023 (abonnements compris). Les informations sur les risques auxquels ce bien est exposé sont disponibles sur le site Géorisques : georisques.gouv.fr.
Voir plus

Référence: 3730-FOROM
Bien en copropriété. Nombre de lots : 55.
Honoraires à la charge du vendeur.
Barème des honoraires
DPE
A
B
C
D
E
F
G
GES
A
B
C
D
E
F
G

Prêt immobilier

Vous souhaitez connaître votre capacité d’emprunt et trouver le meilleur crédit immobilier ?
Réaliser une simulation gratuite

Appartement à GAILLAC
Appartement à GAILLAC
Appartement à GAILLAC
Appartement à GAILLAC
Appartement à GAILLAC
Appartement à GAILLAC
Appartement à GAILLAC
Appartement à GAILLAC
Appartement à GAILLAC
Ce site est protégé par reCAPTCHA la Politique de confidentialité et les Conditions d’utilisation de Google s’appliquent.
Obtenir un prêt immobilier au meilleur taux ?

En poursuivant votre navigation sans modifier vos paramètres, vous acceptez l'utilisation de cookies susceptibles de réaliser des statistiques de visite. Cliquez ici pour plus d'informations