Maison 180m² à allonnes

— Allonnes 72700 —
346 500 €
180 m² / 2 000 m²
7 pièces
parkingbalcon/terrassejardin

ALLONNES - LONGERE 180M² - 5 CHAMBRES - BUREAU INDEPENDANT - 2 HANGARS

Idéale pour une famille en quête d'espace et de confort, ou pour des artisans à la recherche de volume de travail et de stockage.
Cette belle longère de 180M² habitable séduit par son authenticité et ses nombreuses possibilités. Située au calme de la campagne sans être isolée, elle offre un cadre de vie agréable et fonctionnel.

Le rez-de-chaussée se compose comme suit : une entrée, un wc séparé, une cuisine aménagée et équipée fonctionnelle, une arrière cuisine, un salon, une salle de bains, deux chambres et une pièce de vie de plus de 35M² doté d'une cheminée.
Vous y trouverez également un cellier et une cave enterrée, idéals pour le stockage.

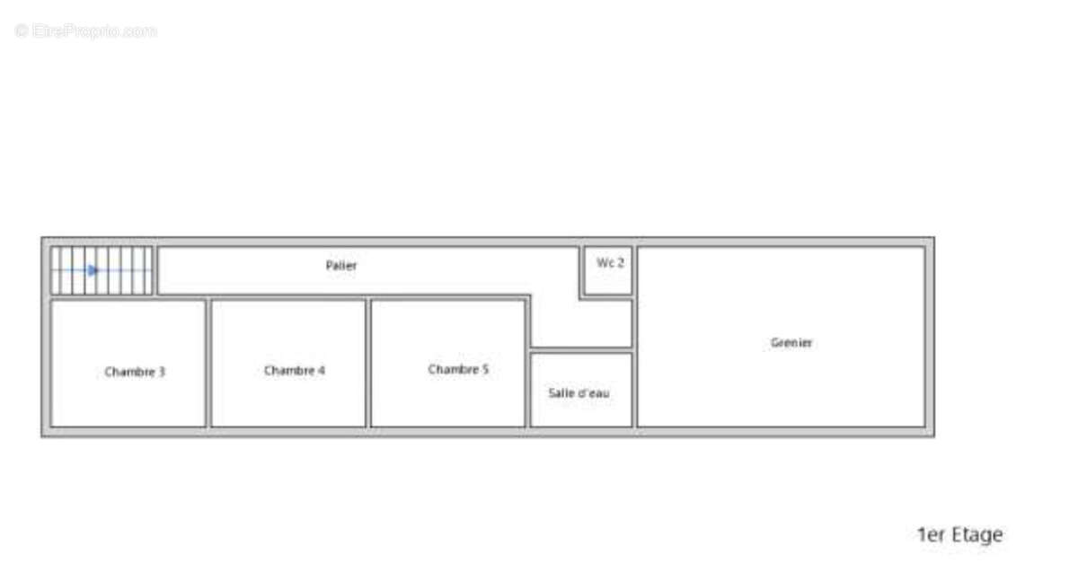
L'étage propose trois chambres supplémentaires, lumineuses et spacieuses, ainsi qu'une salle d'eau.
Un grenier aménageable de 60M² offre de belles possibilités pour créer un espace supplémentaire selon vos envies (salle de jeux, chambres, salle cinéma, ect...).

A l'extérieur, un bureau indépendant permet d'exercer une activité professionnelle ou de profiter d'un espace de travail au calme. Vous bénéficierez également d'une petite dépendance, d'un puit et de deux hangars, dont un de plus de 100M². Le tout est implanté sur un terrain clos de 2000M².

+++ Les plus de la maison : le volume des pièces, le grand terrain, le calme du secteur, le puit, le grenier aménageable, le bureau indépendant et les hangars.

Cette longère, pleine de charme, conjugue authenticité et fonctionnalité, dans un environnement agréable et non isolé.
Un bien rare à visiter sans tarder!

Pour plus d'informations ou pour organiser une visite, contactez moi dès maintenant.
Les informations sur les risques auxquels ce bien est exposé sont disponibles sur le site Georisque : georisques. gouv. fr
Jérémy Rohée - EI - est Agent Commercial mandataire en immobilier, immatriculé au Registre Spécial des Agents Commerciaux du Tribunal de Commerce de Le Mans sous le n°912894821.
Siège social du mandant : effiCity, 48 avenue de Villiers - 75017 PARIS - Société par Actions Simplifiée, société au capital de 132 373,05 euros, immatriculée au RCS Paris 497 617 746 et titulaire de la Carte professionnelle CPI 75[Coordonnées masquées]02 025 - CCI Paris IDF - Caisse de Garantie : GALIAN Assurances 89 rue de la Boétie 75008 Paris
Voir plus

Référence: 191497
Honoraires à la charge du vendeur.
Barème des honoraires
DPE
A
B
C
D
E
F
G
GES
A
B
C
D
E
F
G

Prêt immobilier

Vous souhaitez connaître votre capacité d’emprunt et trouver le meilleur crédit immobilier ?
Réaliser une simulation gratuite

Maison à ALLONNES
Maison à ALLONNES
Maison à ALLONNES
Maison à ALLONNES
Maison à ALLONNES
Maison à ALLONNES
Maison à ALLONNES
Maison à ALLONNES
Maison à ALLONNES
Maison à ALLONNES
Maison à ALLONNES
Maison à ALLONNES
Maison à ALLONNES
Maison à ALLONNES
Maison à ALLONNES
Ce site est protégé par reCAPTCHA la Politique de confidentialité et les Conditions d’utilisation de Google s’appliquent.
Obtenir un prêt immobilier au meilleur taux ?

En poursuivant votre navigation sans modifier vos paramètres, vous acceptez l'utilisation de cookies susceptibles de réaliser des statistiques de visite. Cliquez ici pour plus d'informations