Bénéficiez des services de nos partenaires locaux soigneusement sélectionnés
pour vous accompagner dans votre parcours d'achat immobilier

Voir tous les partenaires locaux

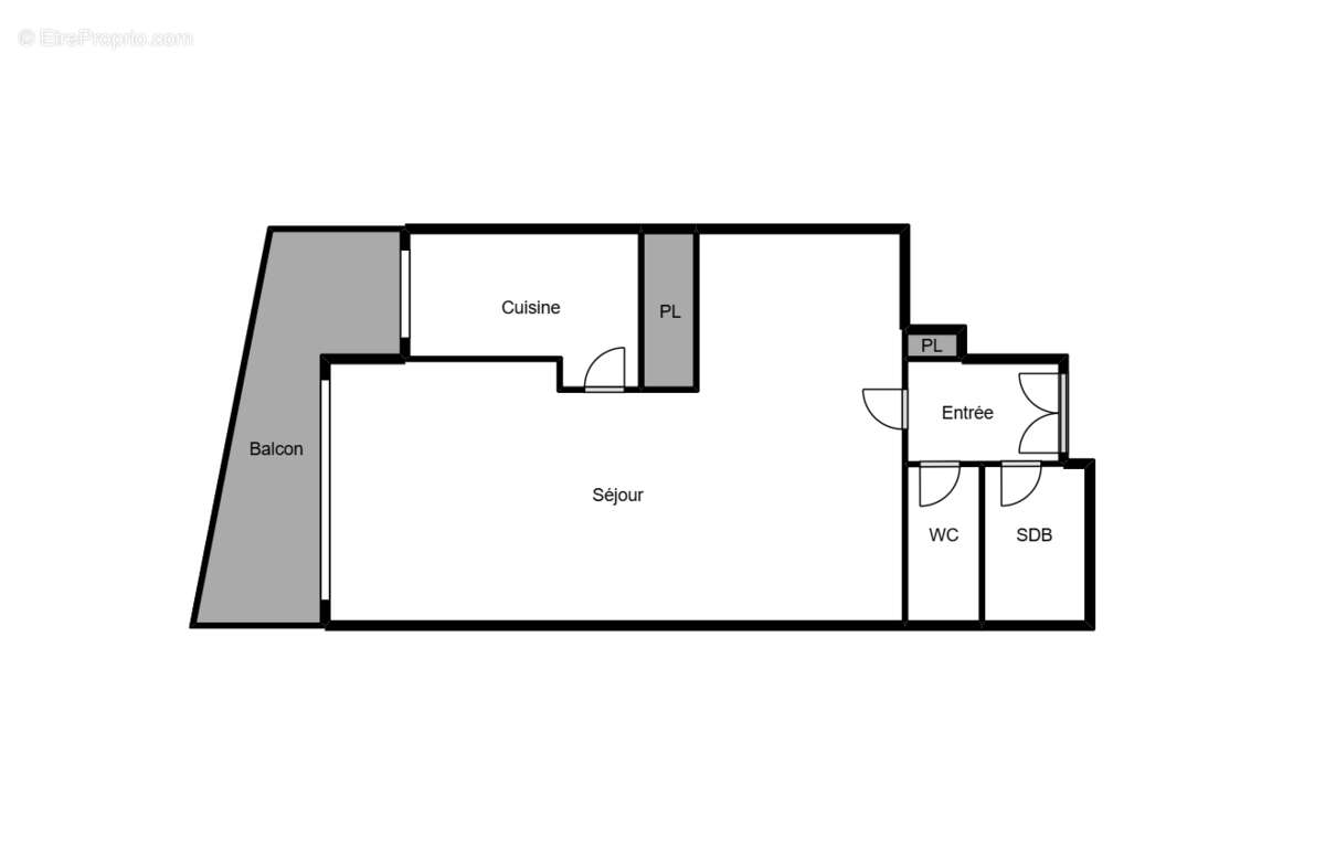
A vendre - paris 16e place léon deubel - studio 41 m² avec balcon de 7 m² au 4e étage avec ascenseur

— Paris-16e 75016 —
395 000 €
41 m² / 7 m²
1 pièce
balcon/terrassejardinascenseur

Nos partenaires locaux
Situé au 4e étage avec ascenseur d'un immeuble de standing, BUILDING PARTNERS vous propose à la vente un spacieux studio de 41 m² avec un balcon de 7 m². Ce bien se compose d'une entrée, d'une pièce de vie lumineuse avec balcon, d'une cuisine aménagée, d'une alcôve, d'une salle de bains et d'un WC indépendant. Une cave et un emplacement de parking complètent ce bien. Ce studio séduira un investisseur ou un particulier à la recherche d'un pied-à-terre fonctionnel et confortable dans le 16e arrondissement. N'hésitez pas à nous contacter pour plus d'informations ou organiser une visite. Depuis 1993, BUILDING PARTNERS accompagne les propriétaires dans la vente de biens immobiliers de standing sur l'ouest parisien. Notre force ? Une organisation unique avec deux rôles experts : >Les Brokers, spécialisés dans la prospection et la valorisation de votre bien. >Les Sellers, experts en négociation et en mise en relation avec notre portefeuille d'acheteurs qualifiés. Avec 5 agences implantées au coeur des quartiers les plus recherchés (Paris 16e, Paris 17e, Neuilly, Levallois, Courbevoie), nous vous offrons une visibilité maximale, un accompagnement personnalisé et un engagement total jusqu'à la signature. Confiez-nous votre bien pour une vente rapide, au meilleur prix. Estimation offerte, confidentielle et sans engagement. Copropriété de 2 lots - dont 1 lots habitation. (Pas de procédure en cours). Charges annuelles : 1800 euros.
Voir plus

Référence: 10798-2
Bien en copropriété. Nombre de lots : 2. Charges de copropriété : 1800 €.
Honoraires à la charge du vendeur.
Barème des honoraires

Prêt immobilier

Vous souhaitez connaître votre capacité d’emprunt et trouver le meilleur crédit immobilier ?
Réaliser une simulation gratuite

Appartement à PARIS-16E
Appartement à PARIS-16E
Appartement à PARIS-16E
Appartement à PARIS-16E
Appartement à PARIS-16E
Appartement à PARIS-16E
Appartement à PARIS-16E
Appartement à PARIS-16E
Appartement à PARIS-16E
Ce site est protégé par reCAPTCHA la Politique de confidentialité et les Conditions d’utilisation de Google s’appliquent.
Obtenir un prêt immobilier au meilleur taux ?

En poursuivant votre navigation sans modifier vos paramètres, vous acceptez l'utilisation de cookies susceptibles de réaliser des statistiques de visite. Cliquez ici pour plus d'informations