A vendre - paris 16e chaillot-trocadero- appartement 5 pièces de 145,30 m² avec balcon de 2 m²

— Paris-16e 75116 —
2 225 000 €
150 m²
5 pièces
balcon/terrasseascenseur

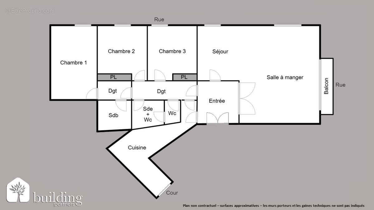
Idéalement situé à deux pas du Trocadéro, au coeur du 16e arrondissement de Paris, BUILDING PARTNERS vous propose ce superbe appartement familial de 145,30 m² avec balcon dans un immeuble de bon standing avec ascenseur. Cet appartement situé au 3e étage, bénéficie d'un exposition sud-est, lui conférant une belle luminosité tout au long de la journée. Ce bien de caractère, doté de beaucoup de cachet, offre un fort potentiel après rénovation. Il se compose d'une vaste pièce de vie avec espace salon et salle à manger, d'une cuisine indépendante aménagée et équipée, de trois chambres, ainsi que d'une salle de bains , une salle d'eau et deux WC. Une cave complète ce bien rare dans le secteur. Travaux à prévoir. Idéal pour une résidence principale familiale ou un pied-à-terre de standing dans un quartier recherché du 16e arrondissement. Localisation privilégiée, au pied des commerces, des transports et à proximité immédiate des établissements scolaires. N'hésitez pas à nous contacter pour plus d'informations ou organiser une visite privée. Depuis 1993, BUILDING PARTNERS accompagne les propriétaires dans la vente de biens immobiliers de standing sur l'Ouest Parisien. Notre force ? Une organisation unique avec deux rôles experts : >Les Brokers, spécialisés dans la prospection et la valorisation de votre bien, >Les Sellers, experts en négociation et en mise en relation avec notre portefeuille d'acheteurs qualifiés. Avec 5 agences implantées au coeur des quartiers les plus recherchés (Paris 16e, Paris 17e, Neuilly, Levallois, Courbevoie), nous vous offrons une visibilité maximale, un accompagnement personnalisé et un engagement total jusqu'à la signature. Confiez nous votre bien pour une vente rapide, au meilleur prix. Estimation offerte, confidentielle et sans engagement. Copropriété de 61 lots - dont 58 lots habitation. (Pas de procédure en cours). Charges annuelles : 7596 euros.
Voir plus

Référence: 12038
Bien en copropriété. Nombre de lots : 61. Charges de copropriété : 7596 €.
Honoraires à la charge du vendeur.
Barème des honoraires

Prêt immobilier

Vous souhaitez connaître votre capacité d’emprunt et trouver le meilleur crédit immobilier ?
Réaliser une simulation gratuite

Appartement à PARIS-16E
Appartement à PARIS-16E
Appartement à PARIS-16E
Appartement à PARIS-16E
Appartement à PARIS-16E
Appartement à PARIS-16E
Appartement à PARIS-16E
Appartement à PARIS-16E
Appartement à PARIS-16E
Appartement à PARIS-16E
Appartement à PARIS-16E
Ce site est protégé par reCAPTCHA la Politique de confidentialité et les Conditions d’utilisation de Google s’appliquent.
Obtenir un prêt immobilier au meilleur taux ?

En poursuivant votre navigation sans modifier vos paramètres, vous acceptez l'utilisation de cookies susceptibles de réaliser des statistiques de visite. Cliquez ici pour plus d'informations