Bénéficiez des services de nos partenaires locaux soigneusement sélectionnés
pour vous accompagner dans votre parcours d'achat immobilier

Nice – carré d’or – 3 pièces avec terrasse, vue latérale mer

— Nice 06000 —
990 000 €
87 m²
3 pièces
balcon/terrasseascenseur

Nos partenaires locaux
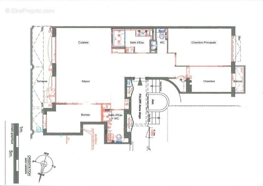
Situé au cœur du prestigieux Carré d'Or, dans une rue très calme à deux pas de la Promenade des Anglais et des plages, cet élégant appartement de 87 m² Carrez se trouve au 4ᵉ étage d'une résidence de standing, sécurisée avec gardienne et ascenseur.

Traversant et baigné de lumière, il a fait l'objet en 2021 d'une rénovation complète et hautement qualitative.
Sa configuration en « étoile », avec un hall d'entrée central distribuant toutes les pièces, offre une circulation fluide et agréable, ainsi qu'une belle luminosité grâce à la double exposition Est/Ouest.

L'appartement se compose d'un vaste séjour avec cuisine américaine aménagée et entièrement équipée, donnant sur une terrasse de 13 m² avec vue latérale sur la mer, d'une grande chambre, d'une chambre plus intime ouvrant sur un balcon côté cour à l'Ouest, d'un petit bureau, de deux salles d'eau (dont une avec WC) et d'un WC invités.

L'accès à l'immeuble est aisé pour les personnes à mobilité réduite, et l'appartement lui-même bénéficie d'un aménagement intérieur adapté.

Une grande cave, parfaitement saine, complète ce bien.

Toutes les commodités sont accessibles à pied : commerces, transports, restaurants, plages…
Un cadre de vie idéal, mêlant calme, élégance et proximité immédiate de la mer.
Référence agence : 242
Voir plus

Référence: H4MI-WVC-5N8
Bien en copropriété. Nombre de lots : 140. Charges de copropriété : 214 €.
Honoraires d'agence de 5% à la charge de l'acquéreur
DPE
A
B
C
D
E
F
G
GES
A
B
C
D
E
F
G

Prêt immobilier

Vous souhaitez connaître votre capacité d’emprunt et trouver le meilleur crédit immobilier ?
Réaliser une simulation gratuite

Appartement à NICE
Appartement à NICE
Appartement à NICE
Appartement à NICE
Appartement à NICE
Appartement à NICE
Appartement à NICE
Appartement à NICE
Appartement à NICE
Appartement à NICE
Ce site est protégé par reCAPTCHA la Politique de confidentialité et les Conditions d’utilisation de Google s’appliquent.
Obtenir un prêt immobilier au meilleur taux ?

En poursuivant votre navigation sans modifier vos paramètres, vous acceptez l'utilisation de cookies susceptibles de réaliser des statistiques de visite. Cliquez ici pour plus d'informations