Terrain 1194m² à reignac-sur-indre

— Reignac-Sur-Indre 37310 —
65 500 €
1 194 m²

Iad France - Carole Renaudin vous propose : À la recherche d'un lieu pour construire votre nouveau projet de vie !

Belle Opportunité en centre bourg de Reignac sur Indre pour un projet immobilier sur mesure.
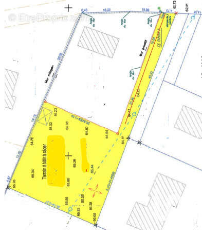
D'une superficie de 1194 m² (dont 200 m² env. de chemin d'accès), ce terrain à bâtir se situe en deuxième ligne, dans un environnement calme, et offre un beau potentiel pour la construction de votre future résidence principale ou secondaire, au coeur d'un jardin spacieux avec arbres fruitiers et aménageable selon vos envies.
Plans d'implantation, options d'aménagement et budgets réalisés par un constructeur, disponibles sur simple demande

Les réseaux d'électricité, d'eau potable et d'assainissement en bordure de voirie faciliteront le futur raccordement à votre projet de construction. La première étude de sol a été réalisée et est disponible.

Son emplacement stratégique vous permettra de bénéficier également d'un accès rapide aux axes routiers principaux, aux écoles, aux commerces et aux services locaux.

Ne manquez donc pas cette occasion exceptionnelle de donner vie à votre projet de construction sur ce terrain à bâtir et contactez-moi dès maintenant pour plus d'informations et pour organiser une visite sur place.

Honoraires d'agence à la charge du vendeur.
Bien non soumis au DPE. Les informations sur les risques auxquels ce bien est exposé, y compris l'obligation légale de débroussaillement, sont disponibles sur le site Géorisques : http://www.georisques.gouv.fr.
La présente annonce immobilière a été rédigée sous la responsabilité éditoriale de Mme Carole Renaudin mandataire indépendant en immobilier (sans détention de fonds), agent commercial de la SAS I@D France immatriculé au RSAC de TOURS sous le numéro 793676123, titulaire de la carte de démarchage immobilier pour le compte de la société I@D France SAS.
Informations LOI ALUR :
Honoraires charge vendeur. (gedeon_6727_31737385)
Voir plus

Référence: 1736236
Honoraires à la charge du vendeur.

Prêt immobilier

Vous souhaitez connaître votre capacité d’emprunt et trouver le meilleur crédit immobilier ?
Réaliser une simulation gratuite

Photo 1 - Terrain à REIGNAC-SUR-INDRE
Photo 1
Photo 2 - Terrain à REIGNAC-SUR-INDRE
Photo 2
Photo 3 - Terrain à REIGNAC-SUR-INDRE
Photo 3
Photo 4 - Terrain à REIGNAC-SUR-INDRE
Photo 4
Ce site est protégé par reCAPTCHA la Politique de confidentialité et les Conditions d’utilisation de Google s’appliquent.
Obtenir un prêt immobilier au meilleur taux ?

En poursuivant votre navigation sans modifier vos paramètres, vous acceptez l'utilisation de cookies susceptibles de réaliser des statistiques de visite. Cliquez ici pour plus d'informations