Bénéficiez des services de nos partenaires locaux soigneusement sélectionnés
pour vous accompagner dans votre parcours d'achat immobilier

Cadre idéal

— Montbeliard 25200 —
399 500 €
165 m² / 3 320 m²
7 pièces
parkingbalcon/terrassepiscine

Nos partenaires locaux
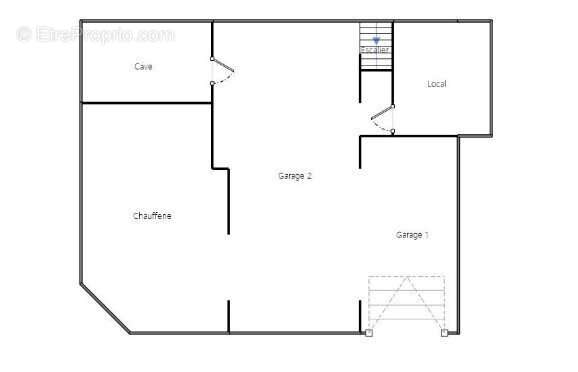
A 10 mins de Montbeliard, Secteur privilégié et dominant, vue imprenable, sur 33 ares de terrain, Belle Maison Contemporaine F7 de 165m² sur sous sol complet. - Salon-séjour avec cheminée sur terrasse - 3 Chambres, un Bureau et une belle Mezzanine, Nombreux espaces de confort - 2 Salles de Bains - Piscine chauffée - Garage double Beaux volumes, Faibles consommations (Dpe C) , Fort potentiel, Contemporain, Maison Familiale. Plus de renseignements nous contacter. Immobiliere du chateau - Nathalie MARTIN - [Coordonnées masquées] - Plus d'informations sur www.immochateau.fr (réf. 2500720886)
Voir plus

Référence: 5377
Honoraires à la charge du vendeur.
Barème des honoraires
DPE
A
B
C
D
E
F
G
GES
A
B
C
D
E
F
G

Prêt immobilier

Vous souhaitez connaître votre capacité d’emprunt et trouver le meilleur crédit immobilier ?
Réaliser une simulation gratuite

Maison à MONTBELIARD
Maison à MONTBELIARD
Maison à MONTBELIARD
Maison à MONTBELIARD
Maison à MONTBELIARD
Maison à MONTBELIARD
Ce site est protégé par reCAPTCHA la Politique de confidentialité et les Conditions d’utilisation de Google s’appliquent.
Obtenir un prêt immobilier au meilleur taux ?

En poursuivant votre navigation sans modifier vos paramètres, vous acceptez l'utilisation de cookies susceptibles de réaliser des statistiques de visite. Cliquez ici pour plus d'informations