Maison à vendre 5 pièces moules et baucels (34) vue dominante, terrain 2663 m2,+ gite et grand garage

— Moules-Et-Baucels 34190 —
394 000 €
134 m² / 2 627 m²
5 pièces
parkingbalcon/terrassejardin

Sous offre acceptée.

Située a Moulès et Baucels dans un quartier calme proche de Ganges, cette spacieuse maison de 134 m2 en loi Carrez sur un terrain de 2663m2 vous offre un cadre de vie idéal pour toute la famille.

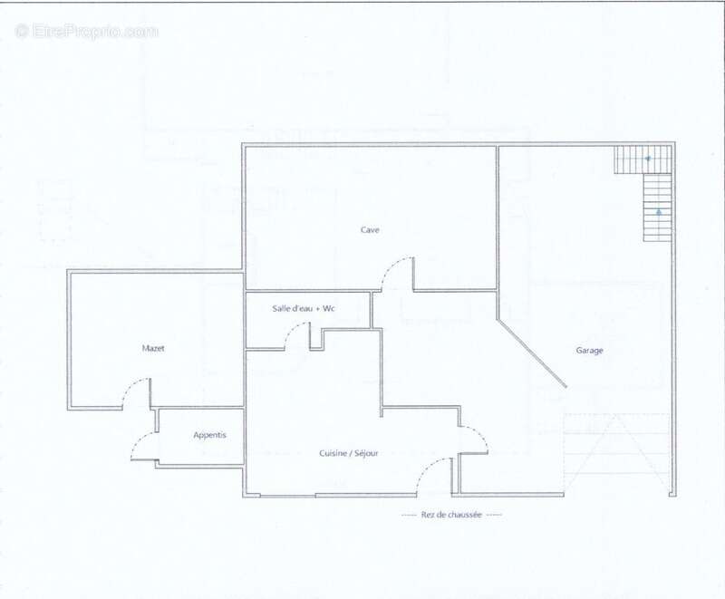
Au rez-de-chaussée, un studio indépendant avec salle d'eau et kitchenette vous offre une multitude de possibilités.
Un grand garage avec une belle hauteur peut accueillir un camping-car + un atelier et un mazet pour le stockage des outils offrant ainsi un espace de rangement pratique.

Au premier étage:

- Un Hall d'entrée ,un wc,un placard.
- Un magnifique séjour de 46 m2 orienté plein sud s'ouvre sur une grande terrasse offrant une superbe vue sur le jardin + une cheminée avec insert pour des soirées chaleureuses en hiver + clin split. + terrasse qui donne acces au coté ouest du jardin au meme niveau .
- Une grande cuisine équipée plan de travail en granit et son exposition sud est + coin petit déjeuner avec vue sur le jardin, le lieu parfait pour préparer de délicieux repas en famille.

Le premier étage offre un accès au jardin ombragé et arboré du terrain, plat , avec au niveau supérieur un espace dédié pour étendre le linge ou pour des jeux .

Au 2' étage , vous trouverez 3 belles chambres lumineuses, une salle de bain moderne avec douche et baignoire, ainsi qu'un WC séparé pour plus de confort.

Ne manquez pas cette occasion unique de vivre dans une maison alliant confort, fonctionnalité et charme.

Je suis joignable 6 jours/7 .

Contactez-moi dès maintenant pour organiser une visite ! Les honoraires sont à la charge du vendeur.
Les informations sur les risques auxquels ce bien est exposé sont disponibles sur le site Géorisques : www. georisques. gouv. fr.

Réseau Immobilier CAPIFRANCE - Votre agent commercial (RSAC N°804 731 677 - Greffe de NIMES) Anita MICHOTTE DE WELLE Entrepreneur Individuel [Coordonnées masquées] - Réf.894848
Voir plus

Référence: 340934488734
Honoraires à la charge du vendeur.
DPE
A
B
C
D
E
F
G
GES
A
B
C
D
E
F
G

Prêt immobilier

Vous souhaitez connaître votre capacité d’emprunt et trouver le meilleur crédit immobilier ?
Réaliser une simulation gratuite

Maison à MOULES-ET-BAUCELS
Maison à MOULES-ET-BAUCELS
Maison à MOULES-ET-BAUCELS
Maison à MOULES-ET-BAUCELS
Maison à MOULES-ET-BAUCELS
Maison à MOULES-ET-BAUCELS
Maison à MOULES-ET-BAUCELS
Maison à MOULES-ET-BAUCELS
Maison à MOULES-ET-BAUCELS
Maison à MOULES-ET-BAUCELS
Maison à MOULES-ET-BAUCELS
Maison à MOULES-ET-BAUCELS
Maison à MOULES-ET-BAUCELS
Maison à MOULES-ET-BAUCELS
Maison à MOULES-ET-BAUCELS
Maison à MOULES-ET-BAUCELS
Maison à MOULES-ET-BAUCELS
Maison à MOULES-ET-BAUCELS
Maison à MOULES-ET-BAUCELS
Maison à MOULES-ET-BAUCELS
Ce site est protégé par reCAPTCHA la Politique de confidentialité et les Conditions d’utilisation de Google s’appliquent.
Obtenir un prêt immobilier au meilleur taux ?

En poursuivant votre navigation sans modifier vos paramètres, vous acceptez l'utilisation de cookies susceptibles de réaliser des statistiques de visite. Cliquez ici pour plus d'informations