Bénéficiez des services de nos partenaires locaux soigneusement sélectionnés
pour vous accompagner dans votre parcours d'achat immobilier

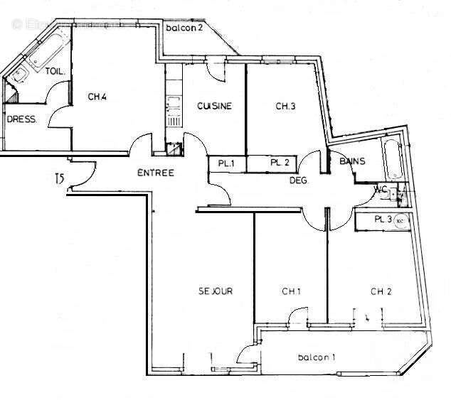
Appartement 115m² à lyon-7e

— Lyon-7e 69007 —
499 000 €
115 m²
5 pièces
ascenseur

Nos partenaires locaux
COMPROMIS DE VENTE EN COURSCentury21 Le 7 de Cœur LYON 7 Quartier St Louis avec son marché 3 fois par semaine et sa vie de quartier, une visite s'impose pour ce T5 familial traversant E/O de 115m2 en étage élevé. Cet appartement dans un immeuble de 1992 est très bien suivi à deux minutes de la place Saint louis. Vous bénéficierez de son séjour exposé ouest donnant prolongé par une terrasse de 9m2, de sa cuisine indépendante avec balcon (3,22m2), de sa suite parentale de 16,35m2 avec un grand dressing de 4,52m2 et sa salle de bains privative. 3 chambres et une autre salle de bains complètent ce bien. Possibilité de transformer très facilement en grand T4 pour un plus grand séjour. Appartement vendu avec une cave. Garage XL (6m50 de long) proposé en sus. Renseignez vous !
Voir plus

Référence: 20675
Honoraires à la charge du vendeur.
Barème des honoraires
DPE
A
B
C
D
E
F
G
GES
A
B
C
D
E
F
G

Prêt immobilier

Vous souhaitez connaître votre capacité d’emprunt et trouver le meilleur crédit immobilier ?
Réaliser une simulation gratuite

Appartement à LYON-7E
Appartement à LYON-7E
Appartement à LYON-7E
Appartement à LYON-7E
Appartement à LYON-7E
Appartement à LYON-7E
Appartement à LYON-7E
Appartement à LYON-7E
Appartement à LYON-7E
Appartement à LYON-7E
Appartement à LYON-7E
Appartement à LYON-7E
Appartement à LYON-7E
Appartement à LYON-7E
Appartement à LYON-7E
Appartement à LYON-7E
Appartement à LYON-7E
Appartement à LYON-7E
Appartement à LYON-7E
Appartement à LYON-7E
Appartement à LYON-7E
Appartement à LYON-7E
Ce site est protégé par reCAPTCHA la Politique de confidentialité et les Conditions d’utilisation de Google s’appliquent.
Obtenir un prêt immobilier au meilleur taux ?

En poursuivant votre navigation sans modifier vos paramètres, vous acceptez l'utilisation de cookies susceptibles de réaliser des statistiques de visite. Cliquez ici pour plus d'informations