Appartement 23m² à saint-gervais-les-bains

— Saint-Gervais-Les-Bains 74170 —
139 000 €
23 m²
1 pièce
balcon/terrasse

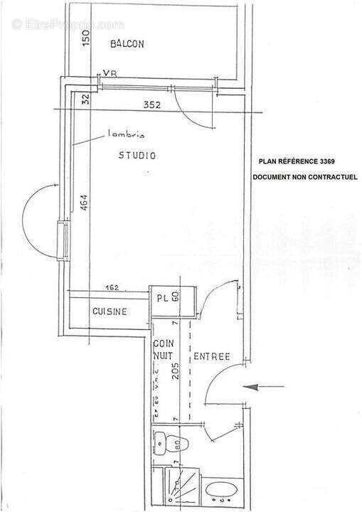
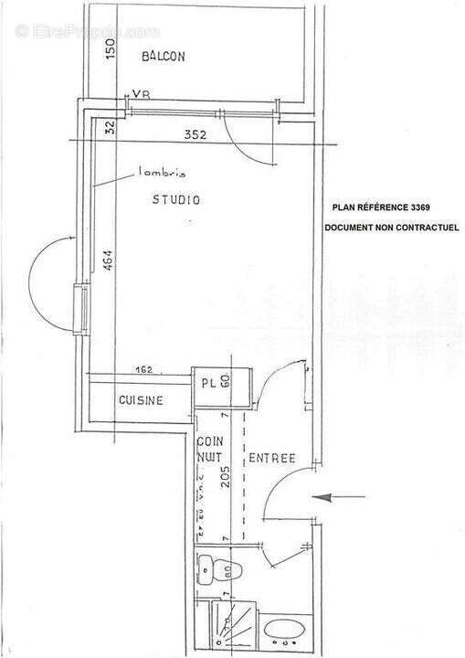
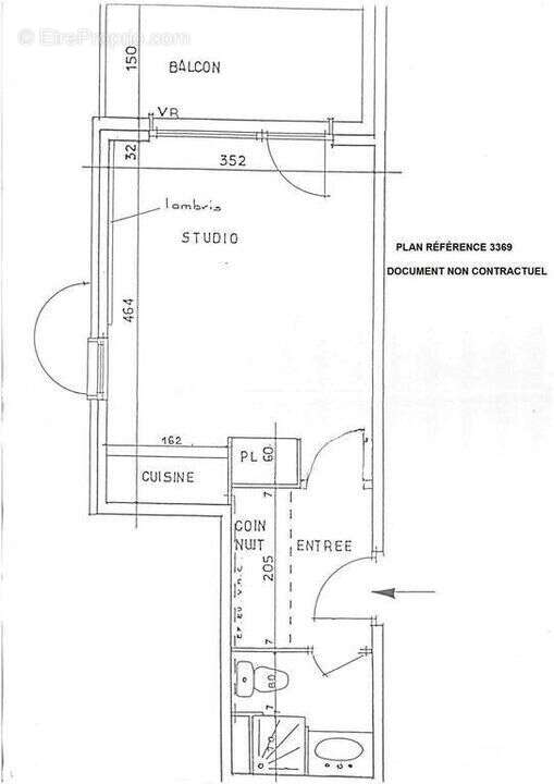
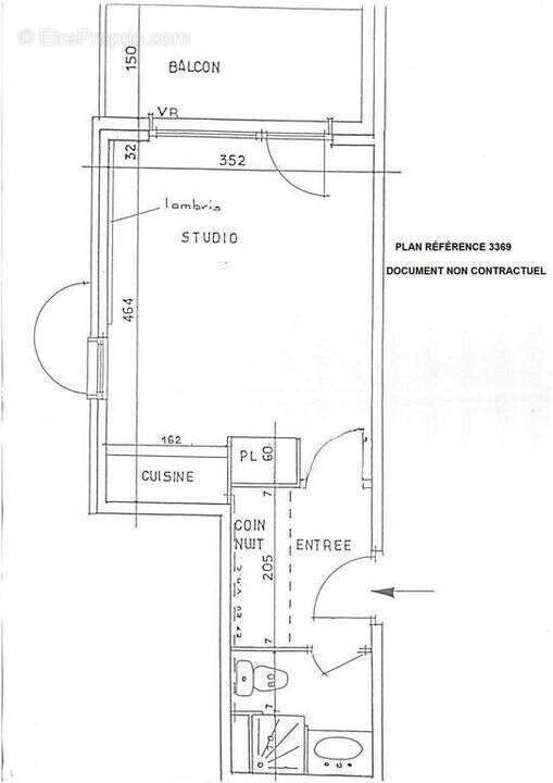
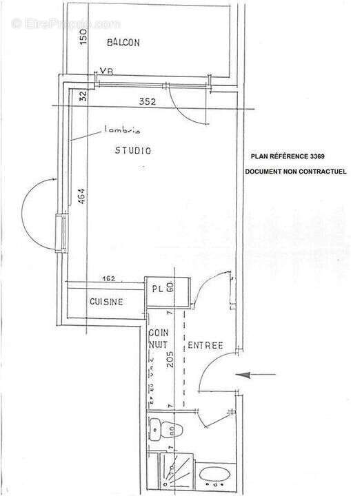
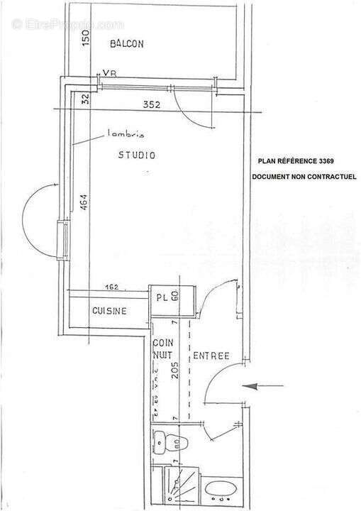
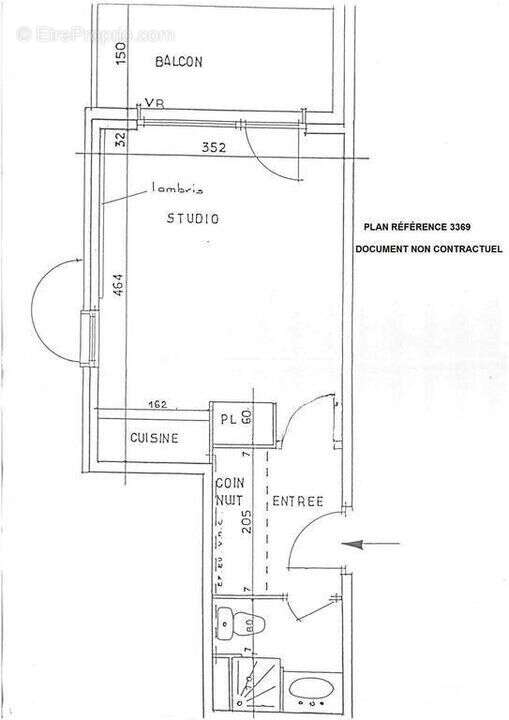
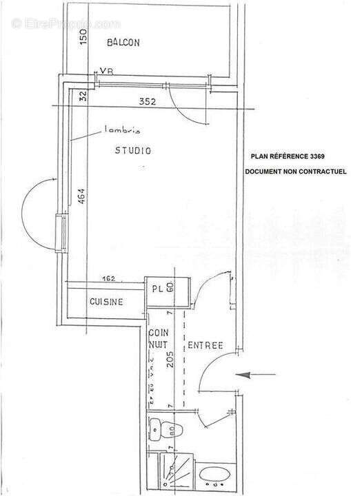
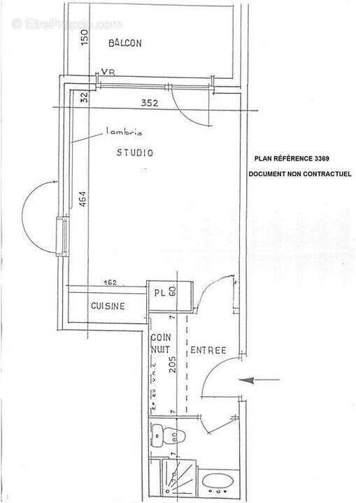
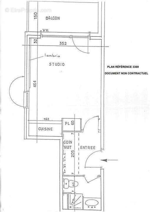
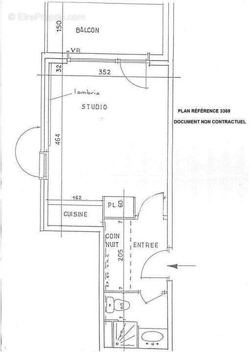
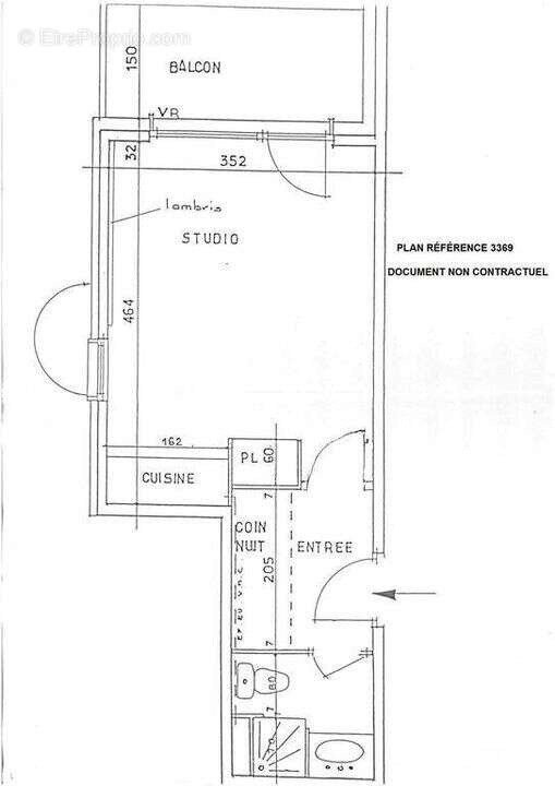
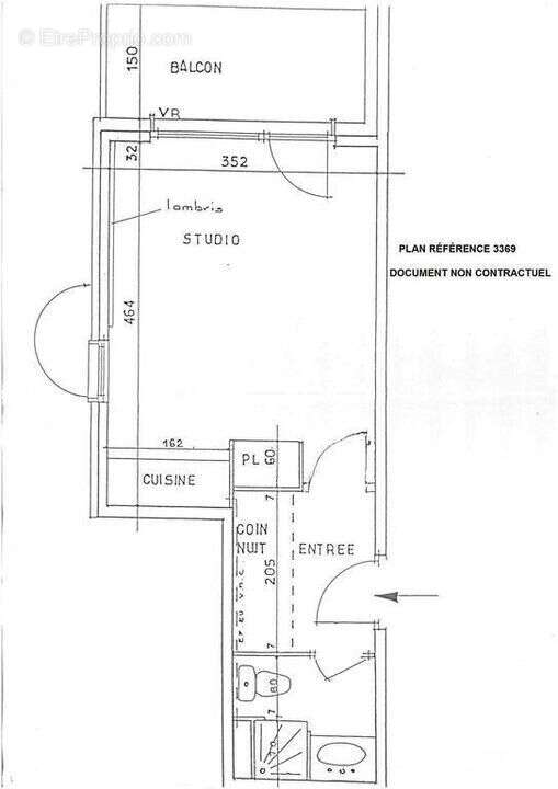
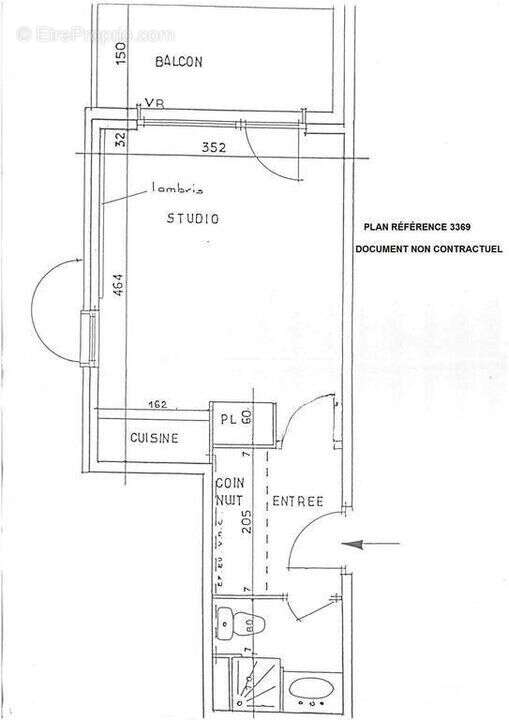
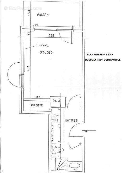
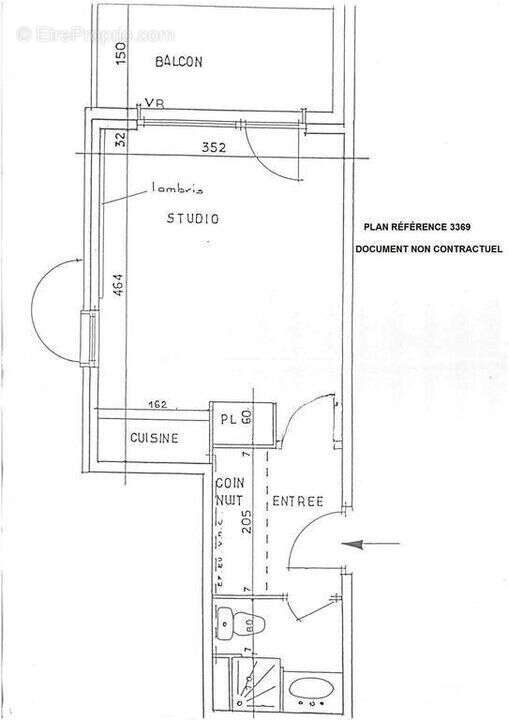
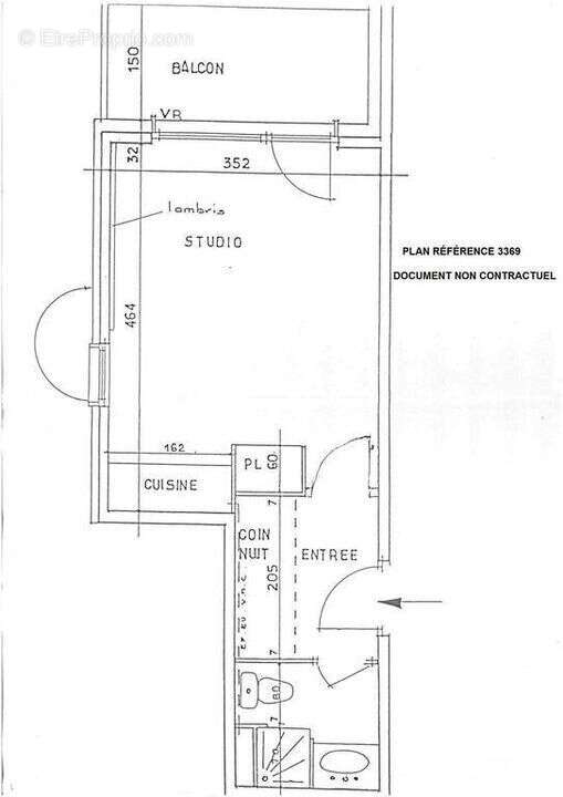
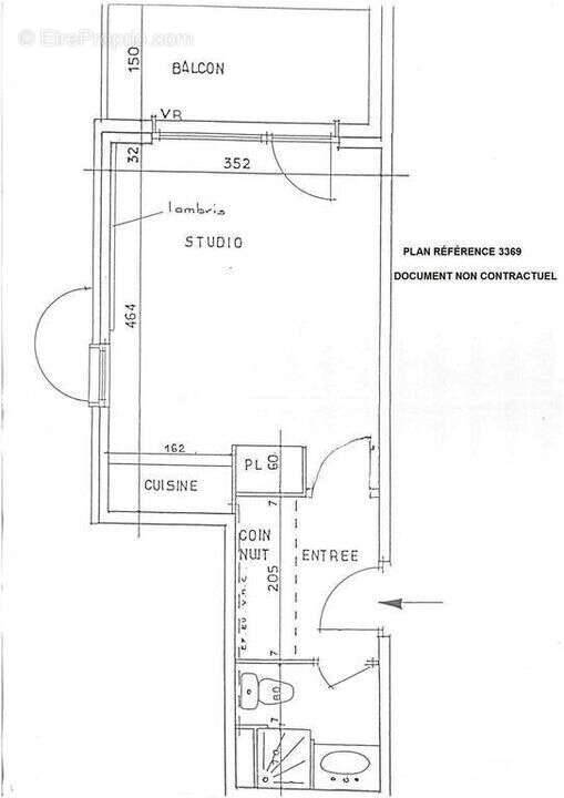
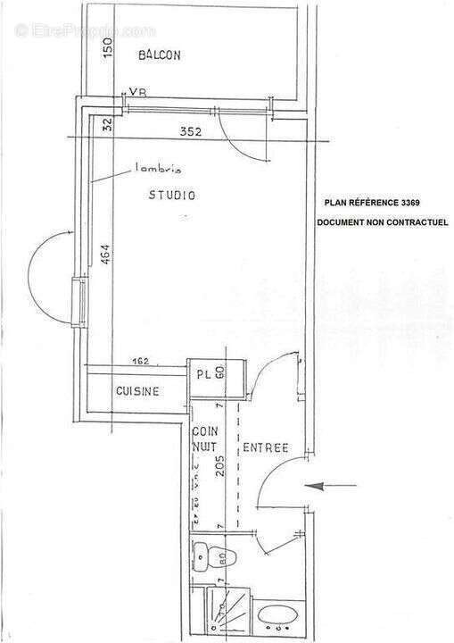
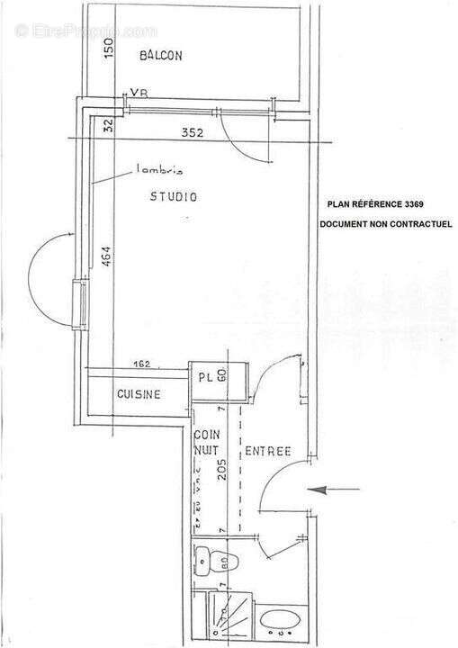
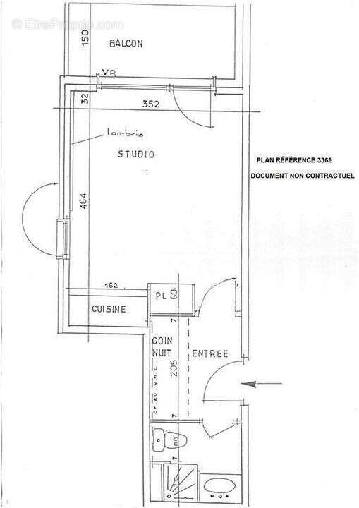
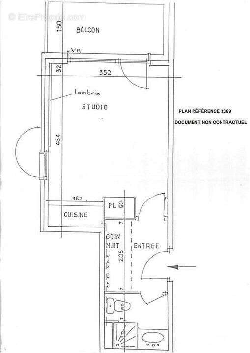
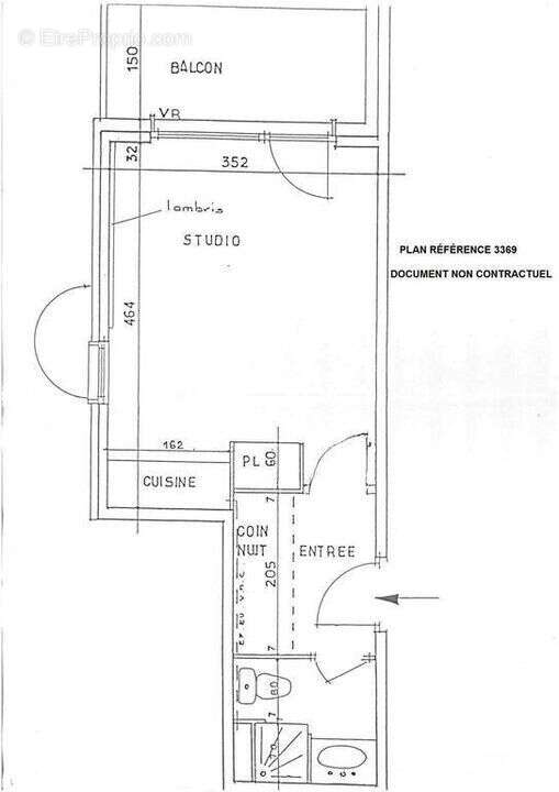
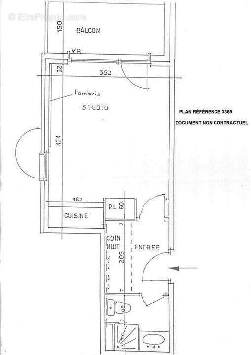
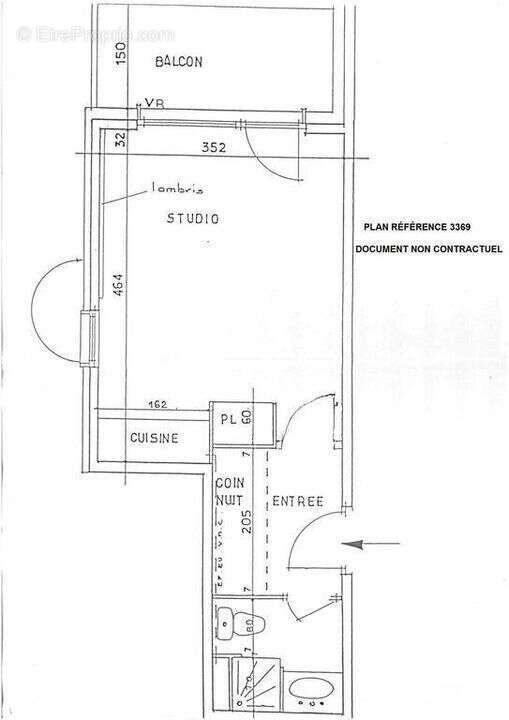
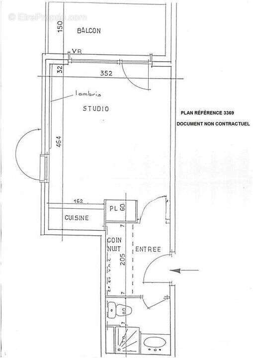
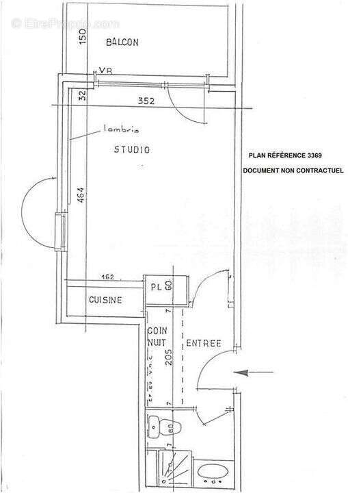
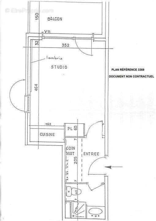
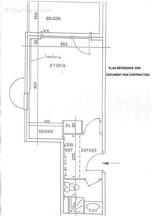
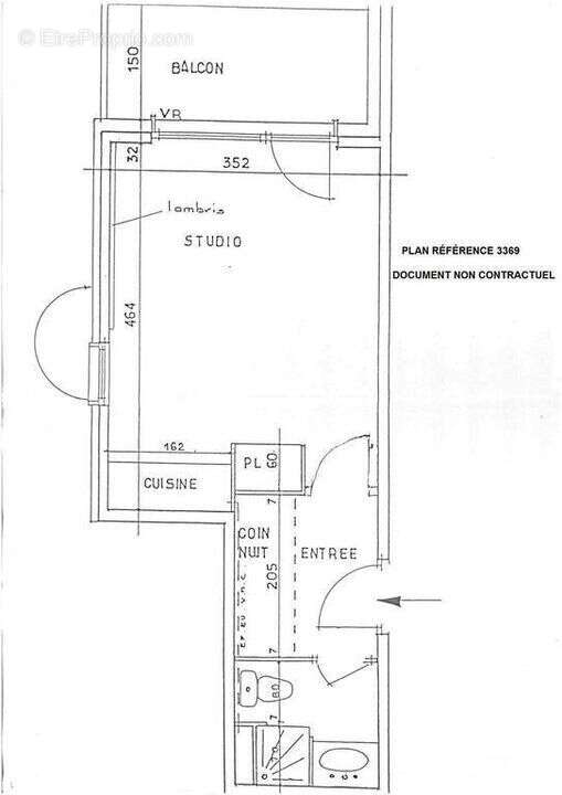
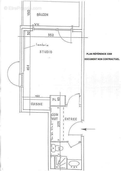
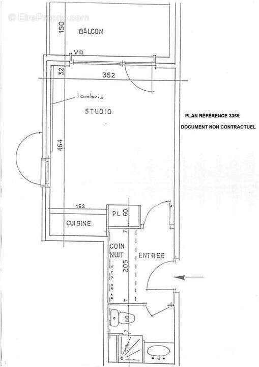
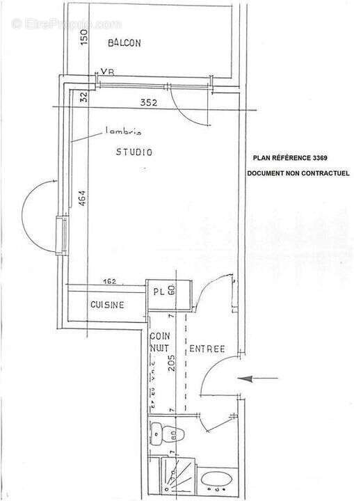
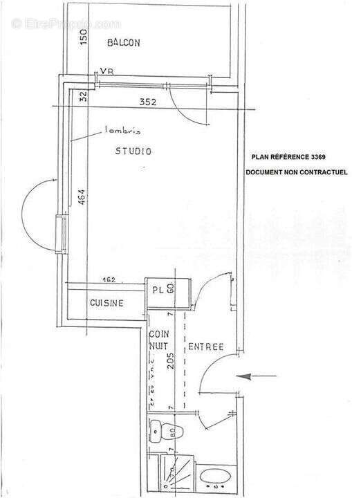
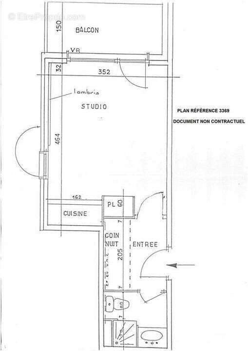
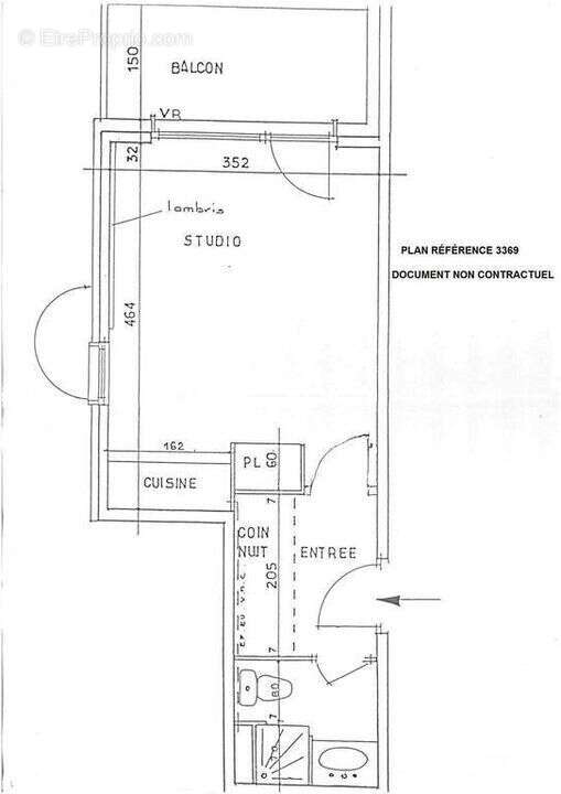
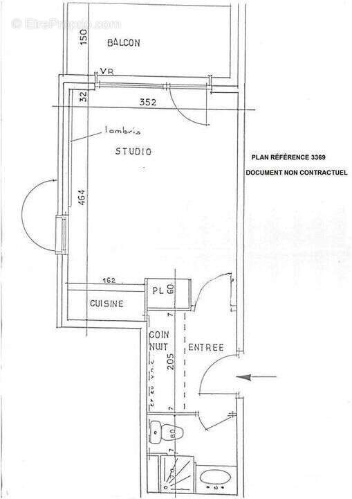
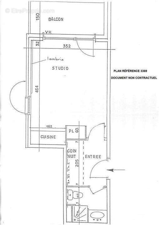
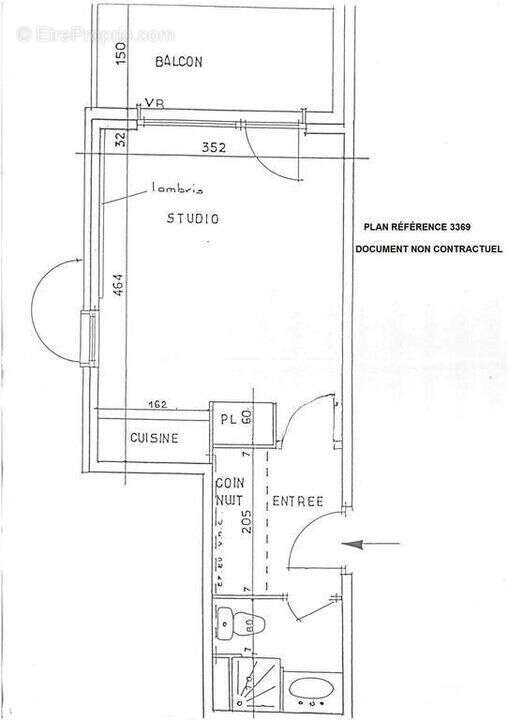
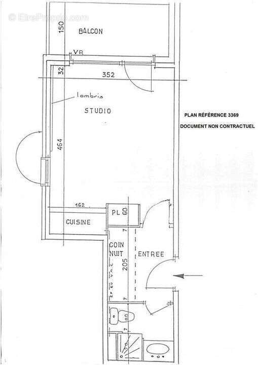
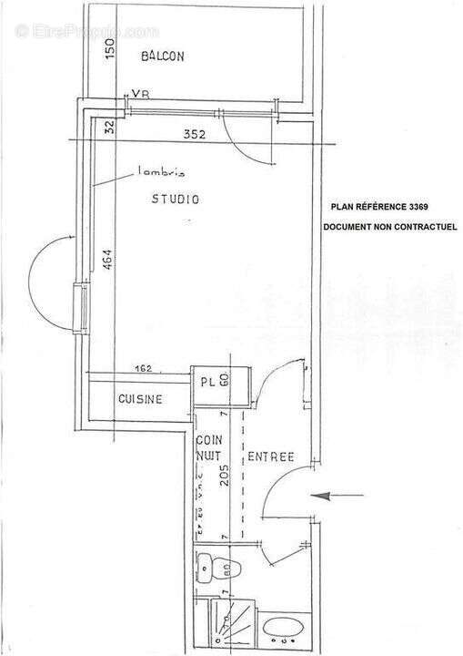
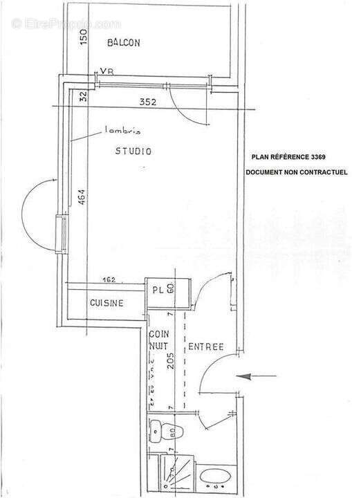
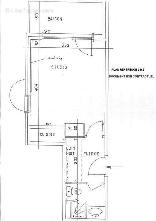
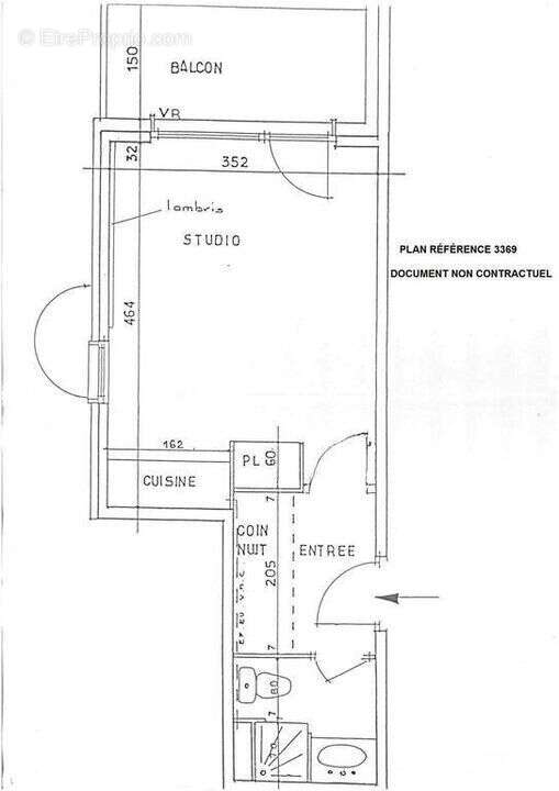
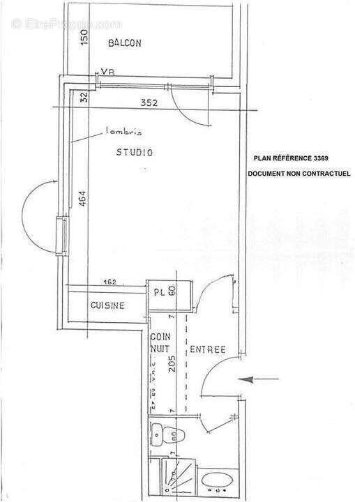
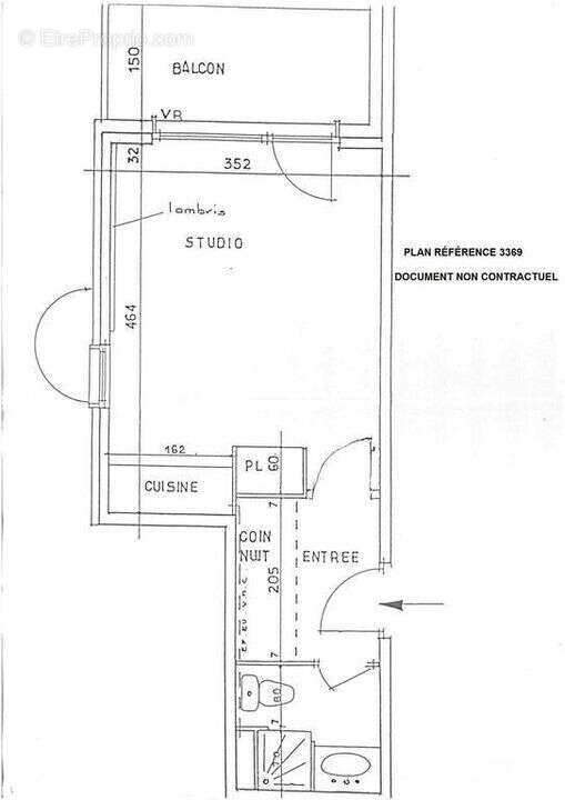
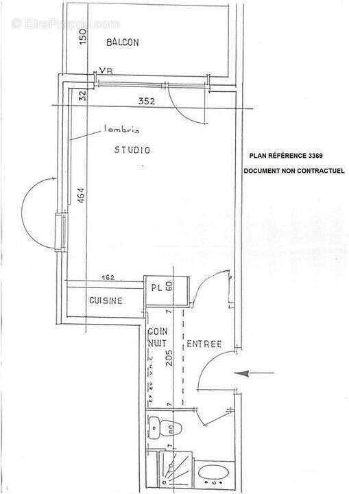
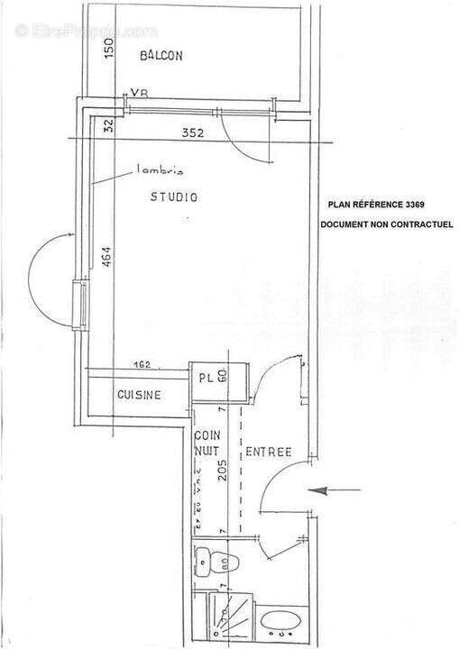
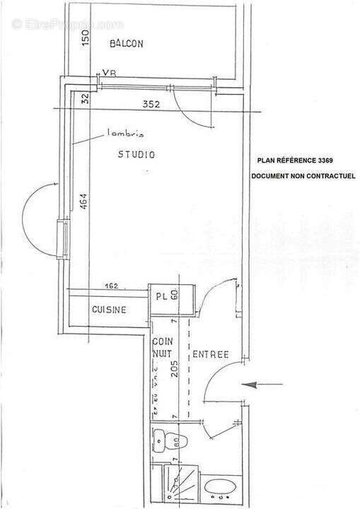
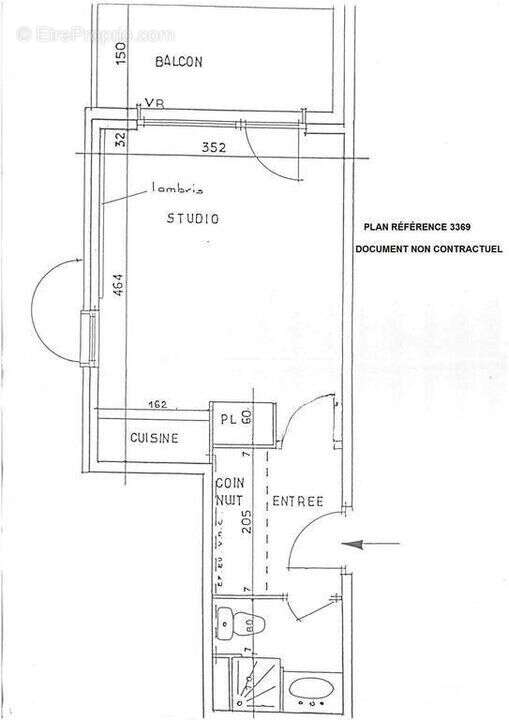
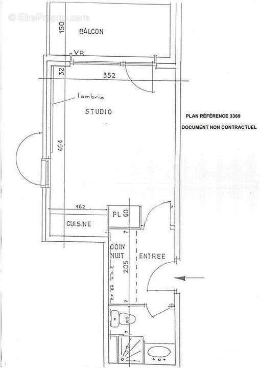
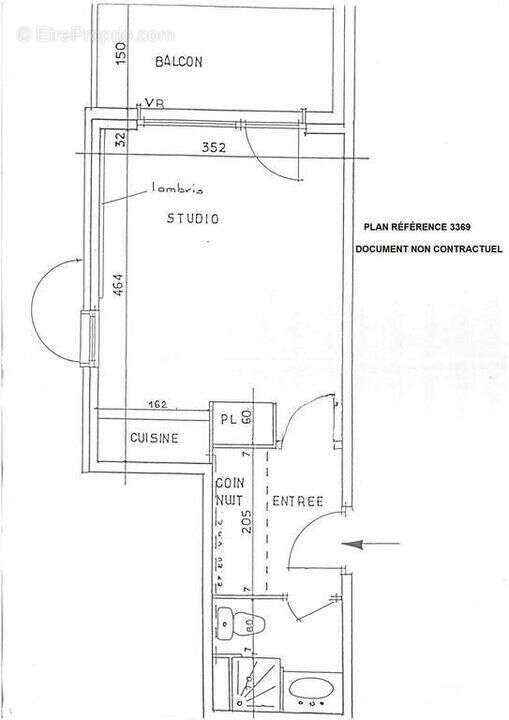
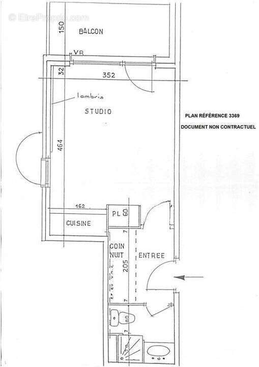
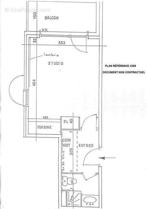
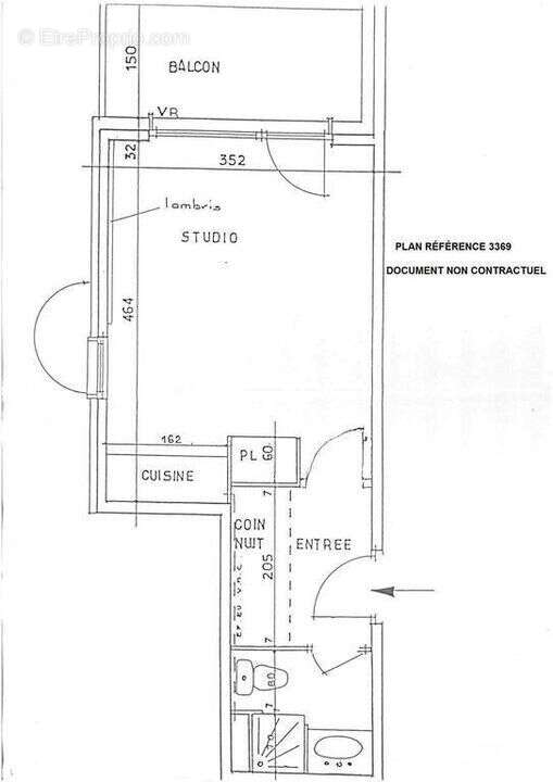
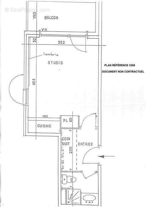
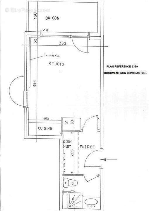
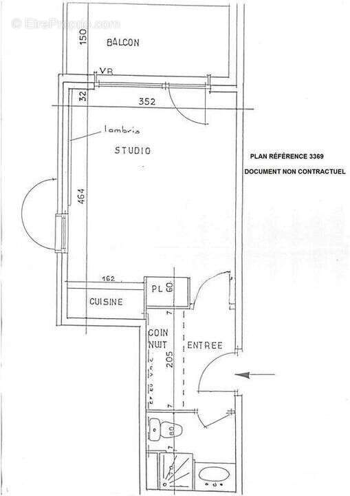
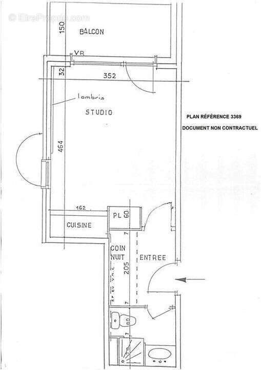
SAINT GERVAIS MONT BLANC - CENTRE VILLE - STUDIO + COIN NUIT



Dans une résidence bien entretenue, au calme, tout en étant à deux pas des commerces, restaurants et navettes vers les domaines skiables, ce studio de 23,45 m² allie confort et fonctionnalité :



- Entrée avec dégagement desservant :



- Coin nuit optimisé (2 lits superposés, idéal enfants)



- Salle de douche contemporaine avec WC, finitions soignées



- Pièce de vie lumineuse :



- Coin cuisine



- Espace dinatoire



- Salon donnant sur un balcon de 6,2 m², vue dégagée sur les bois



- Vendu  meublé 



- Annexes



- Cave



- Casier à skis



- Points forts



- Emplacement central, proximité immédiate des services et transports



- Balcon arboré et calme, cadre apaisant pour vos après-randonnées



- Coin nuit séparé, parfait pour accueillir une famille ou un usage locatif
Les informations sur les risques auxquels ce bien est exposé sont disponibles sur le site Géorisques : www.georisques.gouv.fr
Voir plus

Référence: 3369
Honoraires à la charge du vendeur.
DPE
A
B
C
D
E
F
G
GES
A
B
C
D
E
F
G

Prêt immobilier

Vous souhaitez connaître votre capacité d’emprunt et trouver le meilleur crédit immobilier ?
Réaliser une simulation gratuite

Appartement à SAINT-GERVAIS-LES-BAINS
Appartement à SAINT-GERVAIS-LES-BAINS
Appartement à SAINT-GERVAIS-LES-BAINS
Appartement à SAINT-GERVAIS-LES-BAINS
Appartement à SAINT-GERVAIS-LES-BAINS
Appartement à SAINT-GERVAIS-LES-BAINS
Appartement à SAINT-GERVAIS-LES-BAINS
Appartement à SAINT-GERVAIS-LES-BAINS
Appartement à SAINT-GERVAIS-LES-BAINS
Appartement à SAINT-GERVAIS-LES-BAINS
Appartement à SAINT-GERVAIS-LES-BAINS
Appartement à SAINT-GERVAIS-LES-BAINS
Appartement à SAINT-GERVAIS-LES-BAINS
Appartement à SAINT-GERVAIS-LES-BAINS
Appartement à SAINT-GERVAIS-LES-BAINS
Appartement à SAINT-GERVAIS-LES-BAINS
Appartement à SAINT-GERVAIS-LES-BAINS
Appartement à SAINT-GERVAIS-LES-BAINS
Appartement à SAINT-GERVAIS-LES-BAINS
Appartement à SAINT-GERVAIS-LES-BAINS
Appartement à SAINT-GERVAIS-LES-BAINS
Appartement à SAINT-GERVAIS-LES-BAINS
Appartement à SAINT-GERVAIS-LES-BAINS
Appartement à SAINT-GERVAIS-LES-BAINS
Appartement à SAINT-GERVAIS-LES-BAINS
Appartement à SAINT-GERVAIS-LES-BAINS
Appartement à SAINT-GERVAIS-LES-BAINS
Appartement à SAINT-GERVAIS-LES-BAINS
Appartement à SAINT-GERVAIS-LES-BAINS
Appartement à SAINT-GERVAIS-LES-BAINS
Appartement à SAINT-GERVAIS-LES-BAINS
Appartement à SAINT-GERVAIS-LES-BAINS
Appartement à SAINT-GERVAIS-LES-BAINS
Appartement à SAINT-GERVAIS-LES-BAINS
Appartement à SAINT-GERVAIS-LES-BAINS
Appartement à SAINT-GERVAIS-LES-BAINS
Appartement à SAINT-GERVAIS-LES-BAINS
Appartement à SAINT-GERVAIS-LES-BAINS
Appartement à SAINT-GERVAIS-LES-BAINS
Appartement à SAINT-GERVAIS-LES-BAINS
Appartement à SAINT-GERVAIS-LES-BAINS
Appartement à SAINT-GERVAIS-LES-BAINS
Appartement à SAINT-GERVAIS-LES-BAINS
Appartement à SAINT-GERVAIS-LES-BAINS
Appartement à SAINT-GERVAIS-LES-BAINS
Appartement à SAINT-GERVAIS-LES-BAINS
Appartement à SAINT-GERVAIS-LES-BAINS
Appartement à SAINT-GERVAIS-LES-BAINS
Appartement à SAINT-GERVAIS-LES-BAINS
Appartement à SAINT-GERVAIS-LES-BAINS
Appartement à SAINT-GERVAIS-LES-BAINS
Appartement à SAINT-GERVAIS-LES-BAINS
Appartement à SAINT-GERVAIS-LES-BAINS
Appartement à SAINT-GERVAIS-LES-BAINS
Appartement à SAINT-GERVAIS-LES-BAINS
Appartement à SAINT-GERVAIS-LES-BAINS
Appartement à SAINT-GERVAIS-LES-BAINS
Appartement à SAINT-GERVAIS-LES-BAINS
Appartement à SAINT-GERVAIS-LES-BAINS
Appartement à SAINT-GERVAIS-LES-BAINS
Appartement à SAINT-GERVAIS-LES-BAINS
Appartement à SAINT-GERVAIS-LES-BAINS
Appartement à SAINT-GERVAIS-LES-BAINS
Appartement à SAINT-GERVAIS-LES-BAINS
Appartement à SAINT-GERVAIS-LES-BAINS
Appartement à SAINT-GERVAIS-LES-BAINS
Appartement à SAINT-GERVAIS-LES-BAINS
Appartement à SAINT-GERVAIS-LES-BAINS
Appartement à SAINT-GERVAIS-LES-BAINS
Appartement à SAINT-GERVAIS-LES-BAINS
Appartement à SAINT-GERVAIS-LES-BAINS
Appartement à SAINT-GERVAIS-LES-BAINS
Appartement à SAINT-GERVAIS-LES-BAINS
Appartement à SAINT-GERVAIS-LES-BAINS
Appartement à SAINT-GERVAIS-LES-BAINS
Appartement à SAINT-GERVAIS-LES-BAINS
Appartement à SAINT-GERVAIS-LES-BAINS
Appartement à SAINT-GERVAIS-LES-BAINS
Appartement à SAINT-GERVAIS-LES-BAINS
Appartement à SAINT-GERVAIS-LES-BAINS
Appartement à SAINT-GERVAIS-LES-BAINS
Appartement à SAINT-GERVAIS-LES-BAINS
Appartement à SAINT-GERVAIS-LES-BAINS
Appartement à SAINT-GERVAIS-LES-BAINS
Appartement à SAINT-GERVAIS-LES-BAINS
Appartement à SAINT-GERVAIS-LES-BAINS
Appartement à SAINT-GERVAIS-LES-BAINS
Appartement à SAINT-GERVAIS-LES-BAINS
Appartement à SAINT-GERVAIS-LES-BAINS
Appartement à SAINT-GERVAIS-LES-BAINS
Appartement à SAINT-GERVAIS-LES-BAINS
Appartement à SAINT-GERVAIS-LES-BAINS
Appartement à SAINT-GERVAIS-LES-BAINS
Appartement à SAINT-GERVAIS-LES-BAINS
Appartement à SAINT-GERVAIS-LES-BAINS
Appartement à SAINT-GERVAIS-LES-BAINS
Appartement à SAINT-GERVAIS-LES-BAINS
Appartement à SAINT-GERVAIS-LES-BAINS
Appartement à SAINT-GERVAIS-LES-BAINS
Appartement à SAINT-GERVAIS-LES-BAINS
Appartement à SAINT-GERVAIS-LES-BAINS
Appartement à SAINT-GERVAIS-LES-BAINS
Appartement à SAINT-GERVAIS-LES-BAINS
Appartement à SAINT-GERVAIS-LES-BAINS
Appartement à SAINT-GERVAIS-LES-BAINS
Appartement à SAINT-GERVAIS-LES-BAINS
Appartement à SAINT-GERVAIS-LES-BAINS
Appartement à SAINT-GERVAIS-LES-BAINS
Appartement à SAINT-GERVAIS-LES-BAINS
Appartement à SAINT-GERVAIS-LES-BAINS
Appartement à SAINT-GERVAIS-LES-BAINS
Appartement à SAINT-GERVAIS-LES-BAINS
Appartement à SAINT-GERVAIS-LES-BAINS
Appartement à SAINT-GERVAIS-LES-BAINS
Appartement à SAINT-GERVAIS-LES-BAINS
Appartement à SAINT-GERVAIS-LES-BAINS
Appartement à SAINT-GERVAIS-LES-BAINS
Appartement à SAINT-GERVAIS-LES-BAINS
Appartement à SAINT-GERVAIS-LES-BAINS
Appartement à SAINT-GERVAIS-LES-BAINS
Appartement à SAINT-GERVAIS-LES-BAINS
Appartement à SAINT-GERVAIS-LES-BAINS
Appartement à SAINT-GERVAIS-LES-BAINS
Appartement à SAINT-GERVAIS-LES-BAINS
Appartement à SAINT-GERVAIS-LES-BAINS
Appartement à SAINT-GERVAIS-LES-BAINS
Appartement à SAINT-GERVAIS-LES-BAINS
Appartement à SAINT-GERVAIS-LES-BAINS
Appartement à SAINT-GERVAIS-LES-BAINS
Appartement à SAINT-GERVAIS-LES-BAINS
Appartement à SAINT-GERVAIS-LES-BAINS
Appartement à SAINT-GERVAIS-LES-BAINS
Appartement à SAINT-GERVAIS-LES-BAINS
Appartement à SAINT-GERVAIS-LES-BAINS
Appartement à SAINT-GERVAIS-LES-BAINS
Appartement à SAINT-GERVAIS-LES-BAINS
Appartement à SAINT-GERVAIS-LES-BAINS
Appartement à SAINT-GERVAIS-LES-BAINS
Appartement à SAINT-GERVAIS-LES-BAINS
Appartement à SAINT-GERVAIS-LES-BAINS
Appartement à SAINT-GERVAIS-LES-BAINS
Appartement à SAINT-GERVAIS-LES-BAINS
Appartement à SAINT-GERVAIS-LES-BAINS
Appartement à SAINT-GERVAIS-LES-BAINS
Appartement à SAINT-GERVAIS-LES-BAINS
Appartement à SAINT-GERVAIS-LES-BAINS
Appartement à SAINT-GERVAIS-LES-BAINS
Appartement à SAINT-GERVAIS-LES-BAINS
Appartement à SAINT-GERVAIS-LES-BAINS
Appartement à SAINT-GERVAIS-LES-BAINS
Appartement à SAINT-GERVAIS-LES-BAINS
Appartement à SAINT-GERVAIS-LES-BAINS
Appartement à SAINT-GERVAIS-LES-BAINS
Appartement à SAINT-GERVAIS-LES-BAINS
Appartement à SAINT-GERVAIS-LES-BAINS
Appartement à SAINT-GERVAIS-LES-BAINS
Appartement à SAINT-GERVAIS-LES-BAINS
Appartement à SAINT-GERVAIS-LES-BAINS
Appartement à SAINT-GERVAIS-LES-BAINS
Appartement à SAINT-GERVAIS-LES-BAINS
Appartement à SAINT-GERVAIS-LES-BAINS
Appartement à SAINT-GERVAIS-LES-BAINS
Appartement à SAINT-GERVAIS-LES-BAINS
Appartement à SAINT-GERVAIS-LES-BAINS
Appartement à SAINT-GERVAIS-LES-BAINS
Appartement à SAINT-GERVAIS-LES-BAINS
Appartement à SAINT-GERVAIS-LES-BAINS
Appartement à SAINT-GERVAIS-LES-BAINS
Appartement à SAINT-GERVAIS-LES-BAINS
Appartement à SAINT-GERVAIS-LES-BAINS
Appartement à SAINT-GERVAIS-LES-BAINS
Appartement à SAINT-GERVAIS-LES-BAINS
Appartement à SAINT-GERVAIS-LES-BAINS
Appartement à SAINT-GERVAIS-LES-BAINS
Appartement à SAINT-GERVAIS-LES-BAINS
Appartement à SAINT-GERVAIS-LES-BAINS
Appartement à SAINT-GERVAIS-LES-BAINS
Appartement à SAINT-GERVAIS-LES-BAINS
Appartement à SAINT-GERVAIS-LES-BAINS
Appartement à SAINT-GERVAIS-LES-BAINS
Appartement à SAINT-GERVAIS-LES-BAINS
Appartement à SAINT-GERVAIS-LES-BAINS
Appartement à SAINT-GERVAIS-LES-BAINS
Appartement à SAINT-GERVAIS-LES-BAINS
Appartement à SAINT-GERVAIS-LES-BAINS
Appartement à SAINT-GERVAIS-LES-BAINS
Appartement à SAINT-GERVAIS-LES-BAINS
Appartement à SAINT-GERVAIS-LES-BAINS
Appartement à SAINT-GERVAIS-LES-BAINS
Appartement à SAINT-GERVAIS-LES-BAINS
Appartement à SAINT-GERVAIS-LES-BAINS
Appartement à SAINT-GERVAIS-LES-BAINS
Appartement à SAINT-GERVAIS-LES-BAINS
Appartement à SAINT-GERVAIS-LES-BAINS
Appartement à SAINT-GERVAIS-LES-BAINS
Appartement à SAINT-GERVAIS-LES-BAINS
Appartement à SAINT-GERVAIS-LES-BAINS
Appartement à SAINT-GERVAIS-LES-BAINS
Appartement à SAINT-GERVAIS-LES-BAINS
Appartement à SAINT-GERVAIS-LES-BAINS
Appartement à SAINT-GERVAIS-LES-BAINS
Appartement à SAINT-GERVAIS-LES-BAINS
Appartement à SAINT-GERVAIS-LES-BAINS
Appartement à SAINT-GERVAIS-LES-BAINS
Appartement à SAINT-GERVAIS-LES-BAINS
Appartement à SAINT-GERVAIS-LES-BAINS
Appartement à SAINT-GERVAIS-LES-BAINS
Appartement à SAINT-GERVAIS-LES-BAINS
Appartement à SAINT-GERVAIS-LES-BAINS
Appartement à SAINT-GERVAIS-LES-BAINS
Appartement à SAINT-GERVAIS-LES-BAINS
Appartement à SAINT-GERVAIS-LES-BAINS
Appartement à SAINT-GERVAIS-LES-BAINS
Appartement à SAINT-GERVAIS-LES-BAINS
Appartement à SAINT-GERVAIS-LES-BAINS
Appartement à SAINT-GERVAIS-LES-BAINS
Appartement à SAINT-GERVAIS-LES-BAINS
Appartement à SAINT-GERVAIS-LES-BAINS
Appartement à SAINT-GERVAIS-LES-BAINS
Appartement à SAINT-GERVAIS-LES-BAINS
Appartement à SAINT-GERVAIS-LES-BAINS
Appartement à SAINT-GERVAIS-LES-BAINS
Appartement à SAINT-GERVAIS-LES-BAINS
Appartement à SAINT-GERVAIS-LES-BAINS
Appartement à SAINT-GERVAIS-LES-BAINS
Appartement à SAINT-GERVAIS-LES-BAINS
Appartement à SAINT-GERVAIS-LES-BAINS
Appartement à SAINT-GERVAIS-LES-BAINS
Appartement à SAINT-GERVAIS-LES-BAINS
Appartement à SAINT-GERVAIS-LES-BAINS
Appartement à SAINT-GERVAIS-LES-BAINS
Appartement à SAINT-GERVAIS-LES-BAINS
Appartement à SAINT-GERVAIS-LES-BAINS
Appartement à SAINT-GERVAIS-LES-BAINS
Appartement à SAINT-GERVAIS-LES-BAINS
Appartement à SAINT-GERVAIS-LES-BAINS
Appartement à SAINT-GERVAIS-LES-BAINS
Appartement à SAINT-GERVAIS-LES-BAINS
Appartement à SAINT-GERVAIS-LES-BAINS
Appartement à SAINT-GERVAIS-LES-BAINS
Appartement à SAINT-GERVAIS-LES-BAINS
Appartement à SAINT-GERVAIS-LES-BAINS
Appartement à SAINT-GERVAIS-LES-BAINS
Appartement à SAINT-GERVAIS-LES-BAINS
Appartement à SAINT-GERVAIS-LES-BAINS
Appartement à SAINT-GERVAIS-LES-BAINS
Appartement à SAINT-GERVAIS-LES-BAINS
Appartement à SAINT-GERVAIS-LES-BAINS
Appartement à SAINT-GERVAIS-LES-BAINS
Appartement à SAINT-GERVAIS-LES-BAINS
Appartement à SAINT-GERVAIS-LES-BAINS
Appartement à SAINT-GERVAIS-LES-BAINS
Appartement à SAINT-GERVAIS-LES-BAINS
Appartement à SAINT-GERVAIS-LES-BAINS
Appartement à SAINT-GERVAIS-LES-BAINS
Appartement à SAINT-GERVAIS-LES-BAINS
Appartement à SAINT-GERVAIS-LES-BAINS
Appartement à SAINT-GERVAIS-LES-BAINS
Appartement à SAINT-GERVAIS-LES-BAINS
Appartement à SAINT-GERVAIS-LES-BAINS
Appartement à SAINT-GERVAIS-LES-BAINS
Appartement à SAINT-GERVAIS-LES-BAINS
Appartement à SAINT-GERVAIS-LES-BAINS
Appartement à SAINT-GERVAIS-LES-BAINS
Appartement à SAINT-GERVAIS-LES-BAINS
Appartement à SAINT-GERVAIS-LES-BAINS
Appartement à SAINT-GERVAIS-LES-BAINS
Appartement à SAINT-GERVAIS-LES-BAINS
Appartement à SAINT-GERVAIS-LES-BAINS
Appartement à SAINT-GERVAIS-LES-BAINS
Appartement à SAINT-GERVAIS-LES-BAINS
Appartement à SAINT-GERVAIS-LES-BAINS
Appartement à SAINT-GERVAIS-LES-BAINS
Appartement à SAINT-GERVAIS-LES-BAINS
Appartement à SAINT-GERVAIS-LES-BAINS
Appartement à SAINT-GERVAIS-LES-BAINS
Appartement à SAINT-GERVAIS-LES-BAINS
Appartement à SAINT-GERVAIS-LES-BAINS
Appartement à SAINT-GERVAIS-LES-BAINS
Appartement à SAINT-GERVAIS-LES-BAINS
Appartement à SAINT-GERVAIS-LES-BAINS
Appartement à SAINT-GERVAIS-LES-BAINS
Appartement à SAINT-GERVAIS-LES-BAINS
Appartement à SAINT-GERVAIS-LES-BAINS
Appartement à SAINT-GERVAIS-LES-BAINS
Appartement à SAINT-GERVAIS-LES-BAINS
Appartement à SAINT-GERVAIS-LES-BAINS
Appartement à SAINT-GERVAIS-LES-BAINS
Appartement à SAINT-GERVAIS-LES-BAINS
Appartement à SAINT-GERVAIS-LES-BAINS
Appartement à SAINT-GERVAIS-LES-BAINS
Appartement à SAINT-GERVAIS-LES-BAINS
Appartement à SAINT-GERVAIS-LES-BAINS
Appartement à SAINT-GERVAIS-LES-BAINS
Appartement à SAINT-GERVAIS-LES-BAINS
Appartement à SAINT-GERVAIS-LES-BAINS
Appartement à SAINT-GERVAIS-LES-BAINS
Appartement à SAINT-GERVAIS-LES-BAINS
Appartement à SAINT-GERVAIS-LES-BAINS
Appartement à SAINT-GERVAIS-LES-BAINS
Appartement à SAINT-GERVAIS-LES-BAINS
Appartement à SAINT-GERVAIS-LES-BAINS
Appartement à SAINT-GERVAIS-LES-BAINS
Appartement à SAINT-GERVAIS-LES-BAINS
Appartement à SAINT-GERVAIS-LES-BAINS
Appartement à SAINT-GERVAIS-LES-BAINS
Appartement à SAINT-GERVAIS-LES-BAINS
Appartement à SAINT-GERVAIS-LES-BAINS
Appartement à SAINT-GERVAIS-LES-BAINS
Appartement à SAINT-GERVAIS-LES-BAINS
Appartement à SAINT-GERVAIS-LES-BAINS
Appartement à SAINT-GERVAIS-LES-BAINS
Appartement à SAINT-GERVAIS-LES-BAINS
Appartement à SAINT-GERVAIS-LES-BAINS
Appartement à SAINT-GERVAIS-LES-BAINS
Appartement à SAINT-GERVAIS-LES-BAINS
Appartement à SAINT-GERVAIS-LES-BAINS
Appartement à SAINT-GERVAIS-LES-BAINS
Appartement à SAINT-GERVAIS-LES-BAINS
Appartement à SAINT-GERVAIS-LES-BAINS
Appartement à SAINT-GERVAIS-LES-BAINS
Appartement à SAINT-GERVAIS-LES-BAINS
Appartement à SAINT-GERVAIS-LES-BAINS
Appartement à SAINT-GERVAIS-LES-BAINS
Appartement à SAINT-GERVAIS-LES-BAINS
Appartement à SAINT-GERVAIS-LES-BAINS
Appartement à SAINT-GERVAIS-LES-BAINS
Appartement à SAINT-GERVAIS-LES-BAINS
Appartement à SAINT-GERVAIS-LES-BAINS
Appartement à SAINT-GERVAIS-LES-BAINS
Appartement à SAINT-GERVAIS-LES-BAINS
Appartement à SAINT-GERVAIS-LES-BAINS
Appartement à SAINT-GERVAIS-LES-BAINS
Appartement à SAINT-GERVAIS-LES-BAINS
Appartement à SAINT-GERVAIS-LES-BAINS
Appartement à SAINT-GERVAIS-LES-BAINS
Appartement à SAINT-GERVAIS-LES-BAINS
Appartement à SAINT-GERVAIS-LES-BAINS
Appartement à SAINT-GERVAIS-LES-BAINS
Appartement à SAINT-GERVAIS-LES-BAINS
Appartement à SAINT-GERVAIS-LES-BAINS
Appartement à SAINT-GERVAIS-LES-BAINS
Appartement à SAINT-GERVAIS-LES-BAINS
Appartement à SAINT-GERVAIS-LES-BAINS
Appartement à SAINT-GERVAIS-LES-BAINS
Appartement à SAINT-GERVAIS-LES-BAINS
Appartement à SAINT-GERVAIS-LES-BAINS
Appartement à SAINT-GERVAIS-LES-BAINS
Appartement à SAINT-GERVAIS-LES-BAINS
Appartement à SAINT-GERVAIS-LES-BAINS
Appartement à SAINT-GERVAIS-LES-BAINS
Appartement à SAINT-GERVAIS-LES-BAINS
Appartement à SAINT-GERVAIS-LES-BAINS
Appartement à SAINT-GERVAIS-LES-BAINS
Appartement à SAINT-GERVAIS-LES-BAINS
Appartement à SAINT-GERVAIS-LES-BAINS
Appartement à SAINT-GERVAIS-LES-BAINS
Appartement à SAINT-GERVAIS-LES-BAINS
Appartement à SAINT-GERVAIS-LES-BAINS
Appartement à SAINT-GERVAIS-LES-BAINS
Appartement à SAINT-GERVAIS-LES-BAINS
Appartement à SAINT-GERVAIS-LES-BAINS
Appartement à SAINT-GERVAIS-LES-BAINS
Appartement à SAINT-GERVAIS-LES-BAINS
Appartement à SAINT-GERVAIS-LES-BAINS
Appartement à SAINT-GERVAIS-LES-BAINS
Appartement à SAINT-GERVAIS-LES-BAINS
Appartement à SAINT-GERVAIS-LES-BAINS
Appartement à SAINT-GERVAIS-LES-BAINS
Appartement à SAINT-GERVAIS-LES-BAINS
Appartement à SAINT-GERVAIS-LES-BAINS
Appartement à SAINT-GERVAIS-LES-BAINS
Appartement à SAINT-GERVAIS-LES-BAINS
Appartement à SAINT-GERVAIS-LES-BAINS
Appartement à SAINT-GERVAIS-LES-BAINS
Appartement à SAINT-GERVAIS-LES-BAINS
Appartement à SAINT-GERVAIS-LES-BAINS
Appartement à SAINT-GERVAIS-LES-BAINS
Appartement à SAINT-GERVAIS-LES-BAINS
Appartement à SAINT-GERVAIS-LES-BAINS
Appartement à SAINT-GERVAIS-LES-BAINS
Appartement à SAINT-GERVAIS-LES-BAINS
Appartement à SAINT-GERVAIS-LES-BAINS
Appartement à SAINT-GERVAIS-LES-BAINS
Appartement à SAINT-GERVAIS-LES-BAINS
Appartement à SAINT-GERVAIS-LES-BAINS
Appartement à SAINT-GERVAIS-LES-BAINS
Appartement à SAINT-GERVAIS-LES-BAINS
Appartement à SAINT-GERVAIS-LES-BAINS
Appartement à SAINT-GERVAIS-LES-BAINS
Appartement à SAINT-GERVAIS-LES-BAINS
Appartement à SAINT-GERVAIS-LES-BAINS
Appartement à SAINT-GERVAIS-LES-BAINS
Appartement à SAINT-GERVAIS-LES-BAINS
Appartement à SAINT-GERVAIS-LES-BAINS
Appartement à SAINT-GERVAIS-LES-BAINS
Appartement à SAINT-GERVAIS-LES-BAINS
Appartement à SAINT-GERVAIS-LES-BAINS
Appartement à SAINT-GERVAIS-LES-BAINS
Appartement à SAINT-GERVAIS-LES-BAINS
Appartement à SAINT-GERVAIS-LES-BAINS
Appartement à SAINT-GERVAIS-LES-BAINS
Appartement à SAINT-GERVAIS-LES-BAINS
Appartement à SAINT-GERVAIS-LES-BAINS
Appartement à SAINT-GERVAIS-LES-BAINS
Appartement à SAINT-GERVAIS-LES-BAINS
Appartement à SAINT-GERVAIS-LES-BAINS
Appartement à SAINT-GERVAIS-LES-BAINS
Appartement à SAINT-GERVAIS-LES-BAINS
Appartement à SAINT-GERVAIS-LES-BAINS
Appartement à SAINT-GERVAIS-LES-BAINS
Appartement à SAINT-GERVAIS-LES-BAINS
Appartement à SAINT-GERVAIS-LES-BAINS
Appartement à SAINT-GERVAIS-LES-BAINS
Appartement à SAINT-GERVAIS-LES-BAINS
Appartement à SAINT-GERVAIS-LES-BAINS
Appartement à SAINT-GERVAIS-LES-BAINS
Appartement à SAINT-GERVAIS-LES-BAINS
Appartement à SAINT-GERVAIS-LES-BAINS
Appartement à SAINT-GERVAIS-LES-BAINS
Appartement à SAINT-GERVAIS-LES-BAINS
Appartement à SAINT-GERVAIS-LES-BAINS
Appartement à SAINT-GERVAIS-LES-BAINS
Appartement à SAINT-GERVAIS-LES-BAINS
Appartement à SAINT-GERVAIS-LES-BAINS
Appartement à SAINT-GERVAIS-LES-BAINS
Appartement à SAINT-GERVAIS-LES-BAINS
Appartement à SAINT-GERVAIS-LES-BAINS
Appartement à SAINT-GERVAIS-LES-BAINS
Appartement à SAINT-GERVAIS-LES-BAINS
Appartement à SAINT-GERVAIS-LES-BAINS
Appartement à SAINT-GERVAIS-LES-BAINS
Appartement à SAINT-GERVAIS-LES-BAINS
Appartement à SAINT-GERVAIS-LES-BAINS
Appartement à SAINT-GERVAIS-LES-BAINS
Appartement à SAINT-GERVAIS-LES-BAINS
Appartement à SAINT-GERVAIS-LES-BAINS
Appartement à SAINT-GERVAIS-LES-BAINS
Appartement à SAINT-GERVAIS-LES-BAINS
Appartement à SAINT-GERVAIS-LES-BAINS
Appartement à SAINT-GERVAIS-LES-BAINS
Appartement à SAINT-GERVAIS-LES-BAINS
Appartement à SAINT-GERVAIS-LES-BAINS
Appartement à SAINT-GERVAIS-LES-BAINS
Appartement à SAINT-GERVAIS-LES-BAINS
Appartement à SAINT-GERVAIS-LES-BAINS
Appartement à SAINT-GERVAIS-LES-BAINS
Appartement à SAINT-GERVAIS-LES-BAINS
Appartement à SAINT-GERVAIS-LES-BAINS
Appartement à SAINT-GERVAIS-LES-BAINS
Appartement à SAINT-GERVAIS-LES-BAINS
Appartement à SAINT-GERVAIS-LES-BAINS
Appartement à SAINT-GERVAIS-LES-BAINS
Appartement à SAINT-GERVAIS-LES-BAINS
Appartement à SAINT-GERVAIS-LES-BAINS
Appartement à SAINT-GERVAIS-LES-BAINS
Appartement à SAINT-GERVAIS-LES-BAINS
Appartement à SAINT-GERVAIS-LES-BAINS
Appartement à SAINT-GERVAIS-LES-BAINS
Appartement à SAINT-GERVAIS-LES-BAINS
Appartement à SAINT-GERVAIS-LES-BAINS
Appartement à SAINT-GERVAIS-LES-BAINS
Appartement à SAINT-GERVAIS-LES-BAINS
Appartement à SAINT-GERVAIS-LES-BAINS
Appartement à SAINT-GERVAIS-LES-BAINS
Appartement à SAINT-GERVAIS-LES-BAINS
Appartement à SAINT-GERVAIS-LES-BAINS
Appartement à SAINT-GERVAIS-LES-BAINS
Appartement à SAINT-GERVAIS-LES-BAINS
Appartement à SAINT-GERVAIS-LES-BAINS
Appartement à SAINT-GERVAIS-LES-BAINS
Appartement à SAINT-GERVAIS-LES-BAINS
Appartement à SAINT-GERVAIS-LES-BAINS
Appartement à SAINT-GERVAIS-LES-BAINS
Appartement à SAINT-GERVAIS-LES-BAINS
Appartement à SAINT-GERVAIS-LES-BAINS
Appartement à SAINT-GERVAIS-LES-BAINS
Appartement à SAINT-GERVAIS-LES-BAINS
Appartement à SAINT-GERVAIS-LES-BAINS
Appartement à SAINT-GERVAIS-LES-BAINS
Appartement à SAINT-GERVAIS-LES-BAINS
Appartement à SAINT-GERVAIS-LES-BAINS
Appartement à SAINT-GERVAIS-LES-BAINS
Appartement à SAINT-GERVAIS-LES-BAINS
Appartement à SAINT-GERVAIS-LES-BAINS
Appartement à SAINT-GERVAIS-LES-BAINS
Appartement à SAINT-GERVAIS-LES-BAINS
Appartement à SAINT-GERVAIS-LES-BAINS
Appartement à SAINT-GERVAIS-LES-BAINS
Appartement à SAINT-GERVAIS-LES-BAINS
Appartement à SAINT-GERVAIS-LES-BAINS
Appartement à SAINT-GERVAIS-LES-BAINS
Appartement à SAINT-GERVAIS-LES-BAINS
Appartement à SAINT-GERVAIS-LES-BAINS
Appartement à SAINT-GERVAIS-LES-BAINS
Appartement à SAINT-GERVAIS-LES-BAINS
Appartement à SAINT-GERVAIS-LES-BAINS
Appartement à SAINT-GERVAIS-LES-BAINS
Appartement à SAINT-GERVAIS-LES-BAINS
Appartement à SAINT-GERVAIS-LES-BAINS
Appartement à SAINT-GERVAIS-LES-BAINS
Appartement à SAINT-GERVAIS-LES-BAINS
Appartement à SAINT-GERVAIS-LES-BAINS
Appartement à SAINT-GERVAIS-LES-BAINS
Appartement à SAINT-GERVAIS-LES-BAINS
Appartement à SAINT-GERVAIS-LES-BAINS
Appartement à SAINT-GERVAIS-LES-BAINS
Appartement à SAINT-GERVAIS-LES-BAINS
Appartement à SAINT-GERVAIS-LES-BAINS
Appartement à SAINT-GERVAIS-LES-BAINS
Appartement à SAINT-GERVAIS-LES-BAINS
Appartement à SAINT-GERVAIS-LES-BAINS
Appartement à SAINT-GERVAIS-LES-BAINS
Appartement à SAINT-GERVAIS-LES-BAINS
Appartement à SAINT-GERVAIS-LES-BAINS
Appartement à SAINT-GERVAIS-LES-BAINS
Appartement à SAINT-GERVAIS-LES-BAINS
Appartement à SAINT-GERVAIS-LES-BAINS
Appartement à SAINT-GERVAIS-LES-BAINS
Appartement à SAINT-GERVAIS-LES-BAINS
Appartement à SAINT-GERVAIS-LES-BAINS
Appartement à SAINT-GERVAIS-LES-BAINS
Appartement à SAINT-GERVAIS-LES-BAINS
Appartement à SAINT-GERVAIS-LES-BAINS
Appartement à SAINT-GERVAIS-LES-BAINS
Appartement à SAINT-GERVAIS-LES-BAINS
Appartement à SAINT-GERVAIS-LES-BAINS
Appartement à SAINT-GERVAIS-LES-BAINS
Appartement à SAINT-GERVAIS-LES-BAINS
Appartement à SAINT-GERVAIS-LES-BAINS
Appartement à SAINT-GERVAIS-LES-BAINS
Appartement à SAINT-GERVAIS-LES-BAINS
Appartement à SAINT-GERVAIS-LES-BAINS
Appartement à SAINT-GERVAIS-LES-BAINS
Appartement à SAINT-GERVAIS-LES-BAINS
Appartement à SAINT-GERVAIS-LES-BAINS
Appartement à SAINT-GERVAIS-LES-BAINS
Appartement à SAINT-GERVAIS-LES-BAINS
Appartement à SAINT-GERVAIS-LES-BAINS
Appartement à SAINT-GERVAIS-LES-BAINS
Appartement à SAINT-GERVAIS-LES-BAINS
Appartement à SAINT-GERVAIS-LES-BAINS
Appartement à SAINT-GERVAIS-LES-BAINS
Appartement à SAINT-GERVAIS-LES-BAINS
Appartement à SAINT-GERVAIS-LES-BAINS
Appartement à SAINT-GERVAIS-LES-BAINS
Appartement à SAINT-GERVAIS-LES-BAINS
Appartement à SAINT-GERVAIS-LES-BAINS
Appartement à SAINT-GERVAIS-LES-BAINS
Appartement à SAINT-GERVAIS-LES-BAINS
Appartement à SAINT-GERVAIS-LES-BAINS
Appartement à SAINT-GERVAIS-LES-BAINS
Appartement à SAINT-GERVAIS-LES-BAINS
Appartement à SAINT-GERVAIS-LES-BAINS
Appartement à SAINT-GERVAIS-LES-BAINS
Appartement à SAINT-GERVAIS-LES-BAINS
Appartement à SAINT-GERVAIS-LES-BAINS
Appartement à SAINT-GERVAIS-LES-BAINS
Appartement à SAINT-GERVAIS-LES-BAINS
Appartement à SAINT-GERVAIS-LES-BAINS
Appartement à SAINT-GERVAIS-LES-BAINS
Appartement à SAINT-GERVAIS-LES-BAINS
Appartement à SAINT-GERVAIS-LES-BAINS
Appartement à SAINT-GERVAIS-LES-BAINS
Appartement à SAINT-GERVAIS-LES-BAINS
Appartement à SAINT-GERVAIS-LES-BAINS
Appartement à SAINT-GERVAIS-LES-BAINS
Appartement à SAINT-GERVAIS-LES-BAINS
Appartement à SAINT-GERVAIS-LES-BAINS
Appartement à SAINT-GERVAIS-LES-BAINS
Appartement à SAINT-GERVAIS-LES-BAINS
Appartement à SAINT-GERVAIS-LES-BAINS
Appartement à SAINT-GERVAIS-LES-BAINS
Appartement à SAINT-GERVAIS-LES-BAINS
Appartement à SAINT-GERVAIS-LES-BAINS
Appartement à SAINT-GERVAIS-LES-BAINS
Appartement à SAINT-GERVAIS-LES-BAINS
Appartement à SAINT-GERVAIS-LES-BAINS
Appartement à SAINT-GERVAIS-LES-BAINS
Appartement à SAINT-GERVAIS-LES-BAINS
Appartement à SAINT-GERVAIS-LES-BAINS
Appartement à SAINT-GERVAIS-LES-BAINS
Appartement à SAINT-GERVAIS-LES-BAINS
Appartement à SAINT-GERVAIS-LES-BAINS
Appartement à SAINT-GERVAIS-LES-BAINS
Appartement à SAINT-GERVAIS-LES-BAINS
Appartement à SAINT-GERVAIS-LES-BAINS
Appartement à SAINT-GERVAIS-LES-BAINS
Appartement à SAINT-GERVAIS-LES-BAINS
Appartement à SAINT-GERVAIS-LES-BAINS
Appartement à SAINT-GERVAIS-LES-BAINS
Appartement à SAINT-GERVAIS-LES-BAINS
Appartement à SAINT-GERVAIS-LES-BAINS
Appartement à SAINT-GERVAIS-LES-BAINS
Appartement à SAINT-GERVAIS-LES-BAINS
Appartement à SAINT-GERVAIS-LES-BAINS
Appartement à SAINT-GERVAIS-LES-BAINS
Appartement à SAINT-GERVAIS-LES-BAINS
Appartement à SAINT-GERVAIS-LES-BAINS
Appartement à SAINT-GERVAIS-LES-BAINS
Appartement à SAINT-GERVAIS-LES-BAINS
Appartement à SAINT-GERVAIS-LES-BAINS
Appartement à SAINT-GERVAIS-LES-BAINS
Appartement à SAINT-GERVAIS-LES-BAINS
Appartement à SAINT-GERVAIS-LES-BAINS
Appartement à SAINT-GERVAIS-LES-BAINS
Appartement à SAINT-GERVAIS-LES-BAINS
Appartement à SAINT-GERVAIS-LES-BAINS
Appartement à SAINT-GERVAIS-LES-BAINS
Appartement à SAINT-GERVAIS-LES-BAINS
Appartement à SAINT-GERVAIS-LES-BAINS
Appartement à SAINT-GERVAIS-LES-BAINS
Appartement à SAINT-GERVAIS-LES-BAINS
Appartement à SAINT-GERVAIS-LES-BAINS
Appartement à SAINT-GERVAIS-LES-BAINS
Appartement à SAINT-GERVAIS-LES-BAINS
Appartement à SAINT-GERVAIS-LES-BAINS
Appartement à SAINT-GERVAIS-LES-BAINS
Appartement à SAINT-GERVAIS-LES-BAINS
Appartement à SAINT-GERVAIS-LES-BAINS
Appartement à SAINT-GERVAIS-LES-BAINS
Appartement à SAINT-GERVAIS-LES-BAINS
Appartement à SAINT-GERVAIS-LES-BAINS
Appartement à SAINT-GERVAIS-LES-BAINS
Appartement à SAINT-GERVAIS-LES-BAINS
Appartement à SAINT-GERVAIS-LES-BAINS
Appartement à SAINT-GERVAIS-LES-BAINS
Appartement à SAINT-GERVAIS-LES-BAINS
Appartement à SAINT-GERVAIS-LES-BAINS
Appartement à SAINT-GERVAIS-LES-BAINS
Appartement à SAINT-GERVAIS-LES-BAINS
Appartement à SAINT-GERVAIS-LES-BAINS
Appartement à SAINT-GERVAIS-LES-BAINS
Appartement à SAINT-GERVAIS-LES-BAINS
Appartement à SAINT-GERVAIS-LES-BAINS
Appartement à SAINT-GERVAIS-LES-BAINS
Appartement à SAINT-GERVAIS-LES-BAINS
Appartement à SAINT-GERVAIS-LES-BAINS
Appartement à SAINT-GERVAIS-LES-BAINS
Appartement à SAINT-GERVAIS-LES-BAINS
Appartement à SAINT-GERVAIS-LES-BAINS
Appartement à SAINT-GERVAIS-LES-BAINS
Appartement à SAINT-GERVAIS-LES-BAINS
Appartement à SAINT-GERVAIS-LES-BAINS
Appartement à SAINT-GERVAIS-LES-BAINS
Appartement à SAINT-GERVAIS-LES-BAINS
Appartement à SAINT-GERVAIS-LES-BAINS
Appartement à SAINT-GERVAIS-LES-BAINS
Appartement à SAINT-GERVAIS-LES-BAINS
Appartement à SAINT-GERVAIS-LES-BAINS
Appartement à SAINT-GERVAIS-LES-BAINS
Appartement à SAINT-GERVAIS-LES-BAINS
Appartement à SAINT-GERVAIS-LES-BAINS
Appartement à SAINT-GERVAIS-LES-BAINS
Appartement à SAINT-GERVAIS-LES-BAINS
Appartement à SAINT-GERVAIS-LES-BAINS
Appartement à SAINT-GERVAIS-LES-BAINS
Appartement à SAINT-GERVAIS-LES-BAINS
Appartement à SAINT-GERVAIS-LES-BAINS
Appartement à SAINT-GERVAIS-LES-BAINS
Appartement à SAINT-GERVAIS-LES-BAINS
Appartement à SAINT-GERVAIS-LES-BAINS
Appartement à SAINT-GERVAIS-LES-BAINS
Appartement à SAINT-GERVAIS-LES-BAINS
Appartement à SAINT-GERVAIS-LES-BAINS
Appartement à SAINT-GERVAIS-LES-BAINS
Appartement à SAINT-GERVAIS-LES-BAINS
Appartement à SAINT-GERVAIS-LES-BAINS
Appartement à SAINT-GERVAIS-LES-BAINS
Appartement à SAINT-GERVAIS-LES-BAINS
Appartement à SAINT-GERVAIS-LES-BAINS
Appartement à SAINT-GERVAIS-LES-BAINS
Appartement à SAINT-GERVAIS-LES-BAINS
Appartement à SAINT-GERVAIS-LES-BAINS
Appartement à SAINT-GERVAIS-LES-BAINS
Appartement à SAINT-GERVAIS-LES-BAINS
Appartement à SAINT-GERVAIS-LES-BAINS
Appartement à SAINT-GERVAIS-LES-BAINS
Appartement à SAINT-GERVAIS-LES-BAINS
Appartement à SAINT-GERVAIS-LES-BAINS
Appartement à SAINT-GERVAIS-LES-BAINS
Appartement à SAINT-GERVAIS-LES-BAINS
Appartement à SAINT-GERVAIS-LES-BAINS
Appartement à SAINT-GERVAIS-LES-BAINS
Appartement à SAINT-GERVAIS-LES-BAINS
Appartement à SAINT-GERVAIS-LES-BAINS
Appartement à SAINT-GERVAIS-LES-BAINS
Appartement à SAINT-GERVAIS-LES-BAINS
Appartement à SAINT-GERVAIS-LES-BAINS
Appartement à SAINT-GERVAIS-LES-BAINS
Appartement à SAINT-GERVAIS-LES-BAINS
Appartement à SAINT-GERVAIS-LES-BAINS
Appartement à SAINT-GERVAIS-LES-BAINS
Appartement à SAINT-GERVAIS-LES-BAINS
Appartement à SAINT-GERVAIS-LES-BAINS
Appartement à SAINT-GERVAIS-LES-BAINS
Appartement à SAINT-GERVAIS-LES-BAINS
Appartement à SAINT-GERVAIS-LES-BAINS
Appartement à SAINT-GERVAIS-LES-BAINS
Appartement à SAINT-GERVAIS-LES-BAINS
Appartement à SAINT-GERVAIS-LES-BAINS
Appartement à SAINT-GERVAIS-LES-BAINS
Appartement à SAINT-GERVAIS-LES-BAINS
Appartement à SAINT-GERVAIS-LES-BAINS
Appartement à SAINT-GERVAIS-LES-BAINS
Appartement à SAINT-GERVAIS-LES-BAINS
Appartement à SAINT-GERVAIS-LES-BAINS
Appartement à SAINT-GERVAIS-LES-BAINS
Appartement à SAINT-GERVAIS-LES-BAINS
Appartement à SAINT-GERVAIS-LES-BAINS
Appartement à SAINT-GERVAIS-LES-BAINS
Appartement à SAINT-GERVAIS-LES-BAINS
Appartement à SAINT-GERVAIS-LES-BAINS
Appartement à SAINT-GERVAIS-LES-BAINS
Appartement à SAINT-GERVAIS-LES-BAINS
Appartement à SAINT-GERVAIS-LES-BAINS
Appartement à SAINT-GERVAIS-LES-BAINS
Appartement à SAINT-GERVAIS-LES-BAINS
Appartement à SAINT-GERVAIS-LES-BAINS
Appartement à SAINT-GERVAIS-LES-BAINS
Appartement à SAINT-GERVAIS-LES-BAINS
Appartement à SAINT-GERVAIS-LES-BAINS
Appartement à SAINT-GERVAIS-LES-BAINS
Appartement à SAINT-GERVAIS-LES-BAINS
Appartement à SAINT-GERVAIS-LES-BAINS
Appartement à SAINT-GERVAIS-LES-BAINS
Appartement à SAINT-GERVAIS-LES-BAINS
Appartement à SAINT-GERVAIS-LES-BAINS
Appartement à SAINT-GERVAIS-LES-BAINS
Appartement à SAINT-GERVAIS-LES-BAINS
Appartement à SAINT-GERVAIS-LES-BAINS
Appartement à SAINT-GERVAIS-LES-BAINS
Appartement à SAINT-GERVAIS-LES-BAINS
Appartement à SAINT-GERVAIS-LES-BAINS
Appartement à SAINT-GERVAIS-LES-BAINS
Appartement à SAINT-GERVAIS-LES-BAINS
Appartement à SAINT-GERVAIS-LES-BAINS
Appartement à SAINT-GERVAIS-LES-BAINS
Appartement à SAINT-GERVAIS-LES-BAINS
Appartement à SAINT-GERVAIS-LES-BAINS
Appartement à SAINT-GERVAIS-LES-BAINS
Appartement à SAINT-GERVAIS-LES-BAINS
Appartement à SAINT-GERVAIS-LES-BAINS
Appartement à SAINT-GERVAIS-LES-BAINS
Appartement à SAINT-GERVAIS-LES-BAINS
Appartement à SAINT-GERVAIS-LES-BAINS
Appartement à SAINT-GERVAIS-LES-BAINS
Appartement à SAINT-GERVAIS-LES-BAINS
Appartement à SAINT-GERVAIS-LES-BAINS
Appartement à SAINT-GERVAIS-LES-BAINS
Appartement à SAINT-GERVAIS-LES-BAINS
Appartement à SAINT-GERVAIS-LES-BAINS
Appartement à SAINT-GERVAIS-LES-BAINS
Appartement à SAINT-GERVAIS-LES-BAINS
Appartement à SAINT-GERVAIS-LES-BAINS
Appartement à SAINT-GERVAIS-LES-BAINS
Appartement à SAINT-GERVAIS-LES-BAINS
Appartement à SAINT-GERVAIS-LES-BAINS
Appartement à SAINT-GERVAIS-LES-BAINS
Appartement à SAINT-GERVAIS-LES-BAINS
Appartement à SAINT-GERVAIS-LES-BAINS
Appartement à SAINT-GERVAIS-LES-BAINS
Appartement à SAINT-GERVAIS-LES-BAINS
Appartement à SAINT-GERVAIS-LES-BAINS
Appartement à SAINT-GERVAIS-LES-BAINS
Appartement à SAINT-GERVAIS-LES-BAINS
Appartement à SAINT-GERVAIS-LES-BAINS
Appartement à SAINT-GERVAIS-LES-BAINS
Appartement à SAINT-GERVAIS-LES-BAINS
Appartement à SAINT-GERVAIS-LES-BAINS
Appartement à SAINT-GERVAIS-LES-BAINS
Appartement à SAINT-GERVAIS-LES-BAINS
Appartement à SAINT-GERVAIS-LES-BAINS
Appartement à SAINT-GERVAIS-LES-BAINS
Appartement à SAINT-GERVAIS-LES-BAINS
Appartement à SAINT-GERVAIS-LES-BAINS
Appartement à SAINT-GERVAIS-LES-BAINS
Appartement à SAINT-GERVAIS-LES-BAINS
Appartement à SAINT-GERVAIS-LES-BAINS
Appartement à SAINT-GERVAIS-LES-BAINS
Appartement à SAINT-GERVAIS-LES-BAINS
Appartement à SAINT-GERVAIS-LES-BAINS
Appartement à SAINT-GERVAIS-LES-BAINS
Appartement à SAINT-GERVAIS-LES-BAINS
Appartement à SAINT-GERVAIS-LES-BAINS
Appartement à SAINT-GERVAIS-LES-BAINS
Appartement à SAINT-GERVAIS-LES-BAINS
Appartement à SAINT-GERVAIS-LES-BAINS
Appartement à SAINT-GERVAIS-LES-BAINS
Appartement à SAINT-GERVAIS-LES-BAINS
Appartement à SAINT-GERVAIS-LES-BAINS
Appartement à SAINT-GERVAIS-LES-BAINS
Appartement à SAINT-GERVAIS-LES-BAINS
Appartement à SAINT-GERVAIS-LES-BAINS
Appartement à SAINT-GERVAIS-LES-BAINS
Appartement à SAINT-GERVAIS-LES-BAINS
Appartement à SAINT-GERVAIS-LES-BAINS
Appartement à SAINT-GERVAIS-LES-BAINS
Appartement à SAINT-GERVAIS-LES-BAINS
Appartement à SAINT-GERVAIS-LES-BAINS
Appartement à SAINT-GERVAIS-LES-BAINS
Appartement à SAINT-GERVAIS-LES-BAINS
Appartement à SAINT-GERVAIS-LES-BAINS
Appartement à SAINT-GERVAIS-LES-BAINS
Appartement à SAINT-GERVAIS-LES-BAINS
Appartement à SAINT-GERVAIS-LES-BAINS
Appartement à SAINT-GERVAIS-LES-BAINS
Appartement à SAINT-GERVAIS-LES-BAINS
Appartement à SAINT-GERVAIS-LES-BAINS
Appartement à SAINT-GERVAIS-LES-BAINS
Appartement à SAINT-GERVAIS-LES-BAINS
Appartement à SAINT-GERVAIS-LES-BAINS
Appartement à SAINT-GERVAIS-LES-BAINS
Appartement à SAINT-GERVAIS-LES-BAINS
Appartement à SAINT-GERVAIS-LES-BAINS
Appartement à SAINT-GERVAIS-LES-BAINS
Appartement à SAINT-GERVAIS-LES-BAINS
Ce site est protégé par reCAPTCHA la Politique de confidentialité et les Conditions d’utilisation de Google s’appliquent.
Obtenir un prêt immobilier au meilleur taux ?

En poursuivant votre navigation sans modifier vos paramètres, vous acceptez l'utilisation de cookies susceptibles de réaliser des statistiques de visite. Cliquez ici pour plus d'informations