Bénéficiez des services de nos partenaires locaux soigneusement sélectionnés
pour vous accompagner dans votre parcours d'achat immobilier

Terrain 788m² à chambeon

— Chambeon 42110 —
70 000 €
788 m²

Nos partenaires locaux
Terrains constructibles à Chambéon – Un cadre de vie idéal pour votre futur projet !

Vous rêvez de construire votre maison dans un environnement calme et verdoyant ? L'agence Pompel Immobilier et Kévin POYET vous proposent de découvrir nos terrains en construction libre situés sur la magnifique commune de Chambéon, offrant un cadre de vie agréable, proche des commodités, de l'école et à seulement 3 minutes de l'accès autoroutier.

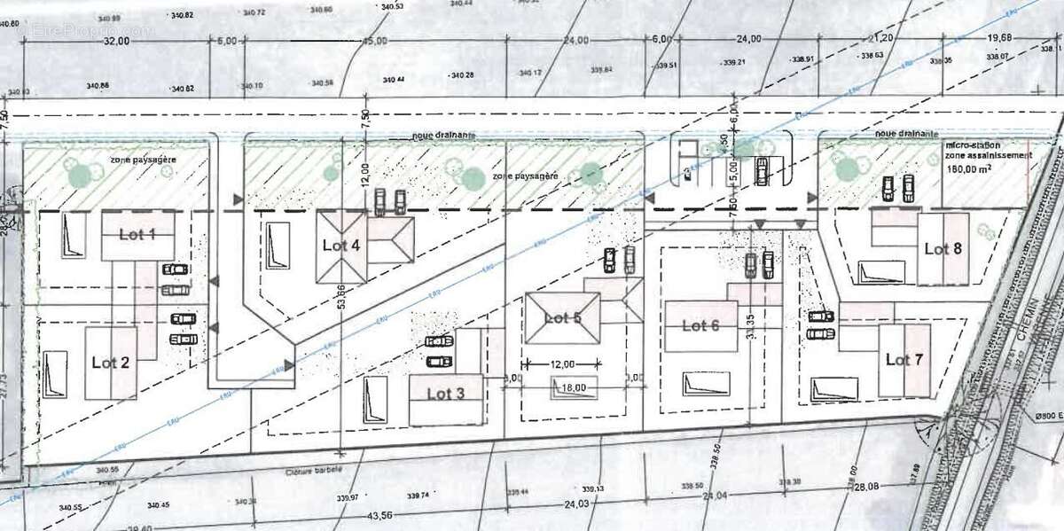
Les lots disponibles (sous réserve des dernières réservations) :

-Lot 1 : 907 m² (523 m² constructibles) VENDU
-Lot 2 : 948 m² (497 m² constructibles)
-Lot 3 : 1 029 m² (613 m² constructibles) VENDU
-Lot 4 : 1 244 m² (474 m² constructibles)
-Lot 5 : 1 233 m² (969 m² constructibles)
-Lot 6 : 837 m² (833 m² constructibles) VENDU
-Lot 7 : 788 m² constructibles VENDU
-Lot 8 : 790 m² (533 m² constructibles) SOUS OPTION

Pourquoi choisir Chambéon ?

Construction libre : Donnez vie à votre projet selon vos envies.

Emplacement stratégique : Proximité des services, écoles et axes routiers.

Environnement paisible : Un cadre de vie préservé et agréable.

À partir de 70 000 €

Ne tardez pas, certains lots sont déjà réservés ! Contactez-nous dès maintenant pour plus d'informations et réservez votre terrain avant qu'il ne soit trop tard.

Mentions légales: Les informations sur les risques auxquels les biens sont exposés sont disponibles sur le site Géorisques: www.georisques.gouv.fr, les honoraires sont à la charge du vendeur, notre barème est consultable sur notre site. KEVIN POYET votre conseiller immobilier Indépendant (R.S.A.C. de SAINT ETIENNE N° 879980050)

Honoraires à la charge du vendeur. Les informations sur les risques auxquels ce bien est exposé sont disponibles sur le site Géorisques : georisques.gouv.fr.
Voir plus

Référence: VT064-JOURJON
Honoraires à la charge du vendeur.

Prêt immobilier

Vous souhaitez connaître votre capacité d’emprunt et trouver le meilleur crédit immobilier ?
Réaliser une simulation gratuite

Terrain à CHAMBEON
Terrain à CHAMBEON
Terrain à CHAMBEON
Terrain à CHAMBEON
Terrain à CHAMBEON
Terrain à CHAMBEON
Terrain à CHAMBEON
Terrain à CHAMBEON
Terrain à CHAMBEON
Ce site est protégé par reCAPTCHA la Politique de confidentialité et les Conditions d’utilisation de Google s’appliquent.
Obtenir un prêt immobilier au meilleur taux ?

En poursuivant votre navigation sans modifier vos paramètres, vous acceptez l'utilisation de cookies susceptibles de réaliser des statistiques de visite. Cliquez ici pour plus d'informations