Bénéficiez des services de nos partenaires locaux soigneusement sélectionnés
pour vous accompagner dans votre parcours d'achat immobilier

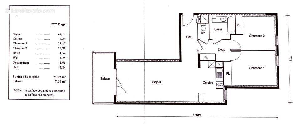
Appartement 73m² à saint-priest

— Saint-Priest 69800 —
199 500 €
73 m²
3 pièces
parkingbalcon/terrasseascenseur

Nos partenaires locaux
Forom Immobilier vous propose en exclusivité cet appartement T3 d'une surface de 73,09 m², situé au 2ème étage avec ascenseur dans une résidence récente avec espaces verts sur la commune de Saint Priest, à 10 minutes à pied de la gare.

Libre de toute occupation au plus tard le 05/03/2026 !

Logement conventionné jusqu'en juin 2026, il sera possible d'y habiter après cette date une fois la convention résiliée.

Le bien dispose d'un séjour, une cuisine ouverte, deux chambres avec placard, une salle de bains, un WC, un balcon et une place de parking double en sous-sol.

Informations clés :

- Chauffage individuel électrique

- Eau froide et eau chaude comprises dans les charges (collectif)

- Charges annuelles de copropriété : 2 480€.

- Diagnostic de Performance Énergétique : C

- Taxe Foncière 2024 : 156€ (exonération partielle pendant la durée de la convention)

- Nombre de lots : 82

- Honoraires charges vendeur.

Honoraires à la charge du vendeur. Dans une copropriété de 82 lots. Quote-part moyenne du budget prévisionnel 2 080 €/an. Aucune procédure n'est en cours. Classe énergie C, Classe climat A Montant moyen estimé des dépenses annuelles d'énergie pour un usage standard, établi à partir des prix de l'énergie de l'année 2023 : entre 760.00 et 1050.00 €. Les informations sur les risques auxquels ce bien est exposé sont disponibles sur le site Géorisques : georisques.gouv.fr.
Voir plus

Référence: 3809-FOROM
Bien en copropriété. Nombre de lots : 82. Charges de copropriété : 2080 €.
Honoraires à la charge du vendeur.
Barème des honoraires
DPE
A
B
C
D
E
F
G
GES
A
B
C
D
E
F
G

Prêt immobilier

Vous souhaitez connaître votre capacité d’emprunt et trouver le meilleur crédit immobilier ?
Réaliser une simulation gratuite

Appartement à SAINT-PRIEST
Appartement à SAINT-PRIEST
Appartement à SAINT-PRIEST
Appartement à SAINT-PRIEST
Ce site est protégé par reCAPTCHA la Politique de confidentialité et les Conditions d’utilisation de Google s’appliquent.
Obtenir un prêt immobilier au meilleur taux ?

En poursuivant votre navigation sans modifier vos paramètres, vous acceptez l'utilisation de cookies susceptibles de réaliser des statistiques de visite. Cliquez ici pour plus d'informations