Bénéficiez des services de nos partenaires locaux soigneusement sélectionnés
pour vous accompagner dans votre parcours d'achat immobilier

Appartement 2 pièces en rez-de-jardin avec parking

— La Seyne-Sur-Mer 83500 —
142 000 €
40 m²
2 pièces
parking

Nos partenaires locaux
VENTE EN NUE-PROPRIETE
Pour diversifier votre patrimoine sans alourdir votre fiscalité : investissez en nue-propriété !
Vous bénéficiez d'une décôte immédiate de 30 à 40% sur le prix d'acquisition, vous n’avez aucune charge ni impôt à payer pendant la durée du démembrement (pas d'augmentation de votre IR), et vous récupérez à terme la pleine propriété du bien, totalement libre et revalorisé.
Dernière opportunité dans cette résidence de 2025, dans un cadre de vie paisible en bord de mer, et avec des prestations actuelles et harmonieuses.
Villa Hélios, une résidence de 19 logements, se distinguant par son architecture épurée, sa luminosité, et son environnement verdoyant, tout proche de la mer et des commodités du quartier Tamaris et Portes Marines.
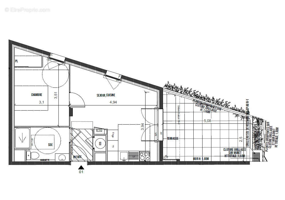
Cet appartement 2 pièces de 40m2 en rez-de-jardin se compose d'un séjour avec cuisine aménagée, une chambre, salle d'eau avec wc. Le jardinet de près de 20m2 offre un extérieur très agréable, dans ce quartier calme. Vous bénéficierez d'une place de stationnement privative dans le sous-sol de la résidence.
Pour votre confort : performances énergétiques optimales pour ce logement RT2012, volets roulants électriques, chauffe-eau thermodynamique, accessibilité PMR.
Constituez un patrimoine qualitatif dans ce quartier amené à une valorisation importante dans les prochaines années.
Les + : vous bénéficiez d'un taux de TVA réduit qui diminue encore le montant de votre investissement initial + frais de notaire réduits + garanties constructeurs.
Voir plus

Bien en copropriété. Nombre de lots : 19. Charges de copropriété : 840 €.
Honoraires à la charge du vendeur.
DPE
A
B
C
D
E
F
G
GES
A
B
C
D
E
F
G

Prêt immobilier

Vous souhaitez connaître votre capacité d’emprunt et trouver le meilleur crédit immobilier ?
Réaliser une simulation gratuite

Appartement à LA SEYNE-SUR-MER
Appartement à LA SEYNE-SUR-MER
Ce site est protégé par reCAPTCHA la Politique de confidentialité et les Conditions d’utilisation de Google s’appliquent.
Obtenir un prêt immobilier au meilleur taux ?

En poursuivant votre navigation sans modifier vos paramètres, vous acceptez l'utilisation de cookies susceptibles de réaliser des statistiques de visite. Cliquez ici pour plus d'informations