Bénéficiez des services de nos partenaires locaux soigneusement sélectionnés
pour vous accompagner dans votre parcours d'achat immobilier

Maison de 140 m² avec piscine

— Saint-Sulpice 81370 —
370 000 €
140 m² / 527 m²
5 pièces
parkingbalcon/terrassepiscine

Nos partenaires locaux
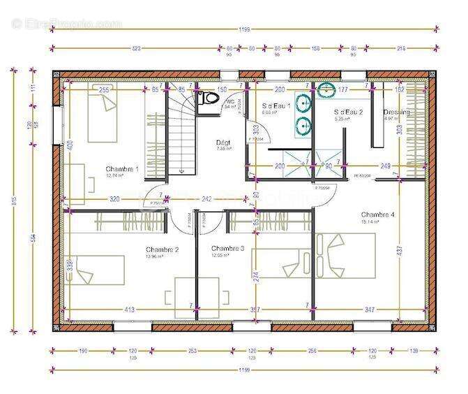
Lucien MOCQUET IMMOBILIER vous présente cette villa contemporaine de 140 m² sur 2 niveaux, implantée sur une parcelle de 527m² entièrement clôturée.
Concernant le prix, la discussion est ouverte.
Située proche de toutes commodités et du centre-ville, dans une impasse résidentielle.
Accès int/ext pour personnes à mobilité réduite.
Toutes les pièces disposent d'un système de chauffage réversible.
Piscine avec Liner armé 150/100 récent.
Assainissement au tout à l'égout.

Sa composition:
- Cuisine ouverte sur salon 44m² avec accès terrasse par baie vitrée et porte fenêtre.
- Cellier attenant et carrelé de 7m² avec évier double bac et accès au garage.
- A l'entrée, dressing et WC séparé avec lave-main et emplacement douche prévu.
- Garage carrelé & isolé.
- Ballon thermodynamique sous escalier.

À l'étage entièrement carrelé:
- 4 chambres avec dressing dont une suite parentale de 25m² avec salle d'eau et grand dressing aménagé.
- WC séparé
- Salle d'eau avec douche et double vasque.

Les plans ainsi que la visite virtuelle que je propose vous permettront une projection précise et sans faille.
Pour visiter ce bien et vous accompagner dans ce projet, vous pouvez me contacter au [Coordonnées masquées].

Cette annonce référence 280504 vous est présentée par votre agent commercial BSK Immobilier LUCIEN MOCQUET (EI) immatriculé au RSAC de CASTRES (81100) sous le numéro 83479086700016.

Prix du bien : 370 000,00 €
Les honoraires d'agence sont à la charge du vendeur.

A propos des performances énergétiques :
Date de réalisation du diagnostic énergétique : 08/04/2025
Score DPE : 50 kWhEP/m²/an
Score GES : 1 kgepCO2/m²/an
Montant estimé des dépenses annuelles d'énergie pour un usage standard : entre 600.00 € et 870.00 € par an. Prix moyens des énergies indexés sur l'année 2025 (abonnements compris).

Les informations sur les risques auxquels ce bien est exposé sont disponibles sur le site Géorisques : www.georisques.gouv.fr
Voir plus

Référence: 280504_1
Honoraires à la charge du vendeur.
DPE
A
B
C
D
E
F
G
GES
A
B
C
D
E
F
G

Prêt immobilier

Vous souhaitez connaître votre capacité d’emprunt et trouver le meilleur crédit immobilier ?
Réaliser une simulation gratuite

Maison à SAINT-SULPICE
Maison à SAINT-SULPICE
Maison à SAINT-SULPICE
Maison à SAINT-SULPICE
Maison à SAINT-SULPICE
Maison à SAINT-SULPICE
Maison à SAINT-SULPICE
Maison à SAINT-SULPICE
Maison à SAINT-SULPICE
Maison à SAINT-SULPICE
Maison à SAINT-SULPICE
Maison à SAINT-SULPICE
Maison à SAINT-SULPICE
Maison à SAINT-SULPICE
Maison à SAINT-SULPICE
Maison à SAINT-SULPICE
Maison à SAINT-SULPICE
Maison à SAINT-SULPICE
Maison à SAINT-SULPICE
Ce site est protégé par reCAPTCHA la Politique de confidentialité et les Conditions d’utilisation de Google s’appliquent.
Obtenir un prêt immobilier au meilleur taux ?

En poursuivant votre navigation sans modifier vos paramètres, vous acceptez l'utilisation de cookies susceptibles de réaliser des statistiques de visite. Cliquez ici pour plus d'informations