Bénéficiez des services de nos partenaires locaux soigneusement sélectionnés
pour vous accompagner dans votre parcours d'achat immobilier

Appartement 3 chambres avec garage et parking

— Agde 34300 —
199 000 €
76 m²
4 pièces
parkingbalcon/terrasse

Nos partenaires locaux
Laissez-vous séduire par ce magnifique appartement, idéalement situé à proximité de la cave coopérative et de toutes les commodités.

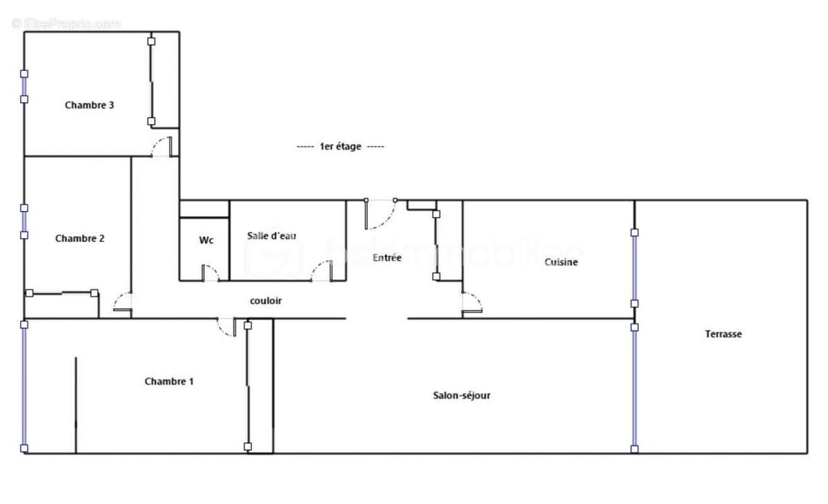
D'une superficie de 85 m² environ (76 m² loi Carrez), cet appartement se trouve au premier étage d'une petite copropriété.
L'espace de vie est composé d'un séjour lumineux et d'une cuisine séparée (entièrement équipée), tous deux ouverts sur une grande terrasse d'environ 30 m².
Le coin nuit se compose de trois chambres, toutes équipées de placards, d'une salle d'eau avec douche à l'italienne et simple vasque, ainsi que d'un WC séparé.
Parfaitement entretenu, l'appartement bénéficie de menuiseries en PVC avec double vitrage, de volets roulants, de la climatisation réversible et de nombreux rangements.

À quelques pas de la cave coopérative, proche de toutes les commodités et des transports en commun, cet appartement est une véritable opportunité.

Il est vendu avec une place de stationnement privative et un garage fermé de 15 m² avec porte électrique.

Ne tardez pas, une visite s'impose !

--

Cette annonce référence 295897 vous est présentée par votre agent commercial BSK Immobilier KILLIAN BRUN (EIRL) immatriculé au RSAC de MONTPELLIER (34070) sous le numéro 831[Coordonnées masquées]9.

Prix du bien : 199 000,00 €
Les honoraires d'agence sont à la charge du vendeur.

A propos de la copropriété :
Pas de procédure en cours.
Nombre de lots : 2
Charges prévisionnelles annuelles : 228,00 €

A propos des performances énergétiques :
Date de réalisation du diagnostic énergétique : 15/03/2024
Score DPE : 195 kWhEP/m²/an
Score GES : 6 kgepCO2/m²/an
Montant estimé des dépenses annuelles d'énergie pour un usage standard : entre 1010.00 € et 1440.00 € par an. Prix moyens des énergies indexés sur l'année 2021 (abonnements compris).

Les informations sur les risques auxquels ce bien est exposé sont disponibles sur le site Géorisques : www.georisques.gouv.fr
Voir plus

Référence: 295897
Bien en copropriété. Nombre de lots : 2. Charges de copropriété : 19 €.
Honoraires à la charge du vendeur.
DPE
A
B
C
D
E
F
G
GES
A
B
C
D
E
F
G

Prêt immobilier

Vous souhaitez connaître votre capacité d’emprunt et trouver le meilleur crédit immobilier ?
Réaliser une simulation gratuite

Appartement à AGDE
Appartement à AGDE
Appartement à AGDE
Appartement à AGDE
Appartement à AGDE
Appartement à AGDE
Appartement à AGDE
Appartement à AGDE
Appartement à AGDE
Appartement à AGDE
Appartement à AGDE
Ce site est protégé par reCAPTCHA la Politique de confidentialité et les Conditions d’utilisation de Google s’appliquent.
Obtenir un prêt immobilier au meilleur taux ?

En poursuivant votre navigation sans modifier vos paramètres, vous acceptez l'utilisation de cookies susceptibles de réaliser des statistiques de visite. Cliquez ici pour plus d'informations