Nice ariane 3 pièces 69,35m² garage-cave

— Nice 06300 —
130 000 €
69 m²
3 pièces
parkingbalcon/terrasseascenseur

SOUS COMPROMIS/SOUS COMPROMIS/SOUS COMPROMIS
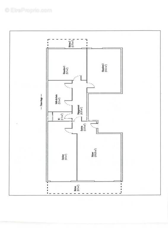
Nice quartier, quartier Ariane, Rue Guiglionda de Ste Agathe, dans une résidence recherchée et sécurisée, grand et lumineux 3 pièces traversant 7eme/9étage avec ascenseur, vue dégagée.
Ce bien est à rafraîchir.
Un vaste hall d'entrée dessert un séjour, une cuisine actuellement séparée mais possibilité d'ouvrir pour une surface totale d'environ 32m² d'espace de vie.
Le séjour et la cuisine donne sur la terrasse de 8m² avec vue sur l'intérieur de la copropriété et ses jardins.
Un dégagement distribue 2 chambres dont une avec balcon et l'autre avec placard. Une vaste salle de bains et un toilette indépendant.
Double vitrage sur la totalité du bien. Beaux volumes, terrasse profonde.
Pour votre confort, ce bien est vendu avec un garage en sous-sol et une cave en rez-de chaussée.
Photos en cours.
Nbres de lots:NC Charges/mois:194€(tout collectif)

Ce bien est soumis au statut de copropriété.
Les informations sur les risques auxquels ce bien est exposé sont disponibles sur le site Géorisques: georisques.gouv.fr
Voir plus

Référence: 86169396
Barème des honoraires
DPE
A
B
C
D
E
F
G
GES
A
B
C
D
E
F
G

Prêt immobilier

Vous souhaitez connaître votre capacité d’emprunt et trouver le meilleur crédit immobilier ?
Réaliser une simulation gratuite

Appartement à NICE
Appartement à NICE
Appartement à NICE
Appartement à NICE
Appartement à NICE
Appartement à NICE
Appartement à NICE
Appartement à NICE
Appartement à NICE
Appartement à NICE
Ce site est protégé par reCAPTCHA la Politique de confidentialité et les Conditions d’utilisation de Google s’appliquent.
Obtenir un prêt immobilier au meilleur taux ?

En poursuivant votre navigation sans modifier vos paramètres, vous acceptez l'utilisation de cookies susceptibles de réaliser des statistiques de visite. Cliquez ici pour plus d'informations