Bénéficiez des services de nos partenaires locaux soigneusement sélectionnés
pour vous accompagner dans votre parcours d'achat immobilier

Terrain 679m² à gometz-le-chatel

— Gometz-Le-Chatel 91940 —
235 000 €
679 m²

Nos partenaires locaux
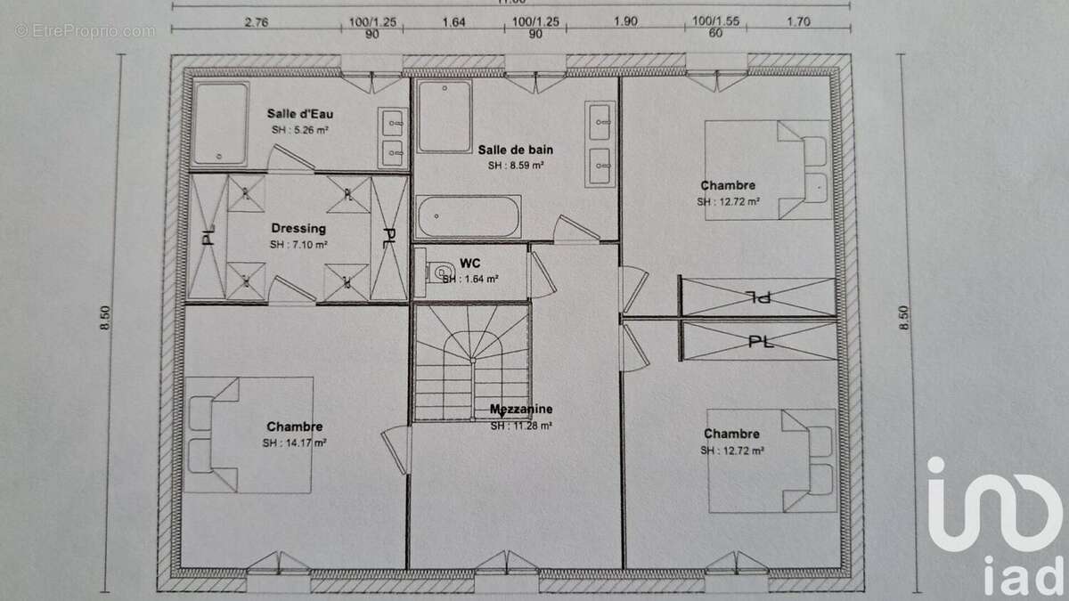
Iad France - Frédéric Auvray vous propose : Terrain constructible d'environ 680 m² dans un quartier prisé de Gometz le chatel avec une vue à couper le souffle. Vous pourrez profiter d'une vue sur la vallée sans vis à vis. À 15 minutes à pied de la gare 'La Hacquinière'. Possibilité de construction de 147 m² habitable, R + R+1 + un sous-sol total de 80 m²). Projet vraiment pour toutes ambitions. Je vous joins des plans crédibles d'une projection d'aménagement des 3 niveaux.
Construisez votre avenir où le cadre de vie y est paisible. Pour plus d'informations, votre conseiller est joignable 7 jours / 7 pour toutes questions et prises de rendez-vous.

Honoraires d'agence à la charge du vendeur.
Bien non soumis au DPE. Les informations sur les risques auxquels ce bien est exposé, y compris l'obligation légale de débroussaillement, sont disponibles sur le site Géorisques : http://www.georisques.gouv.fr.
La présente annonce immobilière a été rédigée sous la responsabilité éditoriale de M Frédéric Auvray mandataire indépendant en immobilier (sans détention de fonds), agent commercial de la SAS I@D France immatriculé au RSAC de EVRY sous le numéro 820 192 953, titulaire de la carte de démarchage immobilier pour le compte de la société I@D France SAS.
Informations LOI ALUR :
Honoraires charge vendeur. (gedeon_6727_31529929)
Voir plus

Référence: 1800857
Honoraires à la charge du vendeur.

Prêt immobilier

Vous souhaitez connaître votre capacité d’emprunt et trouver le meilleur crédit immobilier ?
Réaliser une simulation gratuite

Photo 1 - Terrain à GOMETZ-LE-CHATEL
Photo 1
Photo 2 - Terrain à GOMETZ-LE-CHATEL
Photo 2
Photo 3 - Terrain à GOMETZ-LE-CHATEL
Photo 3
Photo 4 - Terrain à GOMETZ-LE-CHATEL
Photo 4
Ce site est protégé par reCAPTCHA la Politique de confidentialité et les Conditions d’utilisation de Google s’appliquent.
Obtenir un prêt immobilier au meilleur taux ?

En poursuivant votre navigation sans modifier vos paramètres, vous acceptez l'utilisation de cookies susceptibles de réaliser des statistiques de visite. Cliquez ici pour plus d'informations