Bénéficiez des services de nos partenaires locaux soigneusement sélectionnés
pour vous accompagner dans votre parcours d'achat immobilier

Appartement 38m² à saint-malo

— Saint-Malo 35400 —
99 500 €
39 m²
2 pièces

Nos partenaires locaux
Spécial Investisseur – Forom® Immobilier

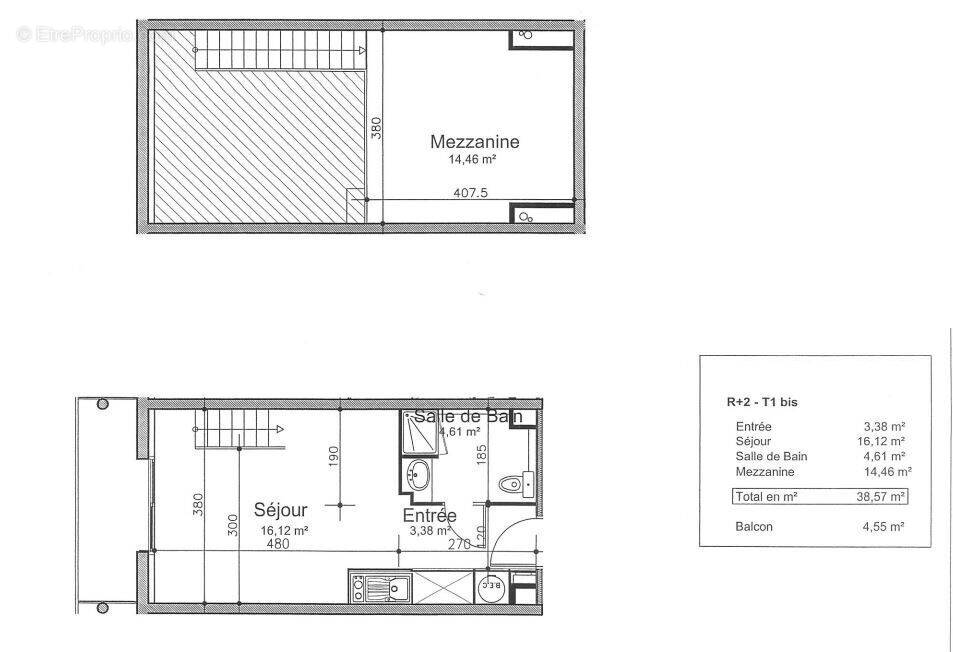
Appartement T1 bis d'environ 38 m² au 2ème étage situé dans une résidence Affaires Cap West sur la commune de Saint Malo.

Le logement dispose d'un séjour, une cuisine, une mezzanine, une salle d'eau avec WC, une place de parking.

Loyer entièrement garanti et sécurisé avec un bail commercial, aucune contrainte de gestion, faibles charges.

C'est le produit idéal pour se constituer facilement un patrimoine immobilier.

• Loyer annuel HT : 6 713,52€ / an soit 559,46€ / mois
• Rentabilité : 6,75% brute et 5,10% nette !
• Révision triennale du loyer
• Charges : 78€ / mois
• Taxe foncière : 485€ / an
• Gestionnaire : Cap West avec date de fin de bail le 14/05/2027
• DPE : C
• Nombre de lots : 132
• Honoraires charge vendeur


Les avantages
• Les loyers sont réglés que le logement soit occupé ou non (sans risque de vacances locatives ou d'impayés).
• Vous bénéficiez également d'avantages fiscaux liés au « LMNP amortissable », donnant une exonération d'impôt sur les revenus locatifs.
• Aucun frais de gestion courante (le gestionnaire vous règle directement le loyer sans intermédiaire ni frais de gestion locative).
• Emplacement premium bien au-dessous du prix du marché.

La résidence
Située dans un quartier calme de Saint-Malo, cette résidence se trouve à seulement 2 km de la gare et proche des commodités. Bien desservie par les bus (lignes 2 et 7) avec un arrêt à 200 m, elle offre un accès facile au centre-ville et aux principaux axes routiers.

Honoraires à la charge du vendeur. Dans une copropriété de 132 lots. Aucune procédure n'est en cours. Classe énergie C, Classe climat A Montant estimé des dépenses annuelles d'énergie pour un usage standard : entre 520.00 € et 760.00 € sur les années 2021, 2022 et 2023 (abonnements compris). Les informations sur les risques auxquels ce bien est exposé sont disponibles sur le site Géorisques : georisques.gouv.fr.
Voir plus

Référence: 3808-FOROM
Bien en copropriété. Nombre de lots : 132.
Honoraires à la charge du vendeur.
Barème des honoraires
DPE
A
B
C
D
E
F
G
GES
A
B
C
D
E
F
G

Prêt immobilier

Vous souhaitez connaître votre capacité d’emprunt et trouver le meilleur crédit immobilier ?
Réaliser une simulation gratuite

Appartement à SAINT-MALO
Appartement à SAINT-MALO
Ce site est protégé par reCAPTCHA la Politique de confidentialité et les Conditions d’utilisation de Google s’appliquent.
Obtenir un prêt immobilier au meilleur taux ?

En poursuivant votre navigation sans modifier vos paramètres, vous acceptez l'utilisation de cookies susceptibles de réaliser des statistiques de visite. Cliquez ici pour plus d'informations